Vuokrataan toimistotilat - Espoo
Kutojantie 11, Nihtisilta, 02630 Espoo #10823226
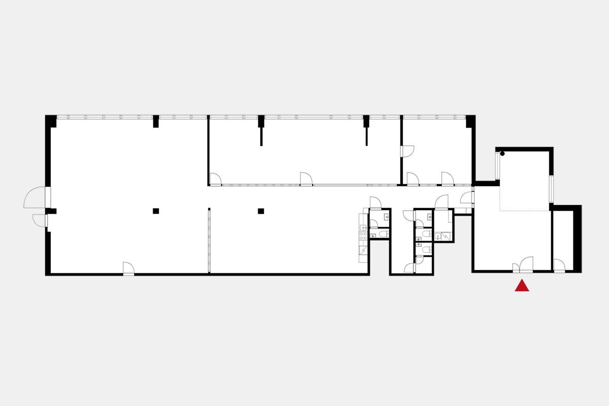
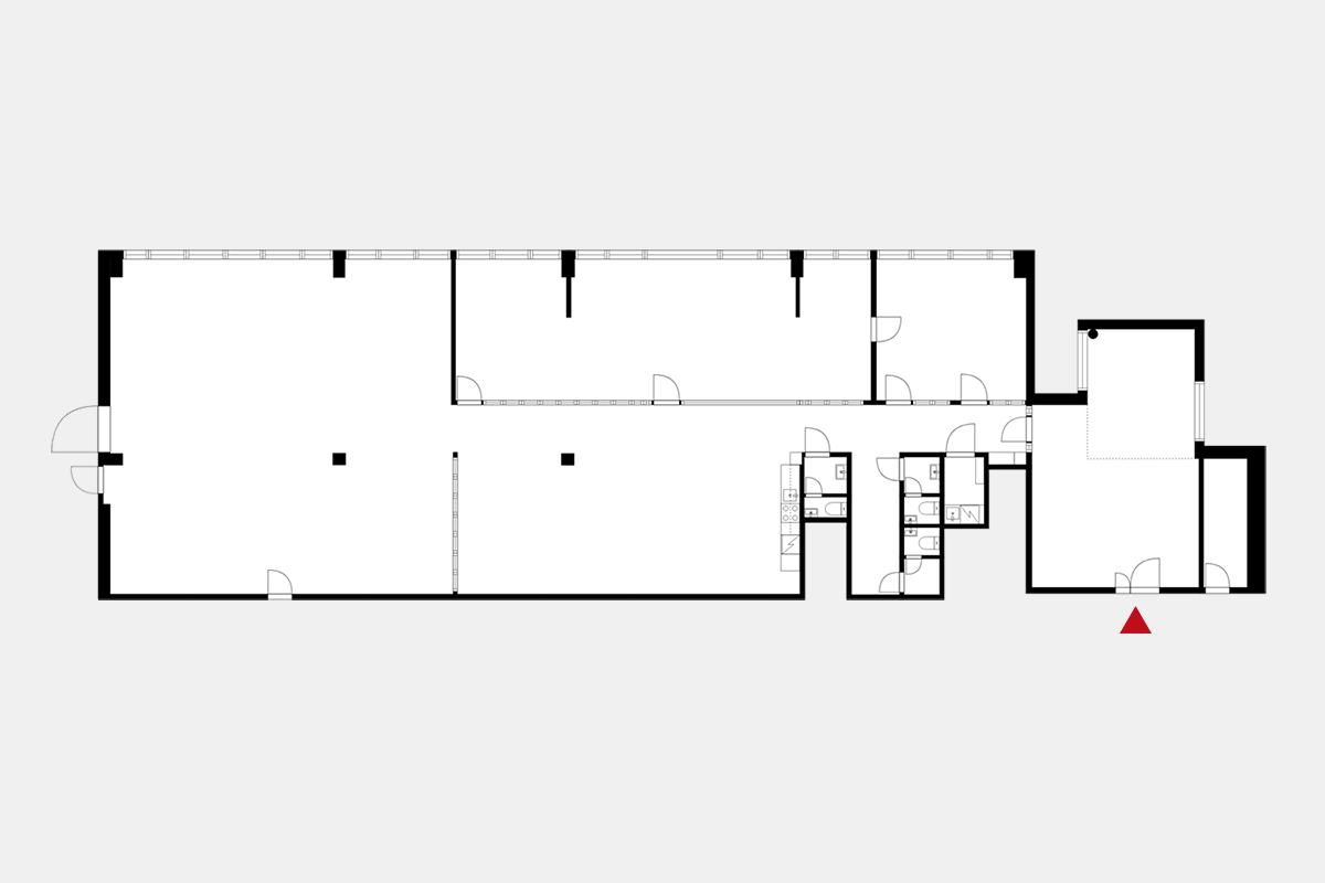
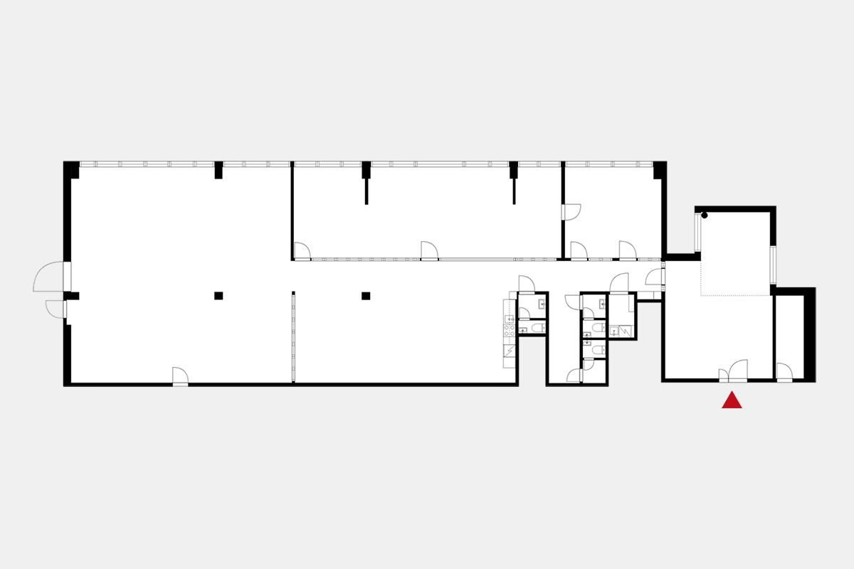
Vuokrataan Espoon Nihtisillasta viidennen eli ylimmän kerroksen siisti 343 m² toimistotila. Tämä tila koostuu erikokoisista toimisto- ja neuvotteluhuoneista, sekä avotilasta. Toimistosta löytyy oma keittiö, sekä 3 kpl wc. Kohde on ilmastoitu.
Kutojantie 11 on viisikerroksinen toimistorakennus Espoon Kilossa. Vuokrattavat tilat ovat tehokkaita ja voidaan joustavasti toteuttaa joko avo- tai huonekonttorina tai näiden yhdistelmänä. Kellarikerroksessa on kiinteistön käyttäjille vuokrattavissa pienvarastotilaa. Mahdollinen tavaraliikenne kerroksiin sujuu erillisellä tavarahissillä.
Kysy rohkeasti lisätietoja ja sovitaan käynti kohteella jo tänään! .
Hissi
Hausala Oy
Erkkilänkatu 11, 33100 Tampere
Näytä puhelinnumero
050 472 7077
Mikko Ranta
Näytä puhelinnumero
050 360 6500
Mika Savikko
Näytä puhelinnumero
050 472 7077
