Vuokrataan toimistotilat - Espoo
Sinimäentie 8B, Sinimäki, 02630 Espoo #10823213
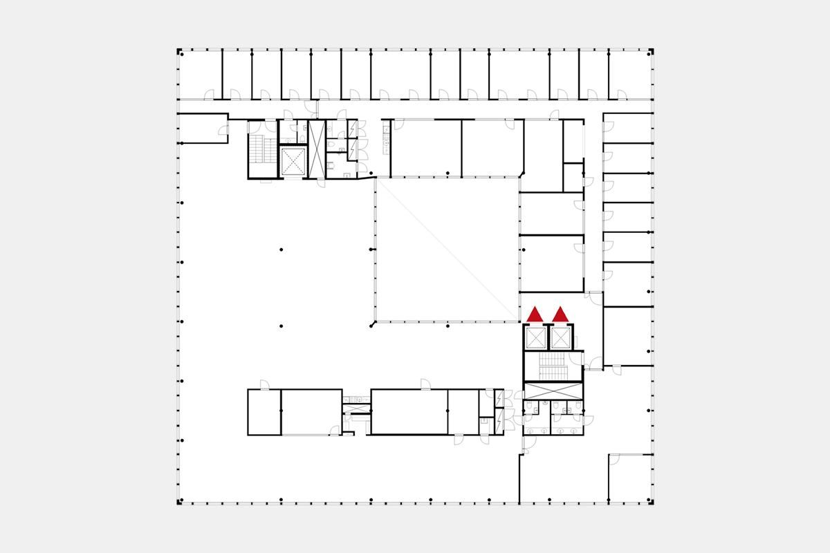
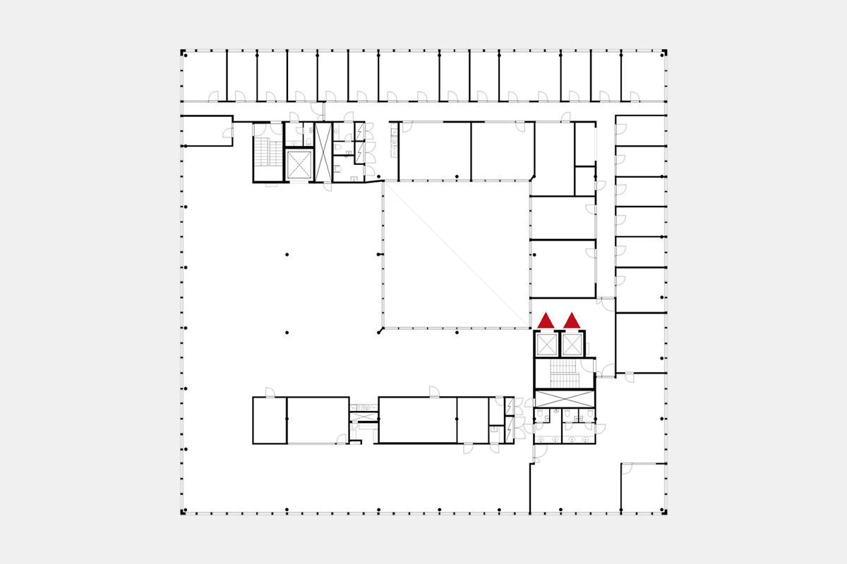
Vuokrataan Espoon Sinimäestä toisen kerroksen erittäin hieno 1 503 m² toimistotila. Tämä kokonaisuus koostuu useista eri toimistohuoneista, sekä isosta avotilasta. Tästä tilasta löytyy myös oma iso keittiö, sekä sosiaalitilat ja wc:t.
Sinihelmi Business House tarjoaa nykyaikaista ja muunneltavaa toimitilaa erinomaisella sijainnilla Espoon Sinimäellä, lähellä Helsingin ja Kehäteiden yhteyksiä. Kuusikerroksinen kiinteistö hurmaa valoisilla tiloillaan, tyylikkäällä lasijulkisivullaan ja rauhallisella ympäristöllään.
Palveluihin kuuluvat aulapalvelu ja toimistopalvelut, vastikään avattu lounasravintola Lounastamo catering-mahdollisuuksineen sekä vuokrattavat neuvottelutilat ja saunatila.
Kysy rohkeasti lisätietoja ja sovitaan käynti kohteella jo tänään!
Hissi
Hausala Oy
Erkkilänkatu 11, 33100 Tampere
Näytä puhelinnumero
050 472 7077
Mikko Ranta
Näytä puhelinnumero
050 360 6500
Mika Savikko
Näytä puhelinnumero
050 472 7077
