Vuokrataan toimistotilat - Helsinki
Hitsaajankatu 22, Herttoniemi, 00810 Helsinki #10823209
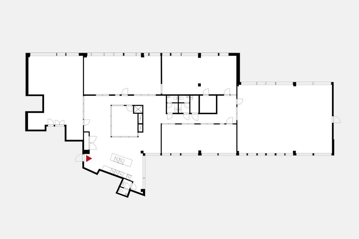
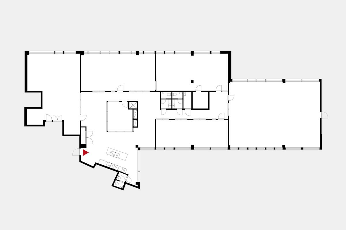
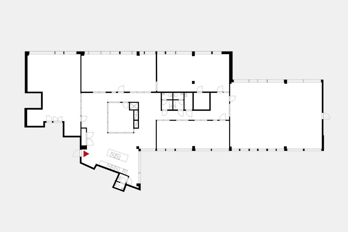
Vuokrataan Helsingin Herttoniemestä viidennen kerroksen todella siisti ja upea 552 m² toimistotila. Tämä monipuolinen tila tarjoaa avotilaa, sekä erikokoisia lasitettuja työhuoneita. TIlasta löytyy oma keittiö, sekä 3 kpl wc. Tilat ovat ilmastoidut. Tämä tila on nähtävä!
Opus Business Park tarjoaa käyttäjilleen modernit ja hienot tilat yrittämiseen. Vuokralaisia palvelee aulapalvelu, sekä lounasravintola.
Kiinteistössä on lämmin, 440 ajoneuvon pysäköintihalli. Lyhyempää paikoitusta varten on runsaasti kadunvarsipaikkoja suoraan kiinteistön edessä.
Kysy rohkeasti lisätietoja ja sovitaan käynti kohteella jo tänään!
Hissi
Hausala Oy
Erkkilänkatu 11, 33100 Tampere
Näytä puhelinnumero
050 472 7077
Mika Savikko
Näytä puhelinnumero
050 472 7077
Mikko Ranta
Näytä puhelinnumero
050 360 6500
