Vuokrataan toimistotilat - Helsinki
Valimotie 1, Pitäjänmäki, 00380 Helsinki #10823187
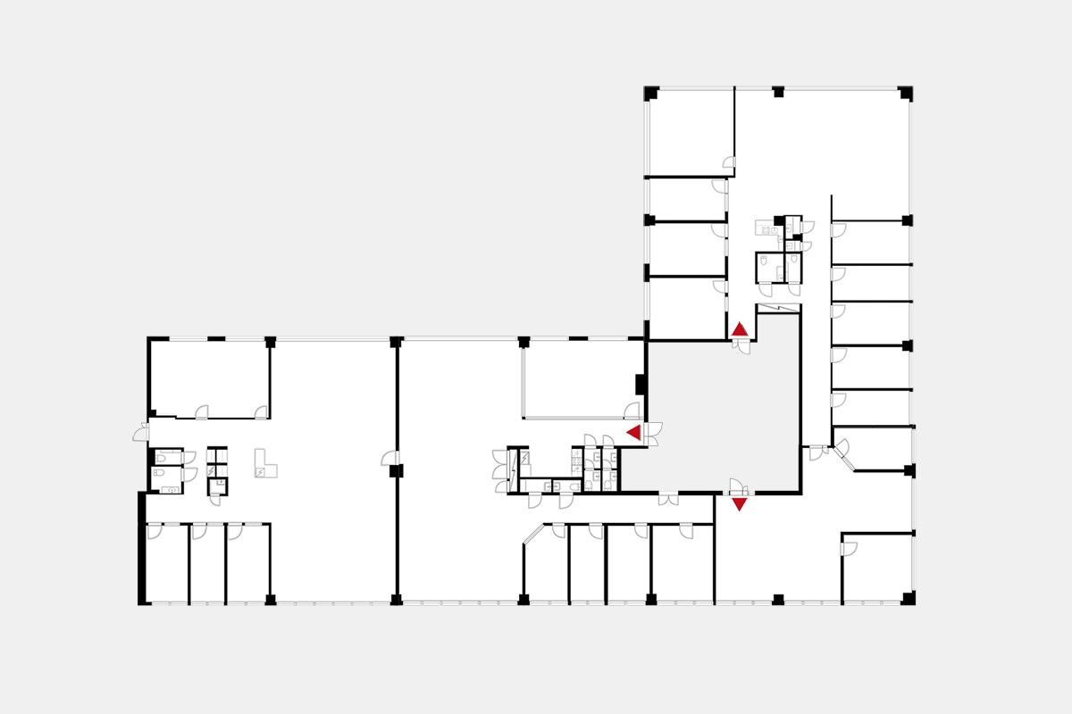
Vuokrattavana Helsingin Pitäjämäestä toisen kerroksen siisti 1 090 m² toimistotila. Tila jaettavissa pienempiin kokonaisuuksiin, sekä ne on mahdollista remontoida asiakkaan tarpeiden mukaisesti.
Valimo 1, joka sijaitsee Pitäjänmäen yritysalueella, tarjoaa läpi talon ulottuvia, joustavasti muunneltavia toimistotiloja. Tilat on suunniteltu tukemaan sekä keskittymistä vaativaa työskentelyä että suurempien tiimien yhteistyötä. Käytännölliset pohjaratkaisut takaavat sujuvan arjen.
Valimo 1:ssä toimii monipuolisesti eri alojen yrityksiä, kuten IT-, teollisuus-, rakennus-, hyvinvointi- ja terveysalan toimijoita. Lähialueelta löytyy runsaasti työntekijöille suunnattuja palveluja, kuten useita kuntosaleja ja ravintoloita. Lisäksi Talin alueen golfkentät ja lenkkipolut tarjoavat erinomaiset mahdollisuudet virkistäytymiseen aivan lähellä.
Kysy rohkeasti lisätietoja ja sovitaan käynti kohteella jo tänään!
Hissi
Hausala Oy
Erkkilänkatu 11, 33100 Tampere
Näytä puhelinnumero
050 472 7077
Mika Savikko
Näytä puhelinnumero
050 472 7077
Mikko Ranta
Näytä puhelinnumero
050 360 6500
