Vuokrataan toimistotilat - Helsinki
Vanha Helsingintie 18, Malmi, 00700 Helsinki #10823183
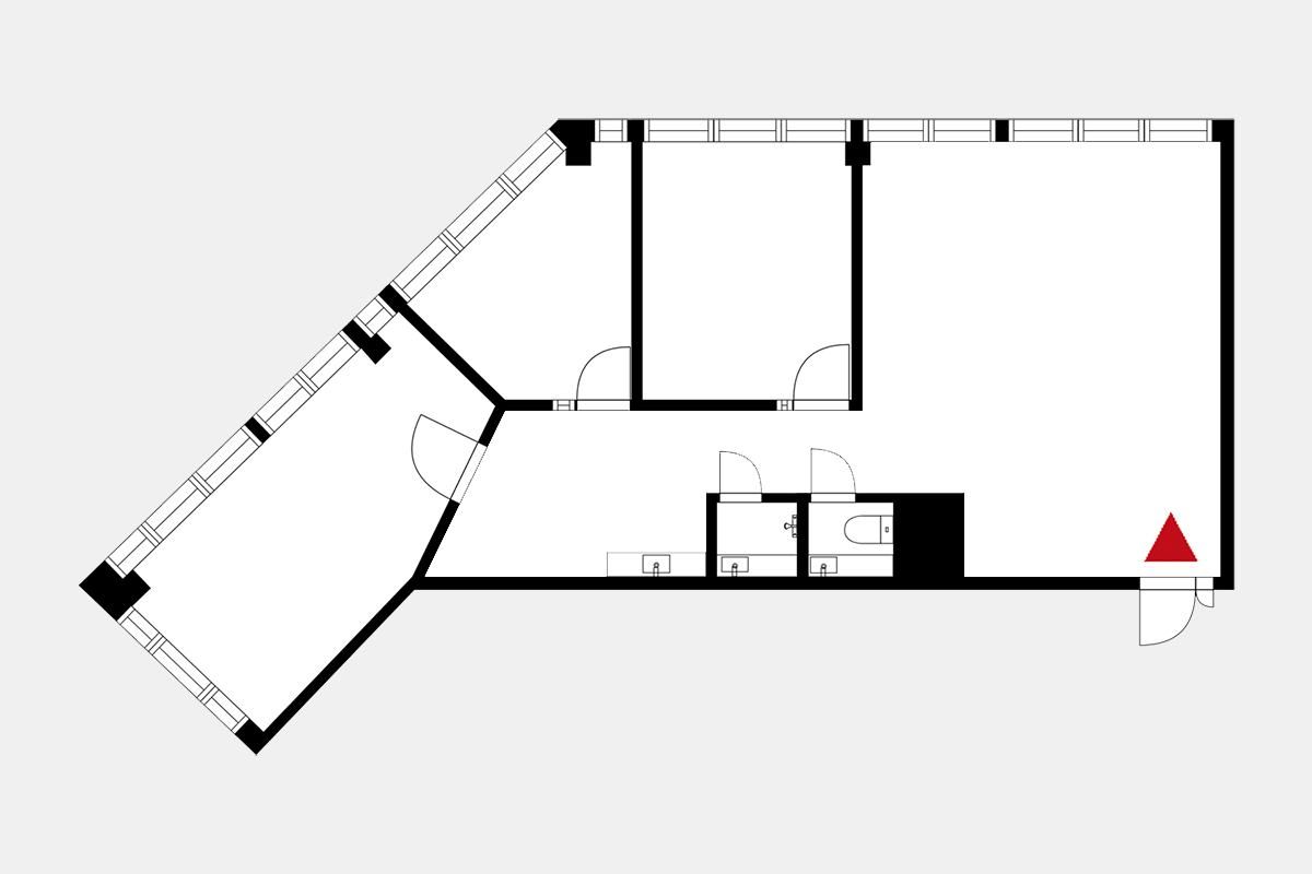
Vuokrataan Helsingin Malmilta kolmannen kerroksen siisti 108 m² toimistotila. Siisti ja valoisa toimistotila, jossa on kolme työhuonetta, sekä avotila. Tilasta löytyy oma keittiönurkkaus, sekä oma suihku ja WC.
Vanha Helsingintie 18 tarjoaa yrityksellesi nykyaikaiset ja muuntojoustavat tilat, jotka soveltuvat erinomaisesti monenlaisiin tarpeisiin. Kiinteistö sijaitsee keskeisellä paikalla hyvien kulkuyhteyksien varrella, mikä tekee siitä helposti saavutettavan niin julkisilla kulkuvälineillä kuin omalla autolla.
Kiinteistössä on lämmin, 440 ajoneuvon pysäköintihalli. Lyhyempää paikoitusta varten on runsaasti kadunvarsipaikkoja suoraan kiinteistön edessä.
Tilat ovat valoisia ja tehokkaasti suunniteltuja, ja kiinteistössä on kaikki tarvittavat palvelut sujuvaan arkeen. Läheltä löytyvät myös monipuoliset palvelut ja lounasvaihtoehdot, jotka tukevat työpäivän sujuvuutta.
Jos etsit toimistotilaa, joka tukee yrityksesi kasvua ja tarjoaa viihtyisän ympäristön, tämä kohde on erinomainen valinta.
Kysy rohkeasti lisätietoja ja sovitaan käynti kohteella jo tänään!
Hissi
Hausala Oy
Erkkilänkatu 11, 33100 Tampere
Näytä puhelinnumero
050 472 7077
Mika Savikko
Näytä puhelinnumero
050 472 7077
Mikko Ranta
Näytä puhelinnumero
050 360 6500
