Vuokrataan toimistotilat - Helsinki
Runeberginkatu 5, Kamppi, 00100 Helsinki #10823099
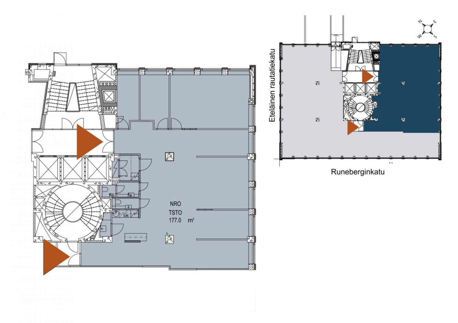
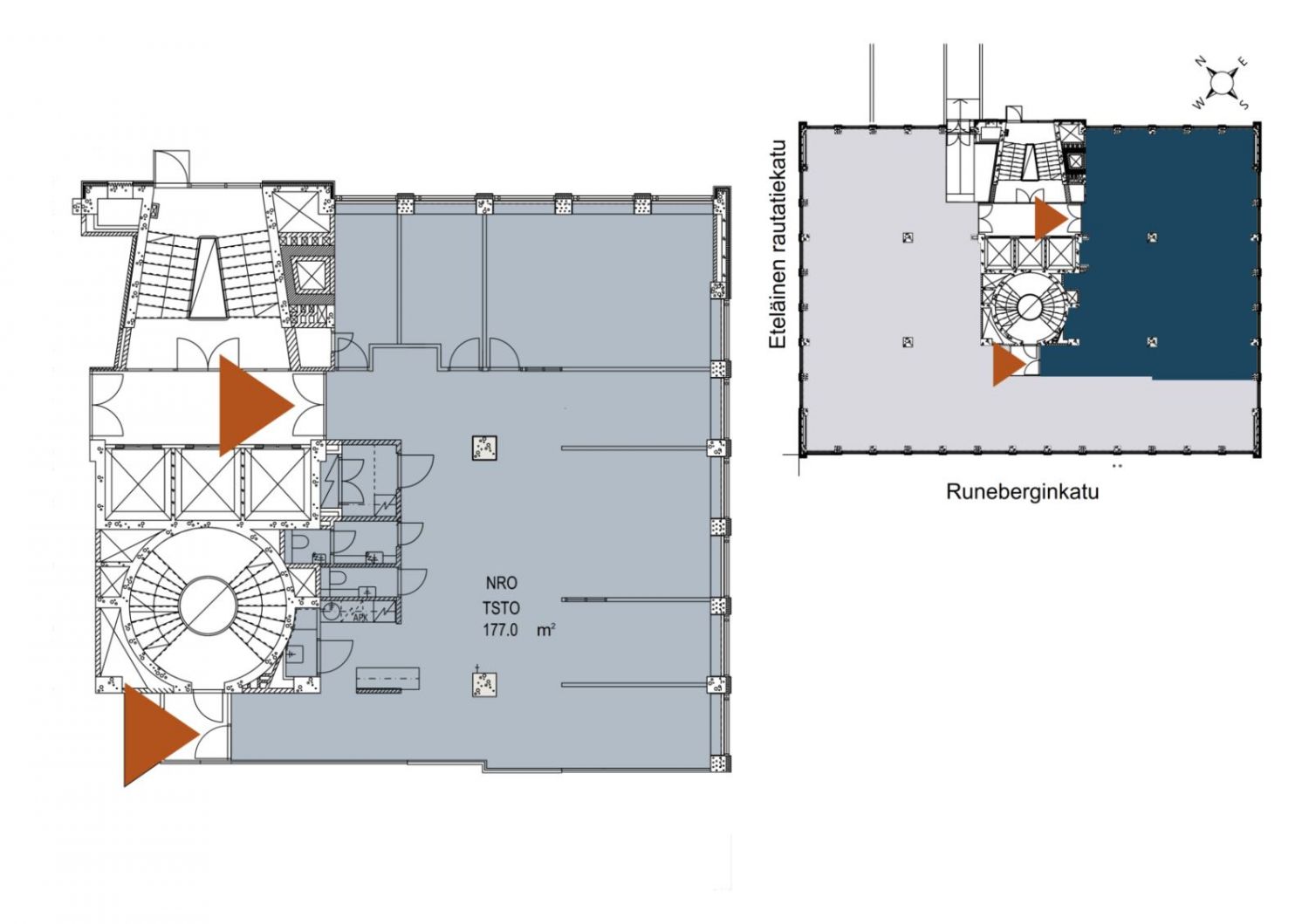
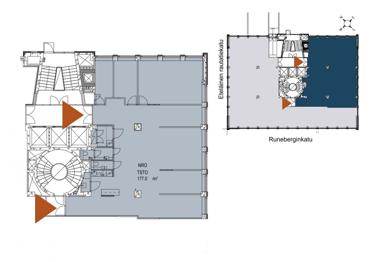
Vuokrataan viidennen kerroksen siisti 177 m² toimisto Kampissa. Hieno ja muuttovalmis toimisto keskellä Kamppia, avotilaa ja huoneita. Tilassa on oma keittiö, sekä 2kpl wc. Tila vapautuu sopimuksen mukaan.
Toimistokerroksista on hissiyhteys autohalliin. Autohallipaikat 220 / 260 â¬/kk alv.0% (autopaikan sijainnista riippuen). Pyöräilijöille löytyvät pyöräparkki ja suihkutilat. Kiinteistössä on jäähdytys.
Kiinteistössä on tehty julkisivun ja yleisten tilojen kunnostustöitä kunnioittaen talon henkeä ja arkkitehtuuria.
Kysy lisätietoja tai sovitaan käynti kohteelle jo tänään!
Hissi
Hausala Oy
Erkkilänkatu 11, 33100 Tampere
Näytä puhelinnumero
050 472 7077
Mikko Ranta
Näytä puhelinnumero
050 360 6500
Mika Savikko
Näytä puhelinnumero
050 472 7077
