Vuokrataan toimistotilat, työtilat - Tampere
Lumpeenkatu 1, Härmälä, 33900 Tampere #10823063
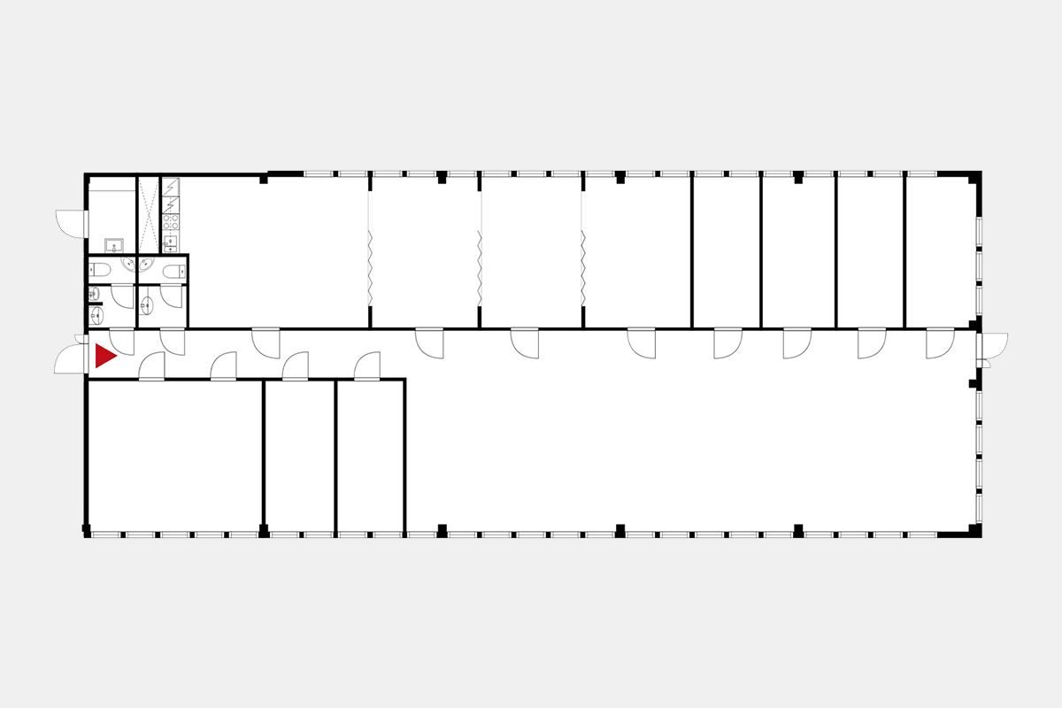
Vuokrataan siisti toisen kerroksen 388 m² toimisto- /työtila, todella hyvällä sijainnilla Sarankulmasta. Tilasta löytyy kaksi WC-tilaa, sekä keittiö. Tila on jäähdytetty, joka takaa siis miellyttävän työskentelyn myös kesäkuumalla. Pysäköintitilaa on runsaasti niin työntekijöille kuin asiakkaille. Tämä toimistotila on heti vapaa ja sitä on mahdollista muokata asiakkaan tarpeiden mukaisesti. Tänne on helppo tulla niin omalla autolla kuin Tampereen joukkoliikennettä hyödyntäen. Pirkkalan palvelut ovat välittömässä läheisyydessä.
Olisiko tässä yrityksellenne edustava ja toimiva toimistotila huippusijainnilla?
Kysy rohkeasti lisätietoja ja varaa esittelyaikasi jo tänään!
Näkyvällä paikalla
Hausala Oy
Erkkilänkatu 11, 33100 Tampere
Näytä puhelinnumero
050 472 7077
Mika Savikko
Näytä puhelinnumero
050 472 7077
Tero Ala-Hannula
Näytä puhelinnumero
040 508 1351
