Vuokrataan toimistotilat - Espoo
Ahventie 4, Matinkylä, 02170 Espoo #10823051
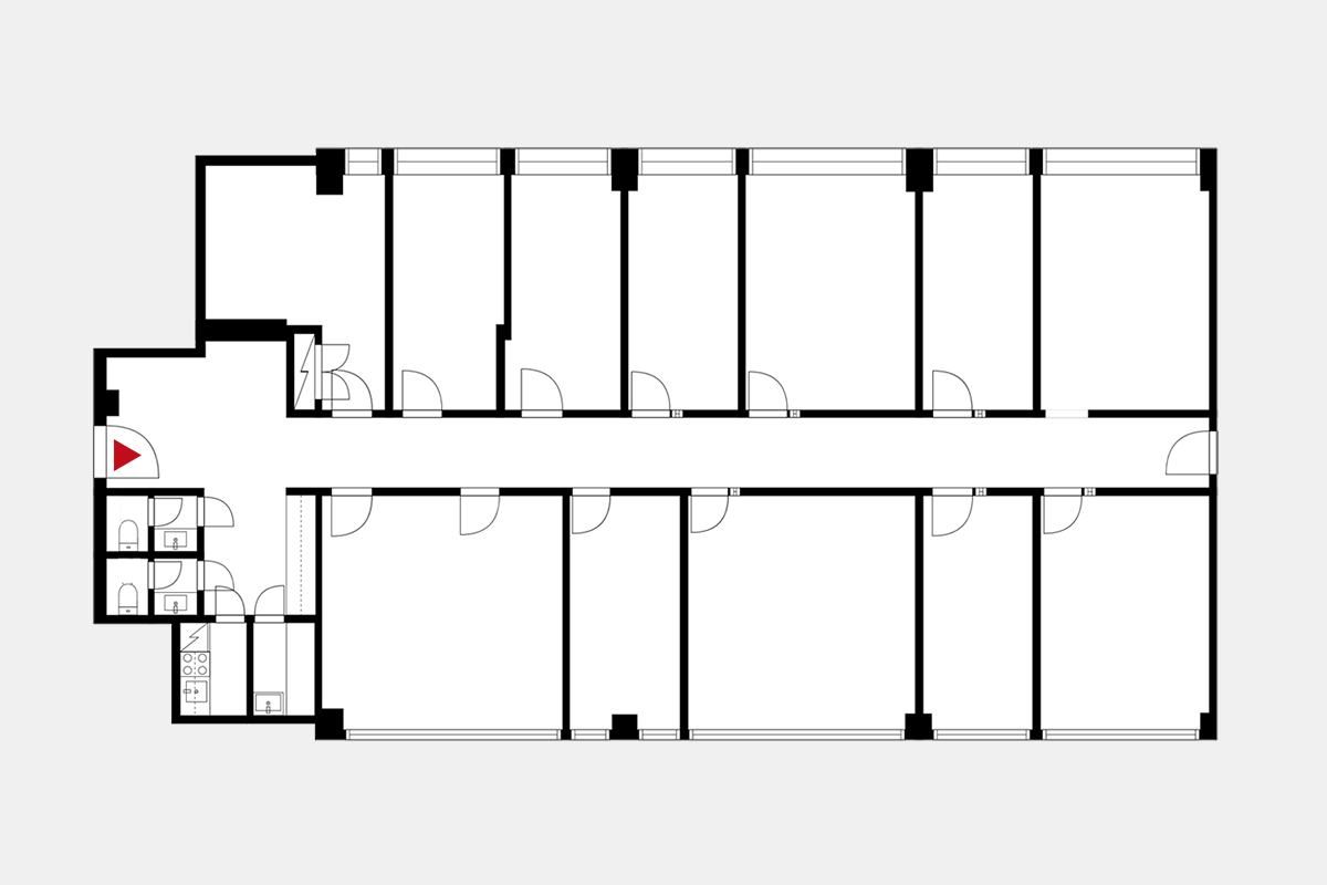
Vuokrataan viidennen kerroksen 245 m² toimistotila Ahti Business Parkista, Espoon Haukilahdesta. Tilassa on avotilaa, erikokoisia huoneita, sosiaalitilat sekä varastotilaa.
Ahti Business Park sijaitsee Espoon Haukilahdessa, aivan Länsiväylän varrella. Täällä nautitaan vehreästä lähiympäristöstä ja ikkunoista aukeavista luontomaisemista. Ahdin tavoitteena on tarjota yrityksillensä mahdollisimman viihtyisä työympäristö ja vihreät palveluratkaisut. Kiinteistön kaikki vapaat tilat ovat helposti muunneltavissa käyttäjiensä tarpeiden mukaisesti, mikä mahdollistaa persoonallisten ja kullekin yritykselle sopivien toimitilaratkaisujen luomisen. Sijainti on erinomainen Länsiväylän varrella Matinkylän ja Niittykummun liikenneyhteyksien vieressä.
Kiinteistön palveluihin kuuluu mm. aulapalvelu, lounasravintola sekä Catering- palvelut. Kiinteistön vuokralaisille on tarjolla runsaasti vuokrattavia pysäköintipaikkoja sekä ulkokannella että autohallissa. Vierailijoilla on mahdollisuus pysäköidä autonsa maksuttomasti ulkokannelle ilmoittaessaan autonsa rekisterinumeron Ahdin aulapalveluun.
Ota yhteyttä, käydään kiertämässä kohteen tilat ja suunnitellaan teille sopiva kokonaisuus!
Hausala Oy
Erkkilänkatu 11, 33100 Tampere
Näytä puhelinnumero
050 472 7077
Mikko Ranta
Näytä puhelinnumero
050 360 6500
Mika Savikko
Näytä puhelinnumero
050 472 7077
