Vuokrataan toimistotilat - Tampere
Hatanpään Valtatie 18, Ratina, 33100 Tampere #10823035
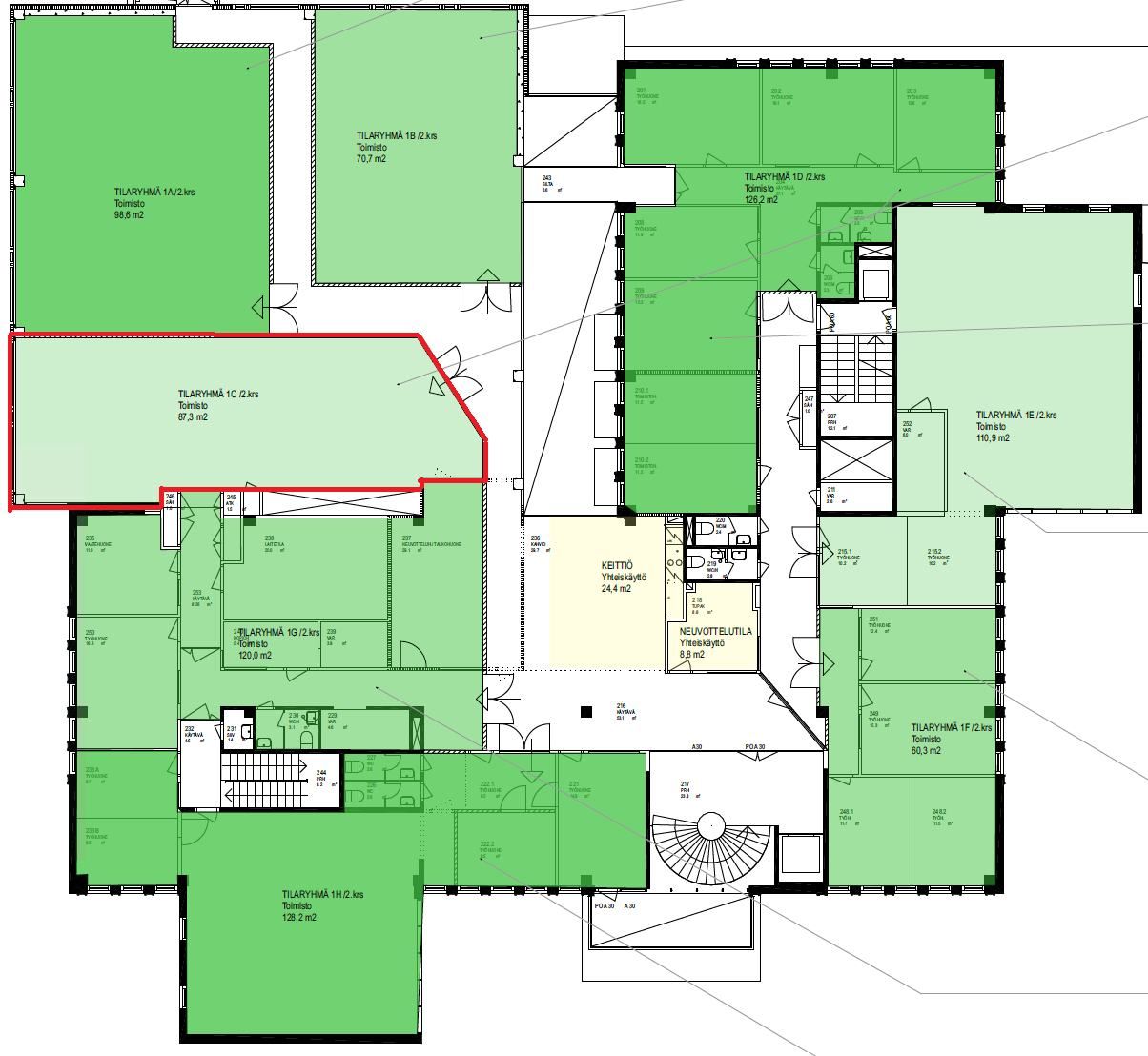
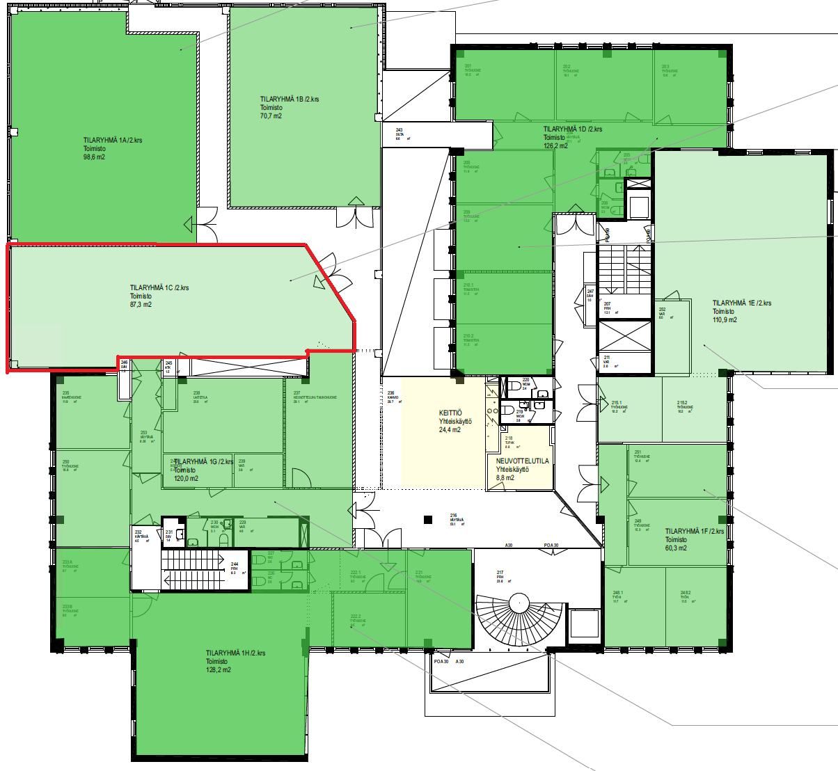
Vuokrataan siisti 85m² toimistotila kiinteistön 2. kerroksesta. Tila on tällä hetkellä täysin avointa, joten se remontoidaan täysin vuokralaisen tarpeiden mukaan. Käytössä juuri valmistunut uusi ja upea yhteiskeittiö. Yhteiset WC-tilat käytävällä. Talo tarjoaa vuokralaisten käyttöön ilmaiseksi 2 kpl neuvotteluhuoneita 1. kerroksesta. Näiden varaus järjestelmän kautta. Kiinteistöllä oma parkkihalli, josta mahdollisuus saada pysäköintioikeuksia. Talon ylimmässä kerroksessa edustavat terassi- ja saunatilat. Kellarista mahdollista vuokrata varastotilaa!
Huom! Kuvat showroomista/mallitoimistosta.
Kysy rohkeasti lisätietoja ja sovitaan käynti kohteella jo tänään!
Hissi
Hausala Oy
Erkkilänkatu 11, 33100 Tampere
Näytä puhelinnumero
050 472 7077
Mikko Ranta
Näytä puhelinnumero
050 360 6500
Mika Savikko
Näytä puhelinnumero
050 472 7077
