Vuokrataan toimistotilat - Tampere
Hatanpään Valtatie 18, Ratina, 33100 Tampere #10823029
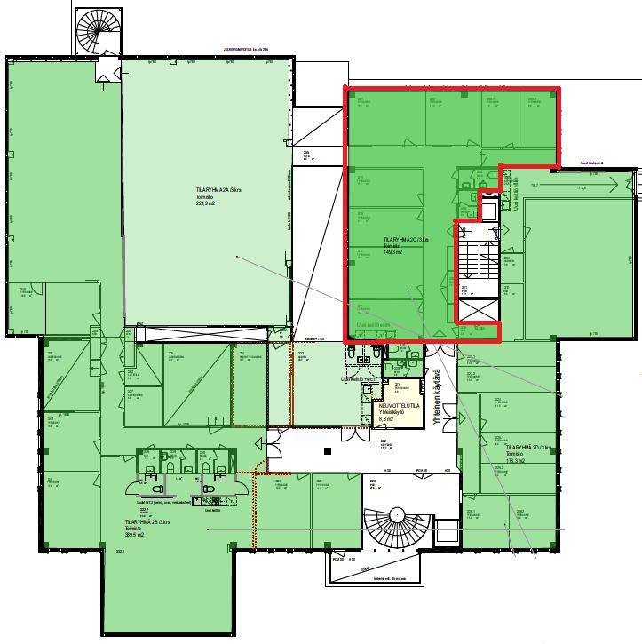
Vuokrataan siisti 149m² toimistotila kiinteistön 3. kerroksesta. Tila koostuu muutamasta työhuoneesta ja avotilasta. Tilassa 2 kpl wc. Remontoidaan täysin vuokralaisen tarpeiden mukaan. Talo tarjoaa vuokralaisten käyttöön ilmaiseksi 2 kpl neuvotteluhuoneita 1. kerroksesta. Näiden varaus järjestelmän kautta. Kiinteistöllä oma parkkihalli, josta mahdollisuus saada pysäköintioikeuksia. Huom! Tila mahdollista yhdistää viereisen tilan kanssa niin, että kokonais pinta-ala on 327 m². Kellarista mahdollista vuokrata varastotilaa!
Huom! Kuvat showroomista/mallitoimistosta.
Kysy rohkeasti lisätietoja ja sovitaan käynti kohteella jo tänään!
Jaettavissa
Hissi
Hausala Oy
Erkkilänkatu 11, 33100 Tampere
Näytä puhelinnumero
050 472 7077
Mikko Ranta
Näytä puhelinnumero
050 360 6500
Mika Savikko
Näytä puhelinnumero
050 472 7077
