Vuokrataan toimistotilat - Tampere
Hatanpään Valtatie 18, Ratina, 33100 Tampere #10823022
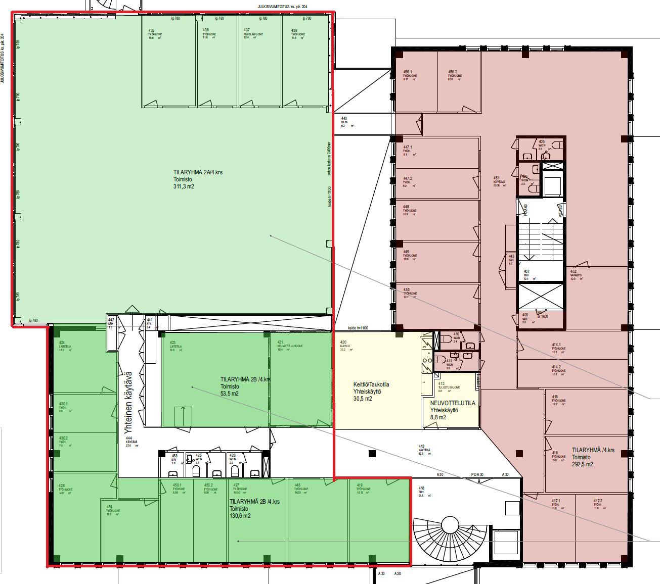
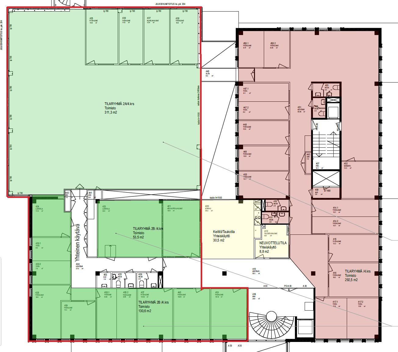
Vuokrataan siisti ja valoisa 495m² toimistotila kiinteistön ylimmästä eli 4. kerroksesta. Tilat koostuvat isosta avotilasta, jossa 4 kpl työhuoneita. Lisäksi toinen osio koostuu monista erikokoisista työ- ja neuvotteluhuoneista. Remontoidaan täysin vuokralaisen tarpeiden mukaan. Talo tarjoaa vuokralaisten käyttöön ilmaiseksi 2 kpl neuvotteluhuoneita 1. kerroksesta. Näiden varaus järjestelmän kautta. Kiinteistöllä oma parkkihalli, josta mahdollisuus saada pysäköintioikeuksia. Kellarista mahdollista vuokrata varastotilaa!
Huom! Osa kuvista on showroomista/mallitoimistosta.
Kysy rohkeasti lisätietoja ja sovitaan käynti kohteella jo tänään!
Jaettavissa
Hissi
Hausala Oy
Erkkilänkatu 11, 33100 Tampere
Näytä puhelinnumero
050 472 7077
Mikko Ranta
Näytä puhelinnumero
050 360 6500
Mika Savikko
Näytä puhelinnumero
050 472 7077
