Vuokrataan toimistotilat - Helsinki
Kaupintie 5, Lassila, 00440 Helsinki #10823019
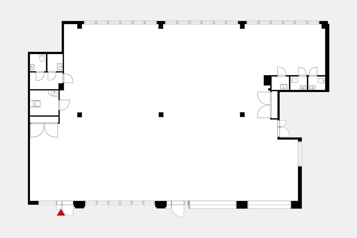
Vuokrataan katutason toimitila Pohjois-Haagan juna-aseman välittömästä läheisyydestä. Tämä avara kokonaisuus sopii liiketilaksi, myymäläksi tai toimistoksi, sen korkeus on 3,2 m. Tila on jaettavissa 172 ja 195 neliön toimitiloihin. Tilassa on kaksi siivouskomeroa ja neljä wc:tä, joista yksi on inva-wc. Ravintolakäyttöön se ei kuitenkaan sovellu.
Kiinteistössä käynnistyy laajamittainen peruskorjaus, joka valmistuu 08/2026. Ylempiin kerroksiin sijoittuu hoivapalveluita ja näihin katutason tiloihin joko toimistoja tai liiketiloja.
Käytännössä kaikki tilat rakennetaan uudestaan, ja mm. talotekniikka uudistetaan nykypäivän vaatimuksia huomioiden (jäähdytys yms.). Tässä vaiheessa on mahdollista vaikuttaa mm. tilan pohjapiirroksiin, jotka voidaan muokata omien tarpeiden mukaan.
Kiinteistöstä löytyy autopaikkoja, pyörävarasto sekä sosiaali- ja pesutilat. Tämä on loistava vaihtoehto toimijalle, joka hakee uutta saneerattua toimitilaa hyvien liikenneyhteyksien varrelta. Ota yhteyttä ja kysy lisätietoja!
Kysy lisätietoja tai sovitaan käynti kohteelle jo tänään!
Hausala Oy
Erkkilänkatu 11, 33100 Tampere
Näytä puhelinnumero
050 472 7077
Mikko Ranta
Näytä puhelinnumero
050 360 6500
Mika Savikko
Näytä puhelinnumero
050 472 7077
