Vuokrataan toimistotilat - Espoo
Niittytaival 13, Niittymaa, 02200 Espoo #10823012
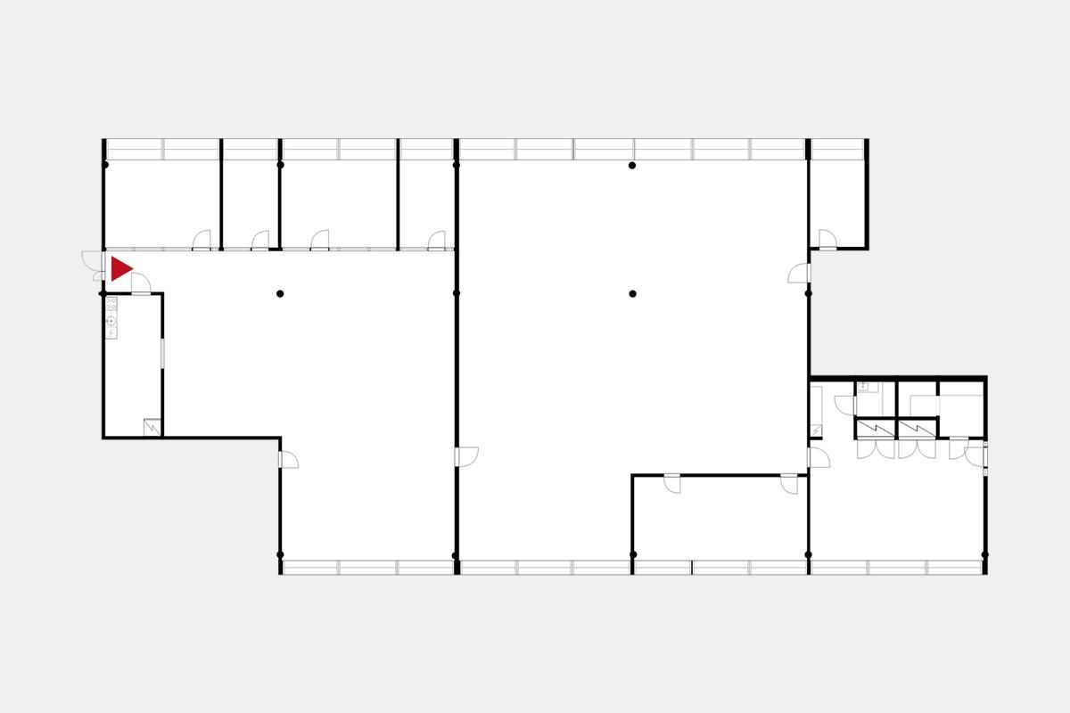
Vuokrataan valoisa ja tilava kolmannen kerroksen 628 m² toimistotila hyvällä sijainnilla Espoon Niittykummusta. Tila on mahdollista muokata asiakkaan toiveiden mukaan.
Niittytaival 13 tarjoaa valoisaa toimitilaa erikokoisille yrityksille viihtyisässä työympäristössä. Kaikki tilat ovat muunneltavissa yritysten toimintaa tukeviksi työskentely-ympäristöiksi. Länsiväylä, Kehä II sekä läheinen Niittykummun metroasema tarjoavat sujuvat liikenneyhteydet eri suuntiin. Kiinteistön tasokas pyöräparkki ja pukuhuonetilat kannustavat työmatkapyöräilyyn.Pysäkointipaikkoja löytyy kiinteistön pihalta.
Kiinteistön palvelut ovat kattavat mm.Lounasravintola, Catering, sauna sekä siivouspalvelut.
Ota yhteyttä, käydään kiertämässä kohteen tilat ja suunnitellaan teille sopiva kokonaisuus!
Hausala Oy
Erkkilänkatu 11, 33100 Tampere
Näytä puhelinnumero
050 472 7077
Mikko Ranta
Näytä puhelinnumero
050 360 6500
Mika Savikko
Näytä puhelinnumero
050 472 7077
