Vuokrataan toimistotilat, tuotantotilat, varastotilat - Espoo
Koskelontie 13, Koskelo, 02920 Espoo #10822987
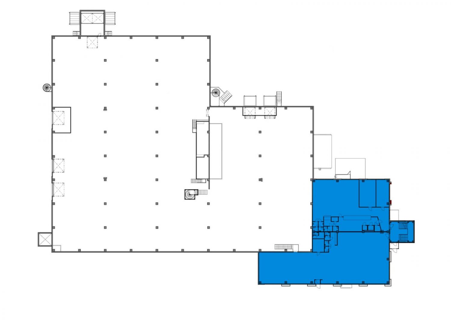
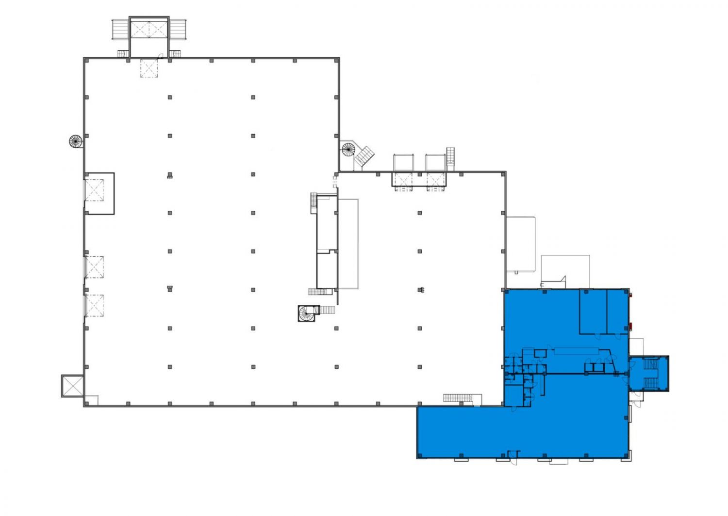
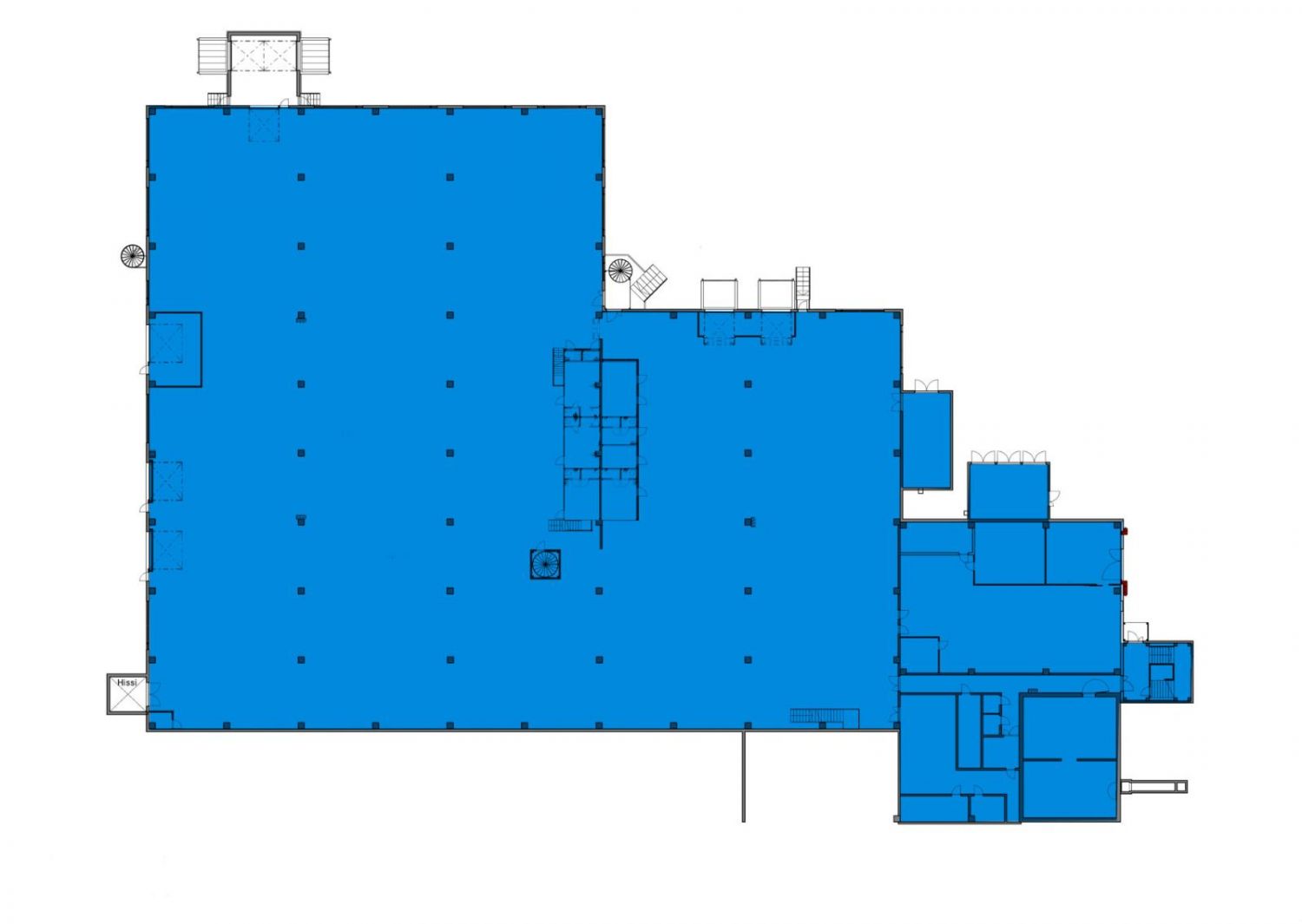
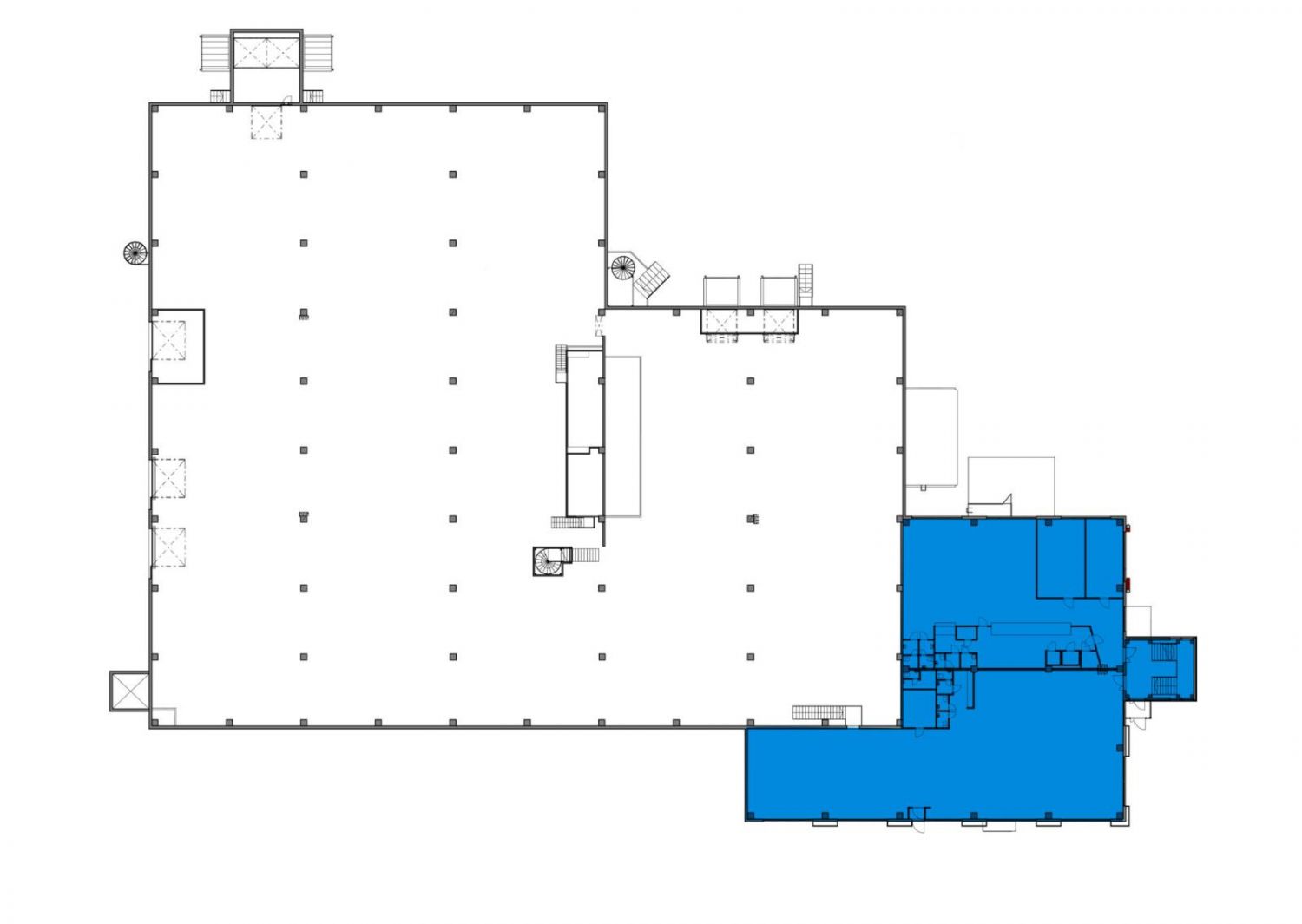
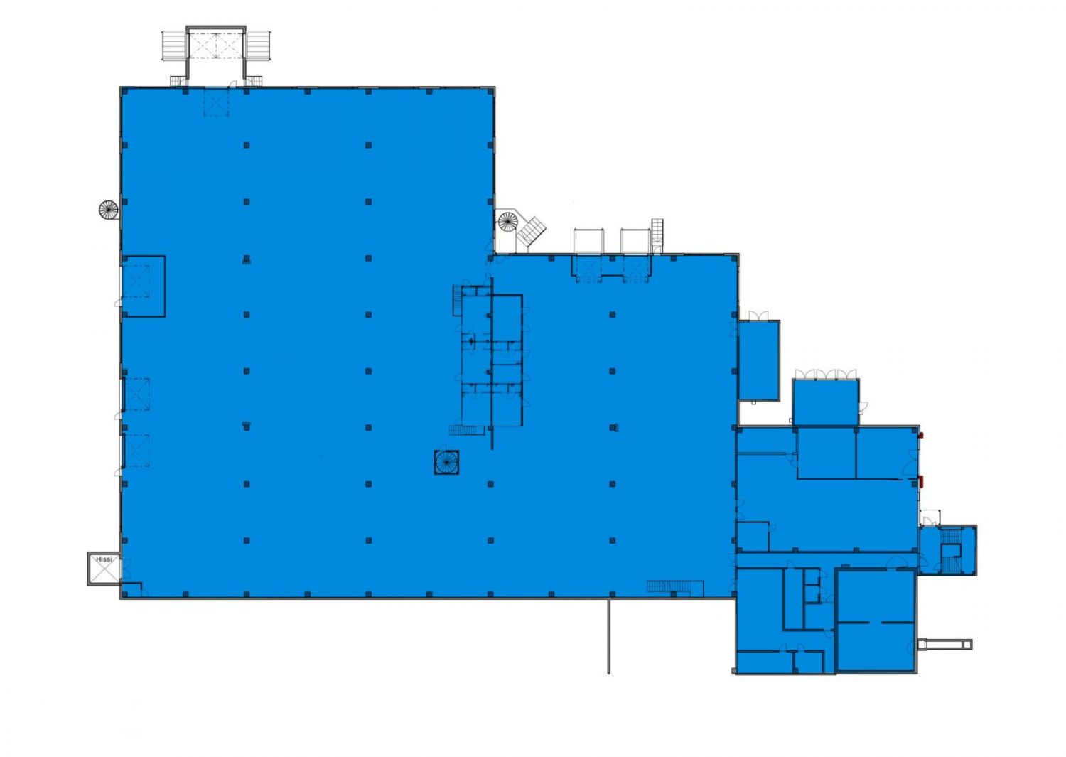
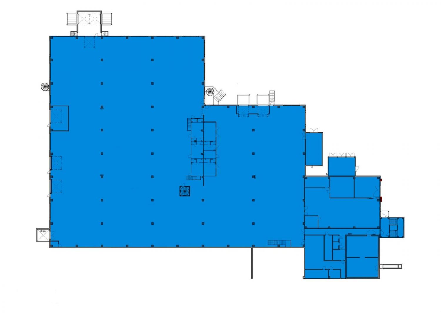
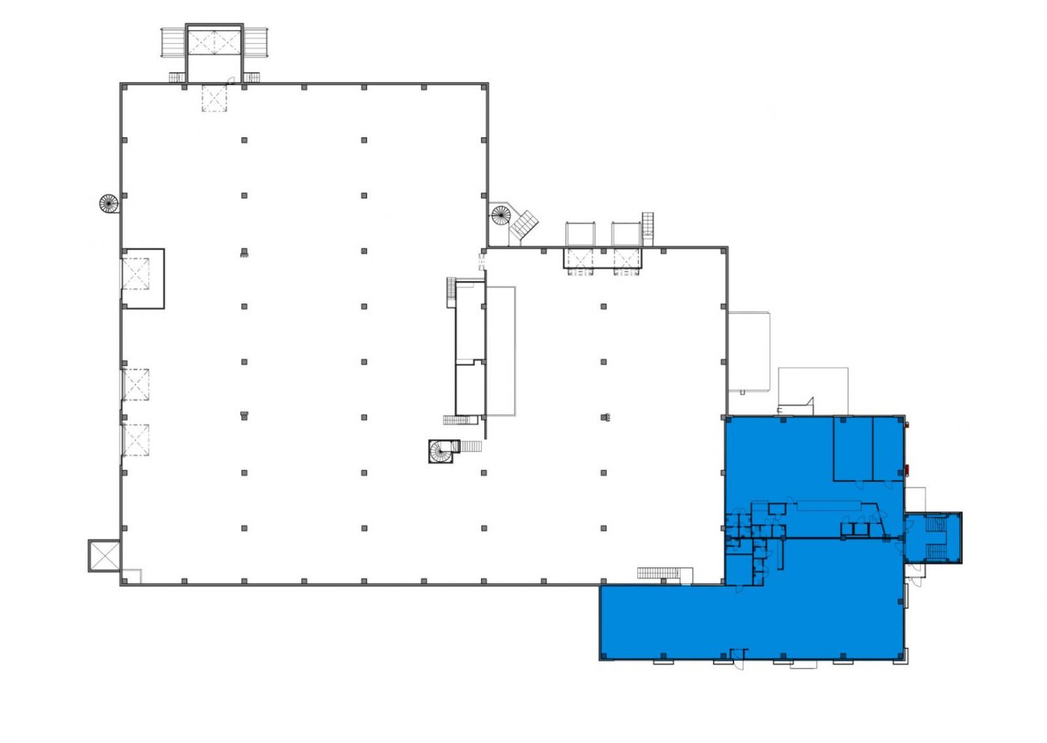
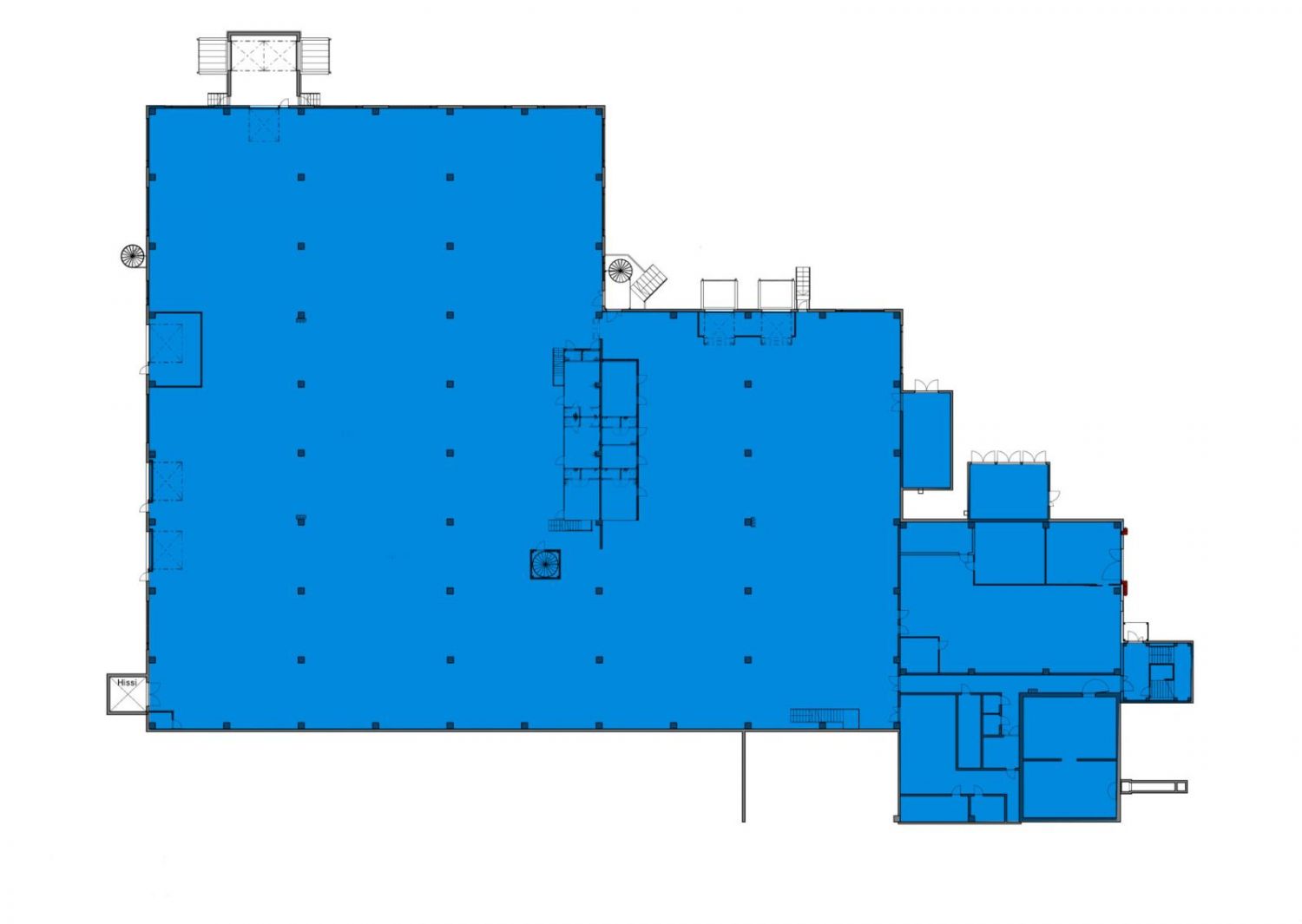
Vuokrataan Espoon Koskelosta heti vapaa 9 039 m² varasto-/tuotantorakennus kokonaan tai lohkottuna pienemmiksi osiksi.
Tilat sisältää varasto-/tuotantotilaa 7 100 m², toimistotilaa 790 m² sekä sosiaali- ja muuta tilaa 1 170 m², joista ravintolatilat 304,5 m². Kiinteistössä on yhteensä 11 lastaustaskua ja varaston lattiankantavuus 1. kerroksessa on 2 000 kg/m² ja 2. kerroksessa 1000 kg/m². Varastotilojen vapaakorkeus on noin 4-4,5 metriä. Huom. osa kohteen kuvista on digitaalisesti käsiteltyjä/havainnekuvia.
Loistava sijainti Espoon Koskelossa Kehä III:n välittömässä läheisyydessä. Kiinteistöstä on hyvät yhteydet kaikille pääväylille sekä Helsinki-Vantaan lentoasemalle ja Vuosaaren satamaan.
Kysy rohkeasti lisätietoja ja sovitaan käynti kohteella jo tänään!
Jaettavissa
Hausala Oy
Erkkilänkatu 11, 33100 Tampere
Näytä puhelinnumero
050 472 7077
Mikko Ranta
Näytä puhelinnumero
050 360 6500
Mika Savikko
Näytä puhelinnumero
050 472 7077
