Vuokrataan toimistotilat - Espoo
Koskelontie 19, Koskelo, 02920 Espoo #10822982
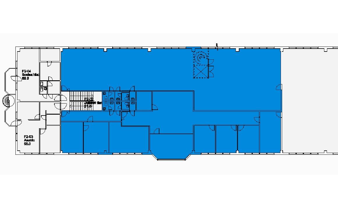
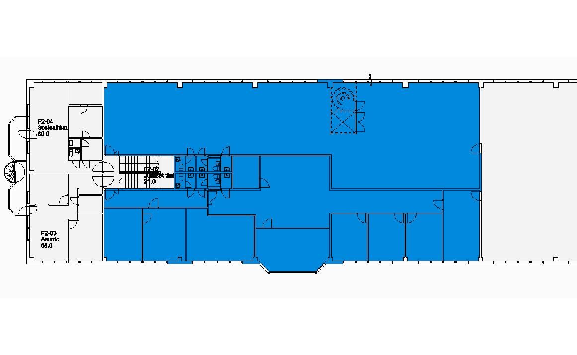
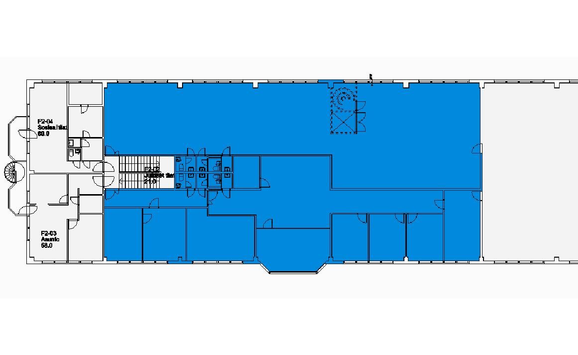
Vuokrataan Espoon Koskelosta heti vapaa toisen kerroksen 550 m² toimistotila. Huom. osa kuvista on digitaalisesti käsiteltyjä.
Toimisto on toiselta puoleltaan avaraa avokonttoritilaa n. 300 m² ja toiselta puolelta se koostuu erillisistä työ-/neuvotteluhuoneista. Tilat voidaan yhdistää muokaten tai jakaa tarpeiden mukaisesti.
Alueella on lounasravintoloita ja lähderannan ostoskeskukseen matkaa on n. 1 km.
Kiinteistön sijainti on hyvä, Kehä III on välittömässä läheisyydessä!
Kysy rohkeasti lisätietoja ja sovitaan käynti kohteella jo tänään!
Jaettavissa
Hausala Oy
Erkkilänkatu 11, 33100 Tampere
Näytä puhelinnumero
050 472 7077
Mikko Ranta
Näytä puhelinnumero
050 360 6500
Mika Savikko
Näytä puhelinnumero
050 472 7077
