Vuokrataan toimistotilat - Espoo
Koskelontie 21-25, Koskelo, 02920 Espoo #10822980
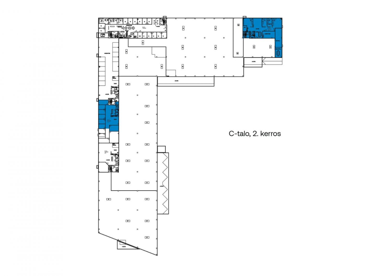
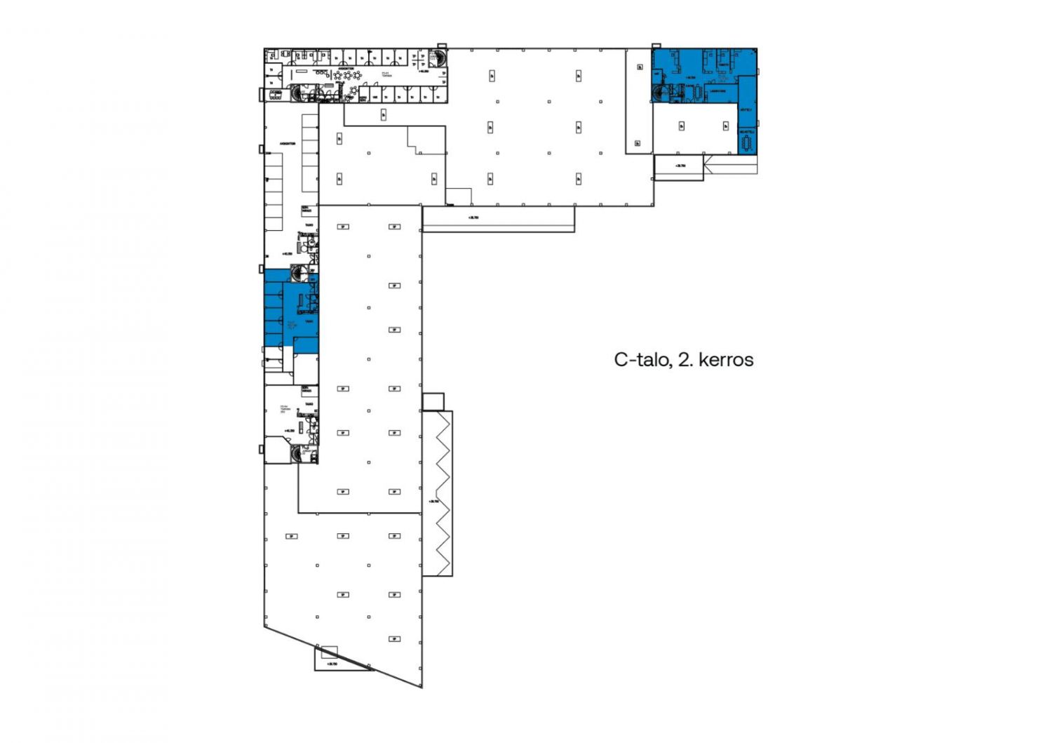
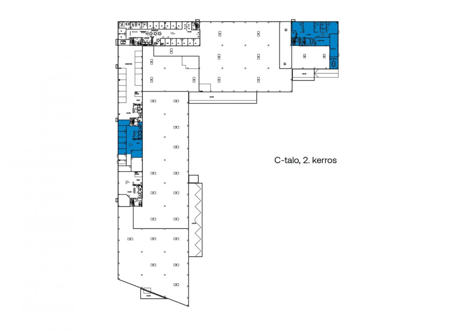
Vuokrataan Espoon Koskelosta heti vapaa toisen kerroksen 294 m² toimistotila.
Tila löytyy C-talosta ja sisältää keittiön sekä WC- tilat.
Kiinteistöstä on mahdollista saada liike-, toimisto- ja varastotilat saman katon alta. Tilat ovat remontoitavissa käyttäjien viihtyvyyden takaamiseksi.
Espoon Koskelossa sijaitseva Koskelo Trade Park on logistiikkakiinteistö, jonka keskeinen sijainti Kehä III:n välittömässä läheisyydessä takaa nopeat yhteydet kaikille pääväylille. Kiinteistön kaikkiin taloihin on tehty energiaremontti ja B- sekä C-taloissa on aurinkopaneelit.
Kysy rohkeasti lisätietoja ja sovitaan käynti kohteella jo tänään!
Hausala Oy
Erkkilänkatu 11, 33100 Tampere
Näytä puhelinnumero
050 472 7077
Mikko Ranta
Näytä puhelinnumero
050 360 6500
Mika Savikko
Näytä puhelinnumero
050 472 7077
