Vuokrataan toimistotilat - Espoo
Mänkimiehentie 4, Kauklahti, 02780 Espoo #10822874
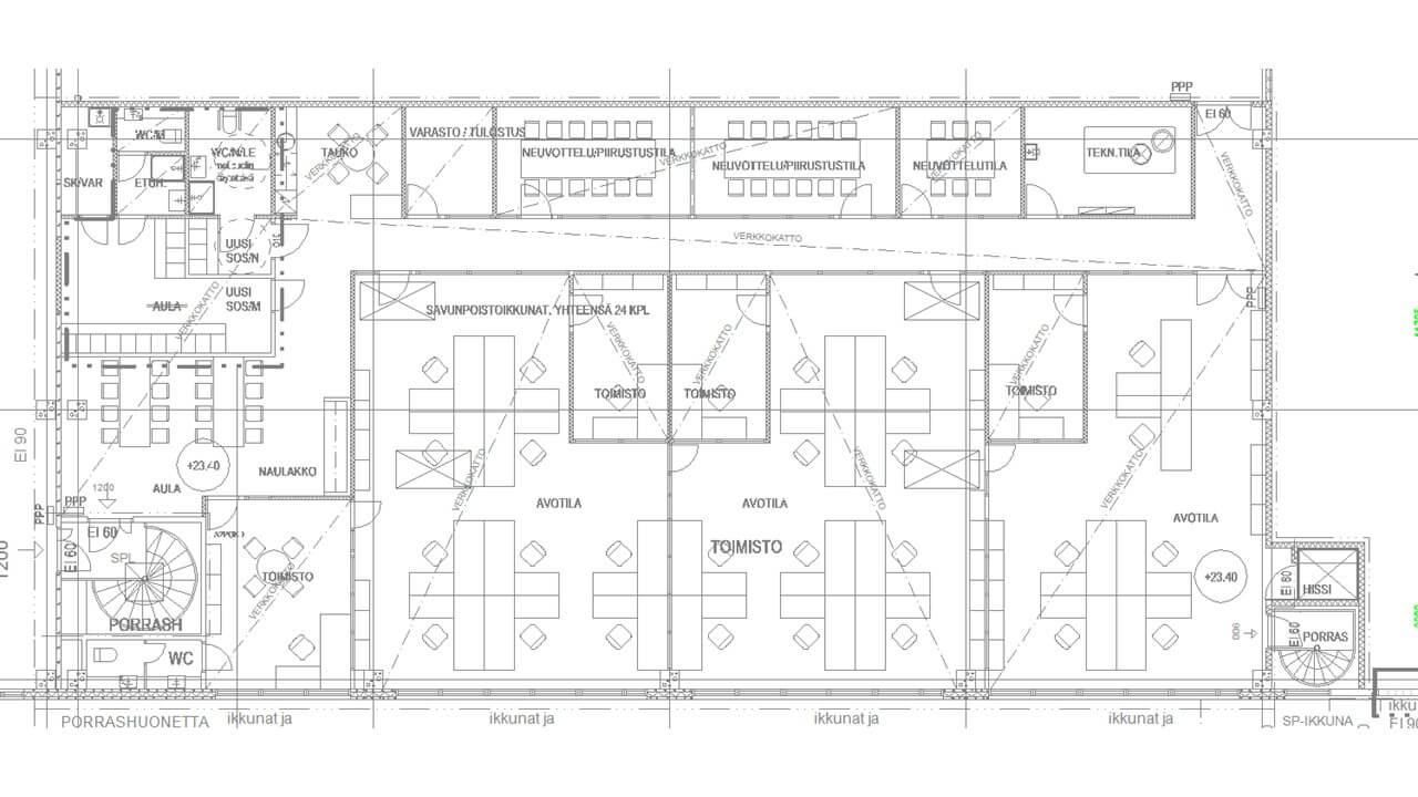
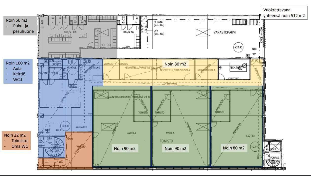
Vuokrattavana 432 m² siistiä ja nykyaikaista toimistotilaa Kauklahdessa logistiikka- / varastorakennuksen toisessa kerroksessa. Toimitilat on tehty noin kaksi vuotta sitten. Toimistotilat voidaan tarvittaessa jakaa esimerkiksi kolmelle ryhmälle, jolloin sosiaalitilat ja keittiö olisivat yhteiskäytössä. Tilaan on ulkoa kaksi sisäänkäyntiporrasta ja hissi. Tavarakuljetuksiin käytettävissä lastauslaituri.
Tilaan sisältyy erillinen pesu- ja pukuhuone, jossa on tilaa jopa noin 50 henkilölle.
Kohteelta on hyvät liikenneyhteydet Kehä III pitkin Turuntielle ja Länsiväylälle. Julkisten pysäkit ovat myös kätevästi kohteen lähellä.
Kysy rohkeasti lisätietoja ja sovitaan käynti kohteella!
Hissi
Hausala Oy
Erkkilänkatu 11, 33100 Tampere
Näytä puhelinnumero
050 472 7077
Mikko Ranta
Näytä puhelinnumero
050 360 6500
Mika Savikko
Näytä puhelinnumero
050 472 7077
