Vuokrataan toimistotilat - Helsinki
Ruosilantie 14, Konala, 00390 Helsinki #10822865
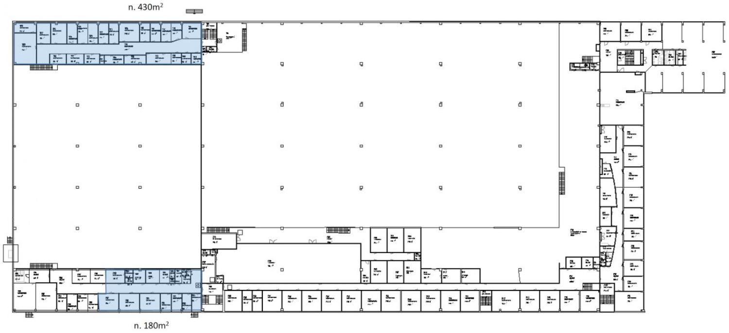
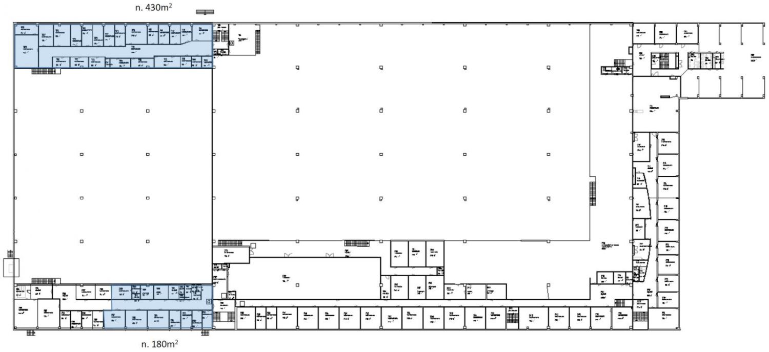
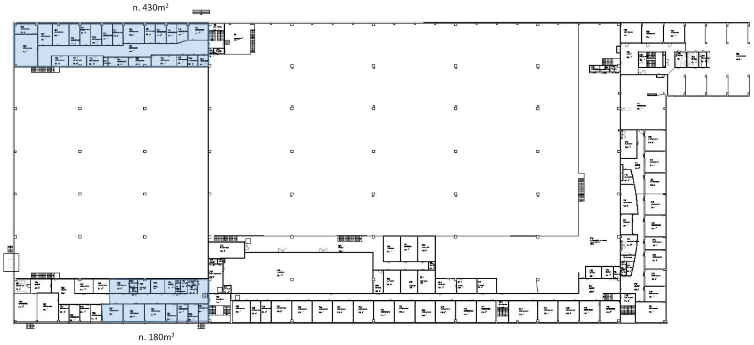
Vuokrataan toisen kerroksen 180 m² toimistotila Helsingin Konalasta. Tämä rauhallinen toimistotila koostuu erikokoisista työhuoneista, mutta se voidaan muuntaa myös avotilaksi tarvittaessa. Tilan pintamateriaaleihin pääsee vielä vaikuttamaan (lattia, vessat, keittiö).
Kiinteistössä on oma lounasravintola, saunaosasto, sosiaalitilat ja laaja parkkialue. Kiinteistö sijaitsee Vihdintien välittömässä läheisyydessä ja on helposti saavutettavissa Kehä I:ltä. Hyvät bussiyhteydet ja Malminkartanon juna-asema sijaitsee 1,3 km päässä.
Kysy rohkeasti lisätietoja ja sovitaan käynti kohteella jo tänään!
Hausala Oy
Erkkilänkatu 11, 33100 Tampere
Näytä puhelinnumero
050 472 7077
Mika Savikko
Näytä puhelinnumero
050 472 7077
Mikko Ranta
Näytä puhelinnumero
050 360 6500
