Vuokrataan toimistotilat - Helsinki
Ruosilantie 14, Konala, 00390 Helsinki #10822864
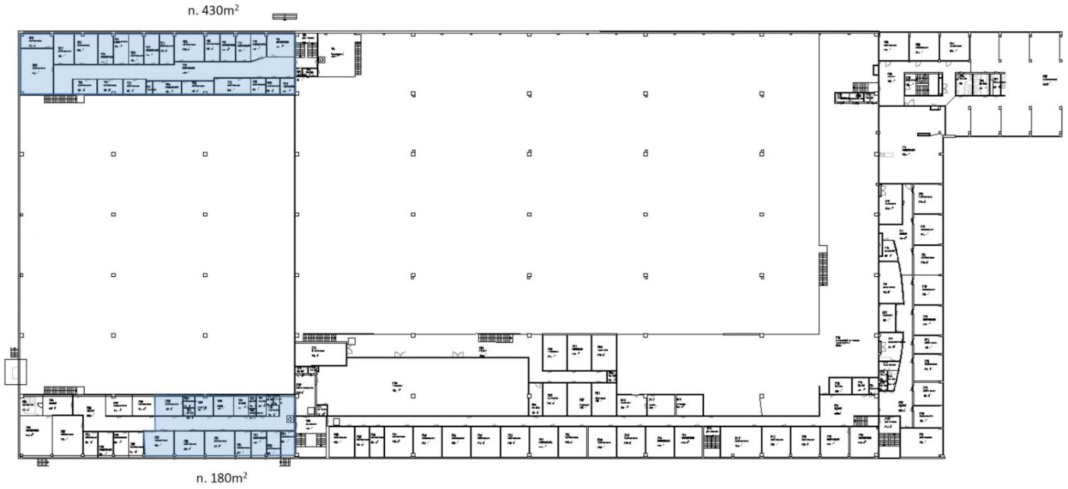
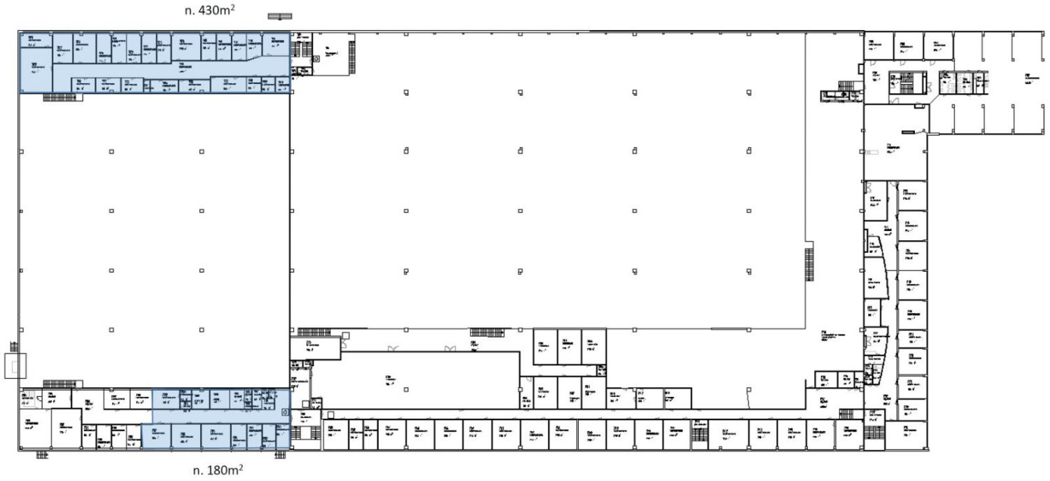
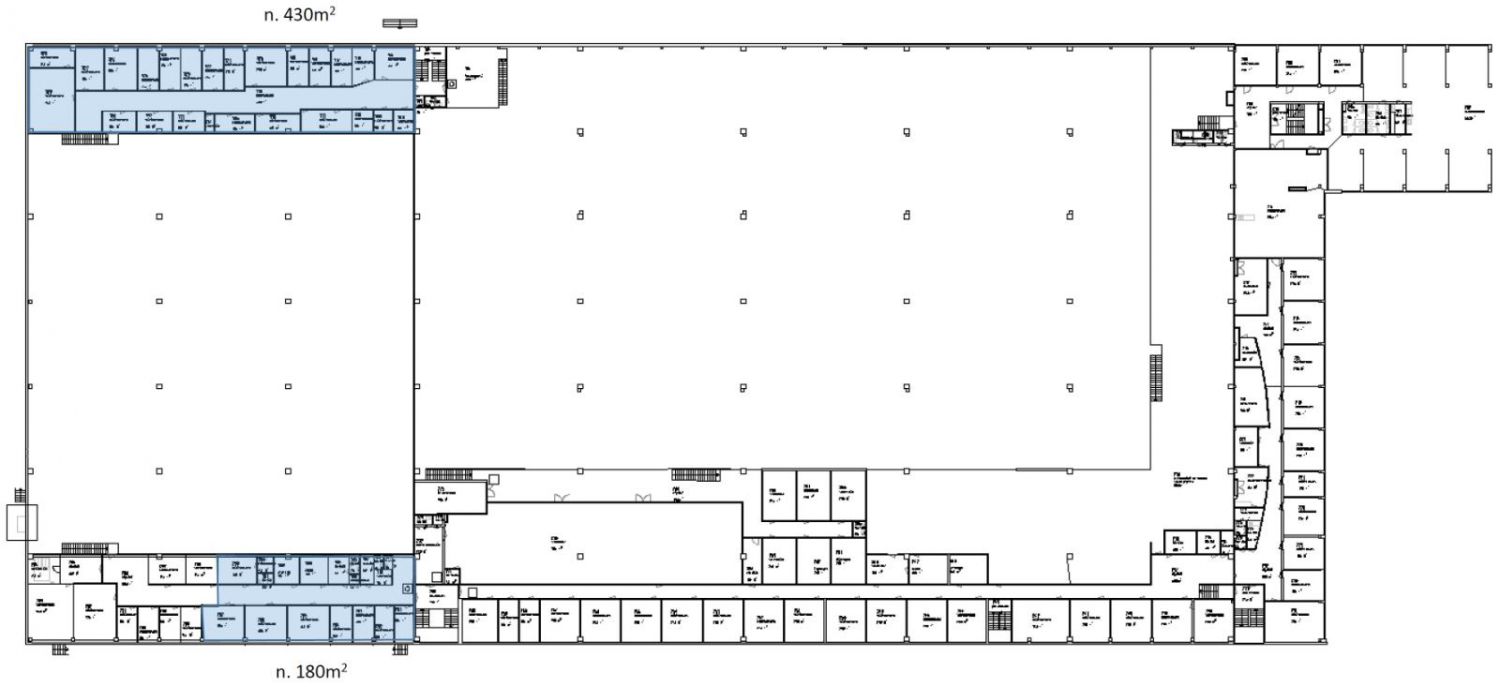
Vuokrataan toisen kerroksen 430 m² toimistotila Helsingin Konalasta. Toimisto koostuu pääosin työhuoneista ja voidaan tarvittaessa remontoida asiakkaan toiveiden mukaan.
Kiinteistössä on oma lounasravintola, saunaosasto, sosiaalitilat ja laaja parkkialue. Kiinteistö sijaitsee Vihdintien välittömässä läheisyydessä ja on helposti saavutettavissa Kehä I:ltä. Hyvät bussiyhteydet ja Malminkartanon juna-asema sijaitsee 1,3 km päässä.
Kysy rohkeasti lisätietoja ja sovitaan käynti kohteella jo tänään!
Hausala Oy
Erkkilänkatu 11, 33100 Tampere
Näytä puhelinnumero
050 472 7077
Mika Savikko
Näytä puhelinnumero
050 472 7077
Mikko Ranta
Näytä puhelinnumero
050 360 6500
