Vuokrataan toimistotilat - Tampere
Kauppakatu 6 (Kuninkaankatu 21), Keskusta, 33210 Tampere #10822769
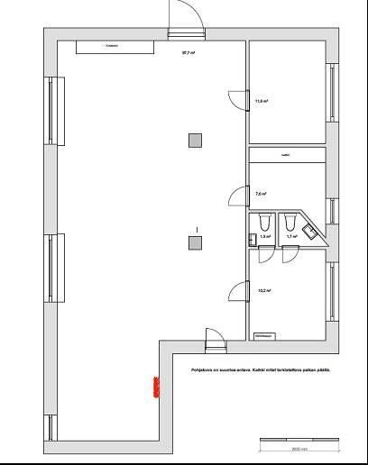
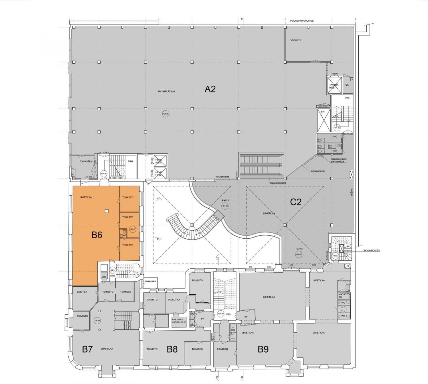
Vuokrataan Tampereen keskustasta toisen kerroksen heti vapaa näyttävä 134 m² toimistotila B6.
Tilan erikoisuutena on korkea huonekorkeus sekä edustava Jugend-tyyli.
Tämä alun perin Kauppaneuvos Tirkkosen rakennuttama jugendtyylinen liiketalo Tampereen keskustassa on yksi kaupungin kauneimmista helmistä. Arkkitehdit Lars Sonck ja Birger Federley suunnittelivat talon, jossa on nähtävissä 1900-luvun alun putkipostilaitteisto.
Kiinteistön arkkitehtuuri on täynnä huoliteltuja yksityiskohtia, kuten seinäreliefejä, kaiteita ja värikkäitä kakluuneja. Vuonna 1901 valmistunutta vanhaa osaa täydentää 1986 valmistunut laajennusosa ja 2010-luvulla katettu sisäpiha, jossa toimii kahvila. Talo sijaitsee vilkkaan kävelykadun varrella, lähellä Hämeenkatua, ja autopaikkoja löytyy omasta autohallista sekä lähellä olevasta pysäköintitalosta.
Kysy rohkeasti lisätietoja ja sovitaan käynti kohteella jo tänään!
Hausala Oy
Erkkilänkatu 11, 33100 Tampere
Näytä puhelinnumero
050 472 7077
Mika Savikko
Näytä puhelinnumero
050 472 7077
Tero Ala-Hannula
Näytä puhelinnumero
040 508 1351
