Vuokrataan toimistotilat, liiketilat - Helsinki
Kotisaarenkatu 3, Arabianranta, 00550 Helsinki #10822755
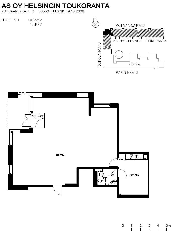
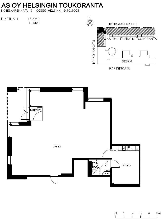
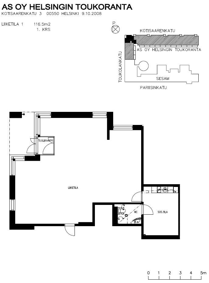
Vuokrattavana katutason 116,5 m² liiketila Arabianrannasta - sisäänkäynti suoraan kadulta! Tila on siistikuntoinen kulmahuoneisto ja tilassa on hyvänkokoiset sosiaalitilat. Tila ei sovellu ravintolakäyttöön. Pysäköintipaikkoja löytyy kadun varresta tilan edestä. Kohteessa on vapaana myös 79 ja 76,5 m² liiketilat.
Kysy lisätietoja tai sovitaan käynti kohteelle!
Osoite
Kotisaarenkatu 3, 00550 Helsinki
Tilatyyppi
Toimistotilaa
76 - 116 m2
Liiketilaa
76 - 116 m2
Yhteensä
76 - 116 m2
Kiinteistö
As Oy Helsingin Toukoranta
Vapautuu
Kysy
Rakennusvuosi
2020
Näkyvällä paikalla
Ota yhteyttä
Hausala Oy
Erkkilänkatu 11, 33100 Tampere
Näytä puhelinnumero
050 472 7077
Mika Savikko
Näytä puhelinnumero
050 472 7077
Mikko Ranta
Näytä puhelinnumero
050 360 6500
Pyydä lisätietoa
