Vuokrataan toimistotilat - Helsinki
Atomitie 1, Pitäjänmäki, 00370 Helsinki #10822750
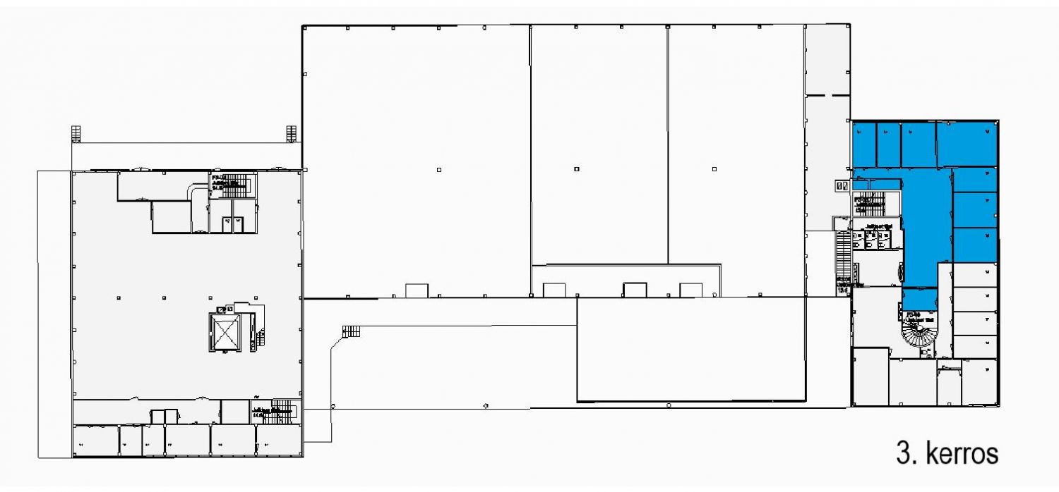
Vuokrataan Helsingin Pitäjänmäeltä kolmannen kerroksen 239 m² toimistotila. Tämä ylimmän kerroksen tila tullaan remontoimaan yhdessä käyttäjän kanssa ennen käyttöönottoa. Huom. Osa kohdekuvista on digitaalisesti käsiteltyjä.
Atomitie 1 on Valimon perinteikkäällä teollisuusalueella sijaitseva logistiikka- ja toimitilakiinteistö.
Kiinteistön keskeinen sijainti Kehä I:n välittömässä läheisyydessä ja hyvät kulkuyhteydet tukevat monenlaista liiketoimintaa. Kehä III on noin 10min ajomatkan päässä, josta on yhteydet mm. Vuosaaren Satamaan ja lentokentälle. Erinomaiset julkisen liikenteen yhteydet Helsingin keskustaan busseilla, junalla Pitäjänmäen asemalta sekä poikittain raitiolinja 15 myötä.
Kysy rohkeasti lisätietoja ja sovitaan käynti kohteella jo tänään!
Hausala Oy
Erkkilänkatu 11, 33100 Tampere
Näytä puhelinnumero
050 472 7077
Mika Savikko
Näytä puhelinnumero
050 472 7077
Mikko Ranta
Näytä puhelinnumero
050 360 6500
