Vuokrataan - Helsinki
Tyynenmerenkatu 3, Jätkäsaari, 00220 Helsinki #10822721
Osoite
Tyynenmerenkatu 3, 00220 Helsinki
Muuta
Toimivaa toimitilaa vapautumassa 1.6.2025 Helsingin Jätkäsaaressa.
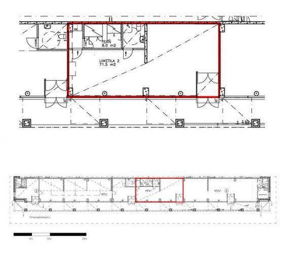
Liiketilat sijaitsevat kiinteistön katutasossa.
Lisätiedot: Sampo Ylikulju 040 354 1771/ sampo.ylikulju@kiinteistotahkola.fi
Liiketilat sijaitsevat kiinteistön katutasossa.
Lisätiedot: Sampo Ylikulju 040 354 1771/ sampo.ylikulju@kiinteistotahkola.fi
Vapautuu
Heti vapaa
Ota yhteyttä
Kiinteistö-Tahkola Oy
Itälahdenkatu 15-17, 2krs, 00210 Helsinki
Näytä puhelinnumero
0207 480 294
Sampo Ylikulju
Näytä puhelinnumero
040 354 1771
Pyydä lisätietoa
