Vuokrataan toimistotilat - Helsinki
Lemuntie 3-5, Vallila, 00510 Helsinki #10822711
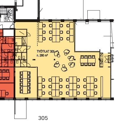
Tähän toimistoon pääset valitsemaan itse juuri sinulle sopivat pinnat. Tila koostuu avarasta avotyötilasta ja suuresta neuvotteluhuoneesta. Lisäksi käytössäsi on siistit wc-tilat sekä keittiö.
Vallilan Akseli on vuonna 1939 rakennettu kiinteistö, joka tunnettiin aikoinaan Autokorirakenne Ab:n toimitiloina. Kiinteistön toinen osa, Elina, toimi puolestaan aiemmin vaatetehtaana. Molemmat rakennukset ovat vuosien varrella muuntautuneet moderneiksi toimitilakiinteistöiksi. 2020-luvulla Vallilan Akseli & Elina muodostavat erinomaisen toimitilakokonaisuuden, josta löytyy kattavat palvelut, kuten lounasravintola, pyöräparkki ja pysäköintihalli.
Me Croisettella autamme teitä löytämään teille parhaat tilat! Olemme puolueettomia asiantuntijoita ja tunnemme toimitilamarkkinat, talot sekä tilat vankalla kokemuksella. Meillä on välityksessä kaikki toimitilat ja tiedämme niiden alustavat vuokratasot.
Tehtävämme on tehdä toimitilahaustanne onnistunut ja helppo. Saamme palkkiomme kiinteistönomistajalta, joten sinulle palvelumme on täysin maksuton.
Hissi
Croisette Real Estate Partner
Erottajankatu 5 A 6, 00130 Helsinki
Näytä puhelinnumero
+358 400 585 857
Croisette Vuokraus
Näytä puhelinnumero
+358400585857
