Vuokrataan toimistotilat, tuotantotilat, varastotilat, työtilat, autotalli/-hallitilat - Porvoo
Veckjärventie 5, 06150 Porvoo #10822581
Vuokrattavana näkyvältä paikalta raskaan kaluston korjaamohallitilaa! Vuokra 14'990 €/kk/kpl + alv
Osoite
Veckjärventie 5, 06150 Porvoo
Tilatyyppi
Toimistotilaa
350 m2
Tuotantotilaa
750 m2
Varastotilaa
750 m2
Työtilaa
1200 m2
Autotalli/-hallitilaa
750 m2
Yhteensä
1200 m2
Tila soveltuu
Autokorjaamo
Vuokra
14'990 €/kk/kpl + alv
Vuokraan sisältyy lämpö
Muuta
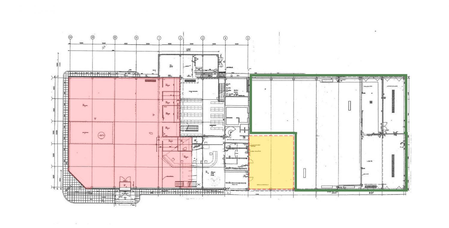
Porvoon Tarmolassa on nyt vuokrattavana iso, raskaan kaluston korjaamo- tai työtila näkyvällä liikepaikalla. Sopii myös varastointiin. Tilan sijainti merkittynä vihreällä pohjakuvaan ja se on pinta-alaltaan 750 m². Vuokrattavaan tilaan kuuluu lisäksi töiden vastaanotto-, pienvarasto-, toimisto- ja sosiaalitilat noin 350 m².
Kuusi metriä korkeassa korjaamohallissa on useita paljeovia, voimavirtaa ja lattiakaivoja.
Pohjakuvaan keltaisella merkitty tila on pinta-alaltaan 110 m² ja soveltuu henkilöautokorjaamoksi. Tämä osa hallista heti vapaa.
Tilat vuokrataan vain yrityskäyttöön.
Piha-alue on iso ja asfaltoidussa pihassa on paljon pysäköintipaikkoja, mikä tekee autolla asioimisen helpoksi asiakkaille.
Rakennus sijaitsee hyvien yhteyksien varrella alueella, jossa on paljon kaupallista ja teollista toimintaa sekä päivittäistavarakaupan toimijoita.
Ison kaluston korjaamotilat hyvällä sijainnilla!
Kohdetiedot
Sijainti
Katuosoite: Veckjärventie 5, 06150 Porvoo
Kaupunginosa: Tarmola
Ympäristö: Yritys- ja teollisuusalue
Rakennus/huoneisto
Pinta-alat: noin 750 m²+ 350 m²
Tilan sisäkorkeus: 6 metriä
Rakennusvuosi: 1972–1974
Kiinteistötyyppi: Liikekiinteistö
Tilatyyppi: Korjaamotila + sosiaalitilat
Kunto, varusteet ja palvelut: Hyvä peruskunto, useita korkeita paljeovia, voimavirtaa, lattiakaivoja sekä töiden vastaanotto-, pienvarasto-, toimisto- ja sosiaalitilat
Pysäköinti: Pihassa
Vapautuu: 1.11.2025
Vuokrahinta ja kulut
Kuukausivuokra: 14'990 €/kk + alv
Sähkö- ja vesimaksu: Mittauksen/kulutukseen mukaan
Lämmitys: Mittauksen mukaan
Jätehuolto: Vuokralainen vastaa kuluistaan
Muuta: Minimisopimuskausi 12 kk, vakuus 3 kk:n vuokraa vastaava summa, luottotietojen oltava kunnossa
Kuusi metriä korkeassa korjaamohallissa on useita paljeovia, voimavirtaa ja lattiakaivoja.
Pohjakuvaan keltaisella merkitty tila on pinta-alaltaan 110 m² ja soveltuu henkilöautokorjaamoksi. Tämä osa hallista heti vapaa.
Tilat vuokrataan vain yrityskäyttöön.
Piha-alue on iso ja asfaltoidussa pihassa on paljon pysäköintipaikkoja, mikä tekee autolla asioimisen helpoksi asiakkaille.
Rakennus sijaitsee hyvien yhteyksien varrella alueella, jossa on paljon kaupallista ja teollista toimintaa sekä päivittäistavarakaupan toimijoita.
Ison kaluston korjaamotilat hyvällä sijainnilla!
Kohdetiedot
Sijainti
Katuosoite: Veckjärventie 5, 06150 Porvoo
Kaupunginosa: Tarmola
Ympäristö: Yritys- ja teollisuusalue
Rakennus/huoneisto
Pinta-alat: noin 750 m²+ 350 m²
Tilan sisäkorkeus: 6 metriä
Rakennusvuosi: 1972–1974
Kiinteistötyyppi: Liikekiinteistö
Tilatyyppi: Korjaamotila + sosiaalitilat
Kunto, varusteet ja palvelut: Hyvä peruskunto, useita korkeita paljeovia, voimavirtaa, lattiakaivoja sekä töiden vastaanotto-, pienvarasto-, toimisto- ja sosiaalitilat
Pysäköinti: Pihassa
Vapautuu: 1.11.2025
Vuokrahinta ja kulut
Kuukausivuokra: 14'990 €/kk + alv
Sähkö- ja vesimaksu: Mittauksen/kulutukseen mukaan
Lämmitys: Mittauksen mukaan
Jätehuolto: Vuokralainen vastaa kuluistaan
Muuta: Minimisopimuskausi 12 kk, vakuus 3 kk:n vuokraa vastaava summa, luottotietojen oltava kunnossa
Vapautuu
Heti
Katutasossa
Näkyvällä paikalla
Ota yhteyttä
Tilat.fi
KTM, LKV Antti Soivio
Näytä puhelinnumero
0400 446 553
OTM, LKV Riikka Tuominen
Näytä puhelinnumero
0400 551 790
KTM, LKV Maria-Sofia Puhakka
Näytä puhelinnumero
0400-150330
Yrityksen virallinen nimi: LKV Toimitilaa.fi Oy. Toimitilojen välitykseen erikoistunut yritys.
http://www.tilat.fiPyydä lisätietoa
