Vuokrataan tuotantotilat, varastotilat - Helsinki
Valokaari 10, Suutarila, 00750 Helsinki #10822578
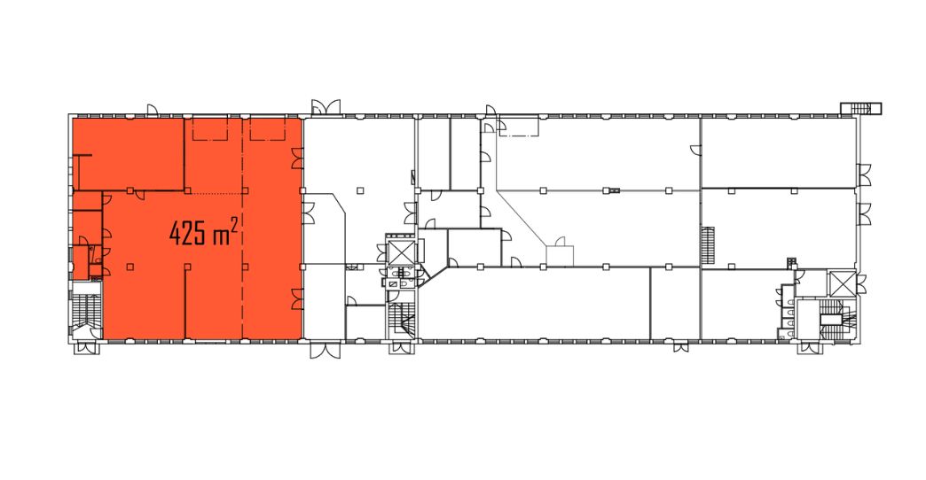
Vuokrattavana katutason läpiajettava tuotanto- tai varastotila.
Osoite
Valokaari 10, 00750 Helsinki
Tilatyyppi
Tuotantotilaa
425 m2
Varastotilaa
425 m2
Yhteensä
425 m2
Kiinteistö
Vuokrattavana katutason läpiajettava tuotanto- tai varastotila. Tilan korkeus on noin 3 m ja sinne johtaa oma nosto-ovi ja taitto-ovi. Tila ei sovellu autopesulaksi.
Sijainti
Suutarila, Helsinki
Pysäköinti
Kiinteistön pihalla
Palvelut
Alueella on hyvät palvelut.
Kulkuyhteydet
-Bussi
-Oma auto
-Oma auto
Vapautuu
Heti
Kerros
kellari
Energiatehokkuusluokka
Ei lain edellyttämää energiatodistusta
Ota yhteyttä
REALIUM OY LKV
Tammasaarenkatu 1, 00180 Helsinki
Vaihde:
Näytä puhelinnumero
010 326 346
Tuomo Mäkelä
tuomo.makela@realium.fi
p.
Näytä puhelinnumero
044 050 1158
Joel Keto
joel.keto@realium.fi
p.
Näytä puhelinnumero
045 317 0330
KAIKKI TILAVAIHTOEHDOT KERRALLA!
SOITA - MEILAA JA TILAA NÄYTTÖ!
Ilmainen palvelu tilanhakijoille.
Kartoitamme parhaat tilavaihtoehdot.
Kaikki kohteet eivät ole netissä.
Pyydä lisätietoa
