Vuokrataan toimistotilat - Helsinki
Autotalo, Salomonkatu 17, Kamppi, 00100 Helsinki #10822551
Tyylikäs 329 m² toimistotila Helsingin halutuimmalla paikalla.
Osoite
Salomonkatu 17, 00100 Helsinki
Tilatyyppi
Toimistotilaa
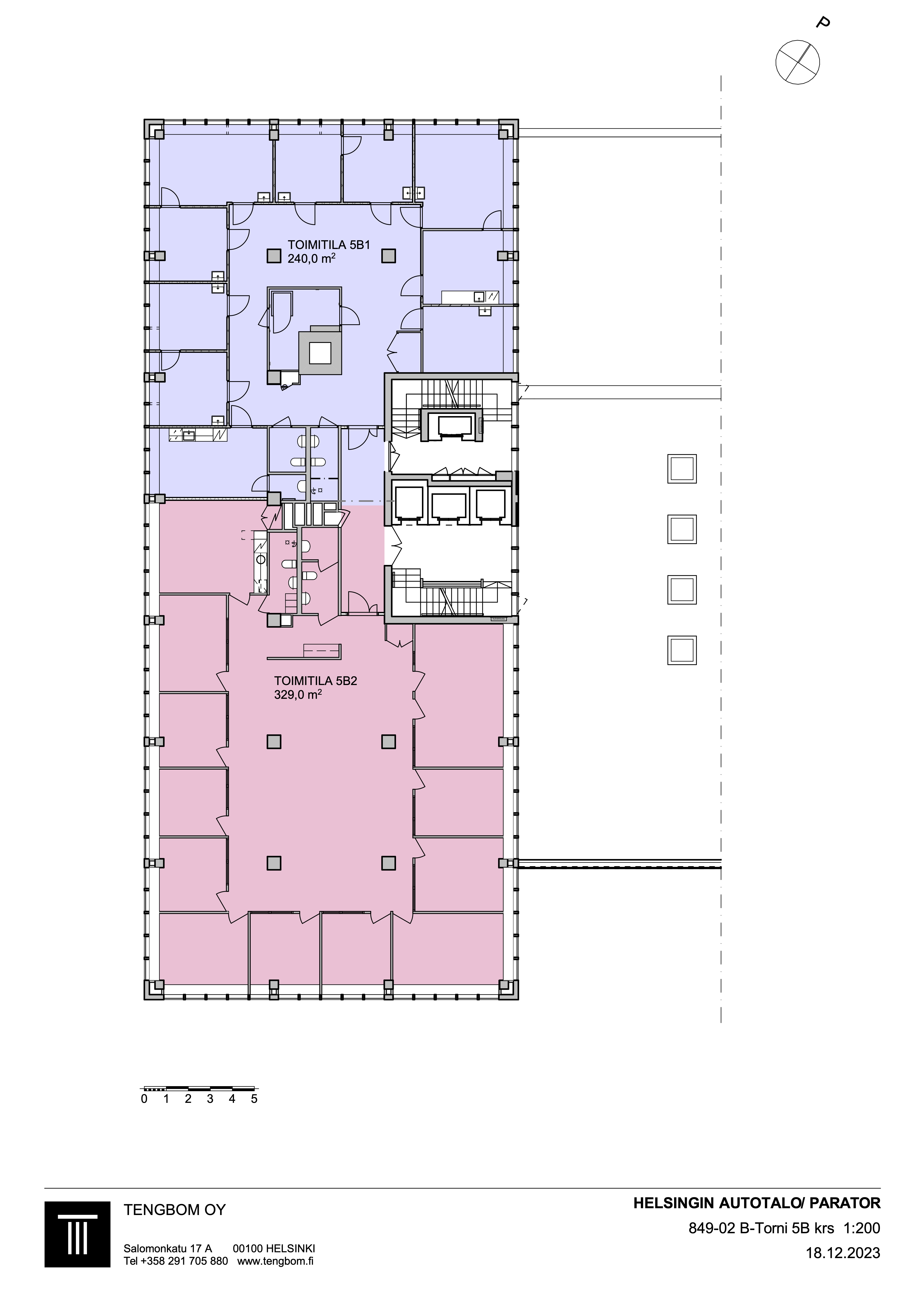
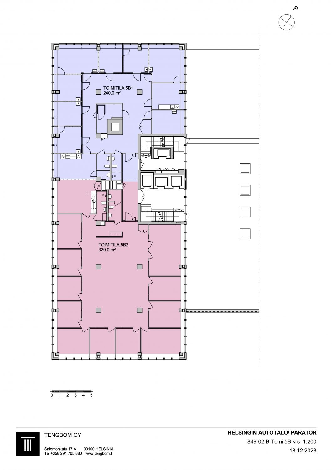
329 m2
Pohjapiirros
Kiinteistö
Kampin Autotalno viidennessä kerroksessa tyylikäs 329 m² toimistotila.
Kiinteistö sijaitsee näkyvällä paikalla Kampin kauppakeskuksen vieressä. Erinomaiset julkiset kulkuyhteydet sekä autohalli yksityisautoille.
Tilassa on ilmastointi.
Kiinteistössä on autohalli, pyöräparkki suihkuineen ja ravintolamaailma.
Kiinteistössä 2015 valmistunut mittava perusparannushanke.
Kiinteistö sijaitsee näkyvällä paikalla Kampin kauppakeskuksen vieressä. Erinomaiset julkiset kulkuyhteydet sekä autohalli yksityisautoille.
Tilassa on ilmastointi.
Kiinteistössä on autohalli, pyöräparkki suihkuineen ja ravintolamaailma.
Kiinteistössä 2015 valmistunut mittava perusparannushanke.
Pysäköinti
Kiinteistössä oma parkkihalli.
Palvelut
Kampin keskuksen monipuoliset palvelut. Kiinteistössä on autohalli, pyöräparkki suihkuineen ja ravintolamaailma.
Kulkuyhteydet
Kampin metroasema ja linja-autoasema aivan vieressä.
Metroasema 100 m, Raitiovaunupysäkki alle 100 m, Bussipysäkki alle 100 m, Juna-asema 700 m, Lentoasema 16,6 km.
Metroasema 100 m, Raitiovaunupysäkki alle 100 m, Bussipysäkki alle 100 m, Juna-asema 700 m, Lentoasema 16,6 km.
Vapautuu
Heti
Rakennusvuosi
1958
Kerros
5 / 12
Energiatehokkuusluokka
Ei lain edellyttämää energiatodistusta
Näkyvällä paikalla
Hissi
Ota yhteyttä
ScanReal Oy LKV
Opus Business Park
Hitsaajankatu 24
00810 Helsinki
info@scanreal.fi
Puh:
Näytä puhelinnumero
020 730 8830
Sopivat toimitilat yhdellä otolla!
Kartoitamme toimitilatarpeesi ja etsimme yrityksellesi parhaiten sopivat vapaat toimitilat. Koska vuokranantajat maksavat palvelumme, on tämä yrityksellesi veloituksetonta.
OTA YHTEYTTÄ - SOVI NÄYTTÖ!
Kaikki kohteemme eivät ole netissä, kerro tilatarpeesi niin kartoitamme vaihtoehdot.
Palvelumme on tilanhakijalle ilmainen
Pyydä lisätietoa
