Vuokrataan - Helsinki
Valokaari 10, Suutarila, 00750 Helsinki #10822478
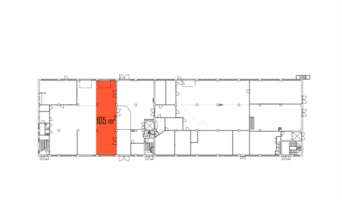
Vuokrataan perinteikkäästä teollisuusmiljööstä katutason tuotanto- tai varastotila 105 m². Tilan korkeus on noin 3 m ja sinne johtaa oma nosto-ovi (leveys 300 cm, korkeus 227 cm) suoraan pihalta. Lisäksi lastausaulan kautta on kulkumahdollisuus pariovien kautta. Tila voidaan erottaa viereisestä tilasta rakentamalla niiden väliin ylä- ja alareunoista avoin seinämä.
Sijainti on tunnettu ja hyvä. Pääkaupunkiseudun selkärangalle, Kehä 3:lle, on alle kilometri, Helsinki-Vantaan lentoasemalle alle 10 kilometriä ja Vuosaaren satamaan vain hieman reilu 10 km.
Kysy lisää, Jouko Raitanen Helsinki, puh. 0504695444.
RHG Real Estate
Hämeenkatu 2 B20, 20500 Turku
Näytä puhelinnumero
020 734 4020
Jouko Raitanen
Näytä puhelinnumero
050 469 5444
