Vuokrataan toimistotilat - Espoo
Käärmesaarentie 3, Westend, 02160 Espoo #10822450
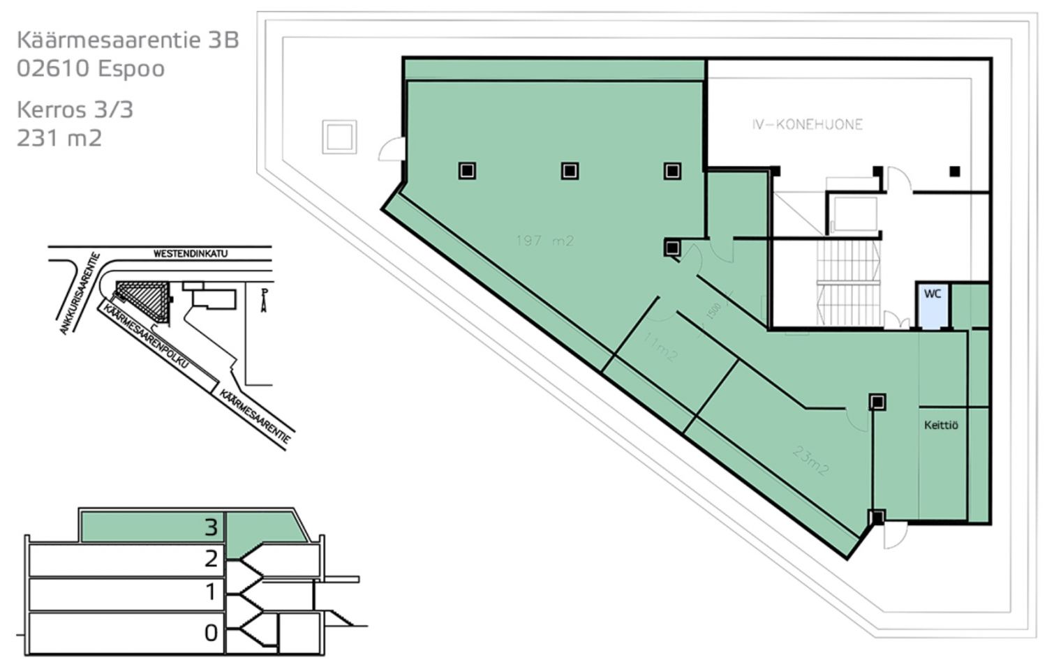
Tilaisuus hankkia toimistotila arvostetulta alueelta Espoon Westendistä! Tämä yksilöllinen 231 neliömetrin toimisto sijaitsee rauhallisen asuinalueen kyljessä ja tarjoaa erinomaiset liikenneyhteydet – lähellä on sekä metroasema (1,9 km) että bussipysäkki (190 m).
Osoite
Käärmesaarentie 3, 02160 Espoo
Tilatyyppi
Toimistotilaa
231 m2
Kiinteistö
Toimisto sijaitsee rakennuksen kolmannessa kerroksessa. Kiinteistössä on hissi kulkua helpottamaan. Toimistosta avautuu dynaamiset näkymät Länsiväylän suuntaan ja muun muassa vehreään asuinalueen suuntaan. Kävellen vain sillan ylitys ja olet Tapiolan puolella. Läheisyydessä on myös merenranta, mikä lisää alueen viehättävyyttä.
Westend on tunnettu rauhallisuudestaan ja kauniista ympäristöstään. Tämä toimistotila on loistava valinta yritykselle, joka arvostaa hyviä yhteyksiä ja etsii kustannustehokasta, hieman spesiaalimpaa tilaa. Tämä hieman loft-henkinen toimisto omaa erikoisuutena kaksi erillistä kattoterassia. Nauti lounaasta ulkona, aloita päivä vaikka ulkojoogalla tai hyödynnä raikasta ulkoilmaa piristävämpiin palavereihin. Toimistossa on valmiina yksi työhuone, neuvottelutilaa ja avotilaa, sekä siisti keittiö ja wc-tilat.
Westend on tunnettu rauhallisuudestaan ja kauniista ympäristöstään. Tämä toimistotila on loistava valinta yritykselle, joka arvostaa hyviä yhteyksiä ja etsii kustannustehokasta, hieman spesiaalimpaa tilaa. Tämä hieman loft-henkinen toimisto omaa erikoisuutena kaksi erillistä kattoterassia. Nauti lounaasta ulkona, aloita päivä vaikka ulkojoogalla tai hyödynnä raikasta ulkoilmaa piristävämpiin palavereihin. Toimistossa on valmiina yksi työhuone, neuvottelutilaa ja avotilaa, sekä siisti keittiö ja wc-tilat.
Sijainti
Rauhallisen asuinalueen vieressä ja vain minuutti Länsiväylältä ja olet kohteella.
Pysäköinti
Piha-alueella.
Palvelut
Samassa kiinteistössä toimii CrossFit-sali.
Kulkuyhteydet
Autolla ajat nopeasti kohteelle Kehä I:ltä (n. 4min), Länsiväylältä (n. 1 min), sekä Tapiolasta Tapiolantieltä ja Etelätuulentieltä. Lähellä on sekä metroasema (1,9 km) että bussipysäkki (190 m).
Muuta
Tartu tilaisuuteen ja tule tutustumaan tähän kustannustehokkaaseen ja yksilölliseen toimistoon!
Vapautuu
Heti
Kerros
3 / 3
Hissi
Ota yhteyttä
MAP Tilat Oy
Maarit Helander
Näytä puhelinnumero
044 593 8661
Energiakuja 3, 00180 Helsinki
Mika Hermaala
Näytä puhelinnumero
040 192 1313
Energiakuja 3, 00180 Helsinki
Pyydä lisätietoa
