Vuokrataan toimistotilat - Seinäjoki

Keskuskatu 6, 60100 Seinäjoki #10822434

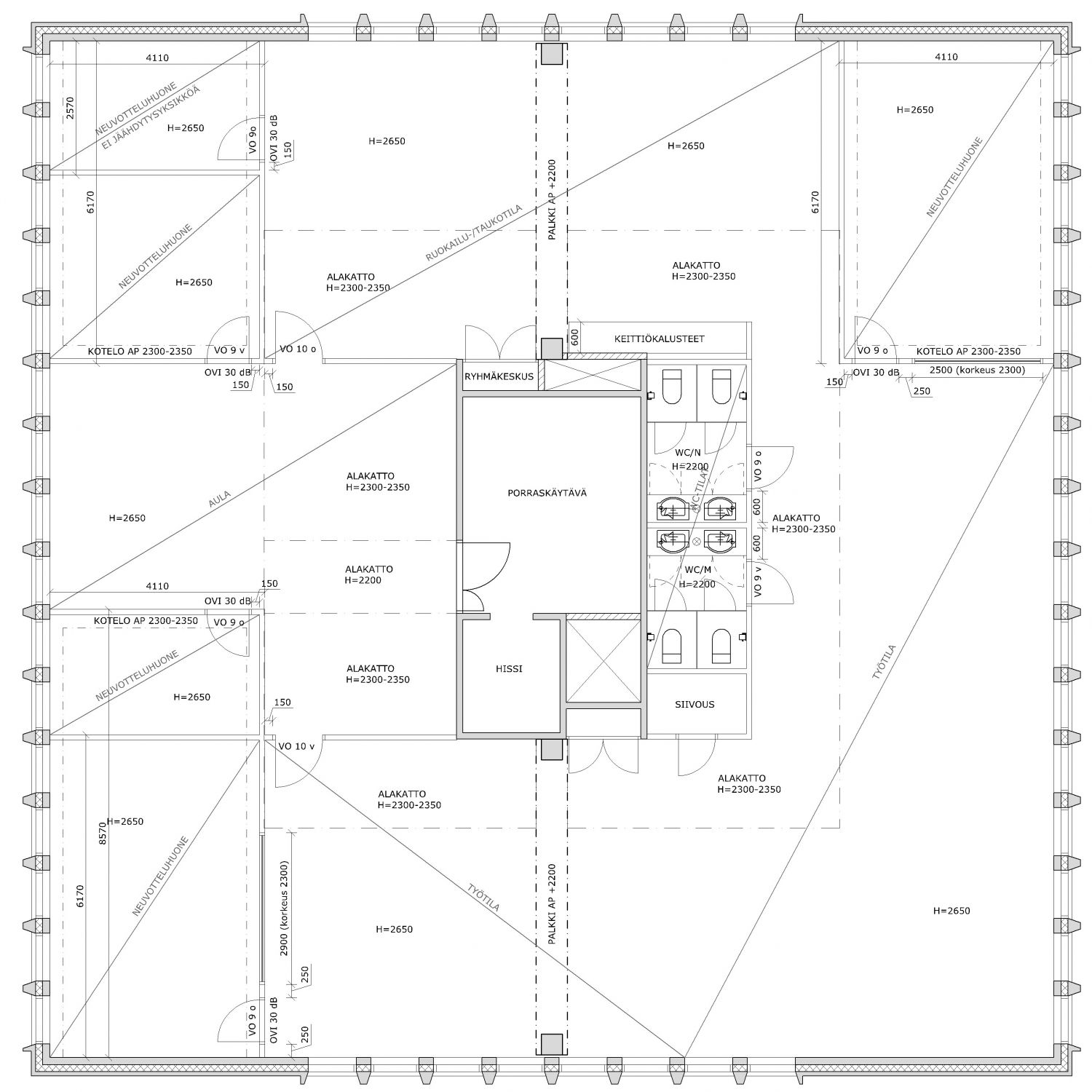
Modernia toimistotilaa

Osoite
Keskuskatu 6, 60100 Seinäjoki
Tilatyyppi
Toimistotilaa
345 m2
Pohjapiirros
Muuta
Näyttävää toimistotilaa Seinäjoen keskustassa, rautatieaseman vieressä. Remontoitu kokonaisuudessaan vuonna 2020 ja on kunnoltaan uudenveroinen. Tilassa myös jäähdytys erikseen säädettävillä sisäyksiköillä. Valokuitu takaa nopeat yhteydet. Parkkipaikkoja löytyy henkilökunnalle talon omasta parkkihallista.

Tätä kannattaa tulla katsomaan!
Vapautuu
01.07.2025
Kerros
3 / 3

Hissi

Ota yhteyttä

Kuisla Group Oy

Juhani Jankkari, Näytä puhelinnumero 050 538 8644
Reima Kuisla, Näytä puhelinnumero 0500 660 264

Pyydä lisätietoa

Kohteesta Keskuskatu 6, Seinäjoki

 

B2B palvelut

MARKKINOINTI

Tavoita oikea kohderyhmä!

LASTAUSRATKAISUT

Mainos
Lastauksien ratkaisut tehokkaammin ja turvallisemmin