Vuokrataan toimistotilat - Helsinki
Kaikukatu 3A, Kallio, 00530 Helsinki #10822425
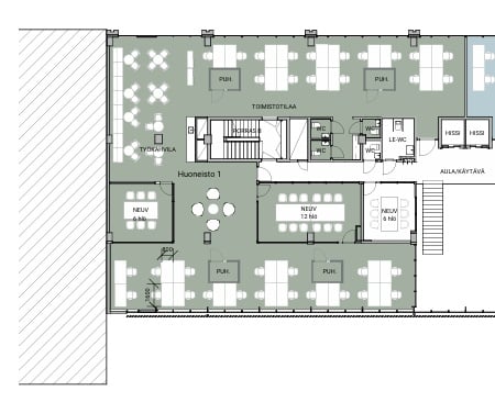
Nyt vuokrattavissa uniikit toimitilat suurilla ikkunoilla ja valoisalla tunnelmalla. Tila koostuu pääosin avotyötilasta sekä muutamasta neuvotteluhuoneesta. Lisäksi käytössäsi on viihtyisä taukotila keittiöllä sekä siistit wc-tilat. Tilaa voidaan myös muokata vuokralaisen tarpeen mukaan, joten tilaan on mahdollista lisätä yksittiäisiä huoneita.
Kaikukatu 3a eli Haiku on upea juuri uudistettu kiinteistö Kalliossa. Kiinteistö vangitsee uniikkilla ja minimalistisella ilmeellään jokaisen katseen ja saman katon alta löydät kaiken tarvittavan. Kiinteistön katutasoon tulee ravintola, joten lounaan saa kätevästi vain muutamassa minuutissa. Työmatkapyöräilijöille on tarjolla esteettömät suihku- ja pukuhuonetilat sekä hyödyllinen kuivatushuone vaatteille. Rakennuksessa on myös vuokrattavia neuvotteluhuoneita ja erillisiä varastotiloja. Kiinteistöstä löytyy toimitiloja kokoluokassa 150-650 m2.
Me Croisettella autamme teitä löytämään teille parhaat tilat! Olemme puolueettomia asiantuntijoita ja tunnemme toimitilamarkkinat, talot sekä tilat vankalla kokemuksella. Meillä on välityksessä kaikki toimitilat ja tiedämme niiden alustavat vuokratasot.
Tehtävämme on tehdä toimitilahaustanne onnistunut ja helppo. Saamme palkkiomme kiinteistönomistajalta, joten sinulle palvelumme on täysin maksuton.
Hissi
Croisette Real Estate Partner
Erottajankatu 5 A 6, 00130 Helsinki
Näytä puhelinnumero
+358 400 585 857
Croisette Vuokraus
Näytä puhelinnumero
+358400585857
