Vuokrataan toimistotilat - Helsinki
Itälahdenkatu 23, Lauttasaari, 00210 Helsinki #10822406
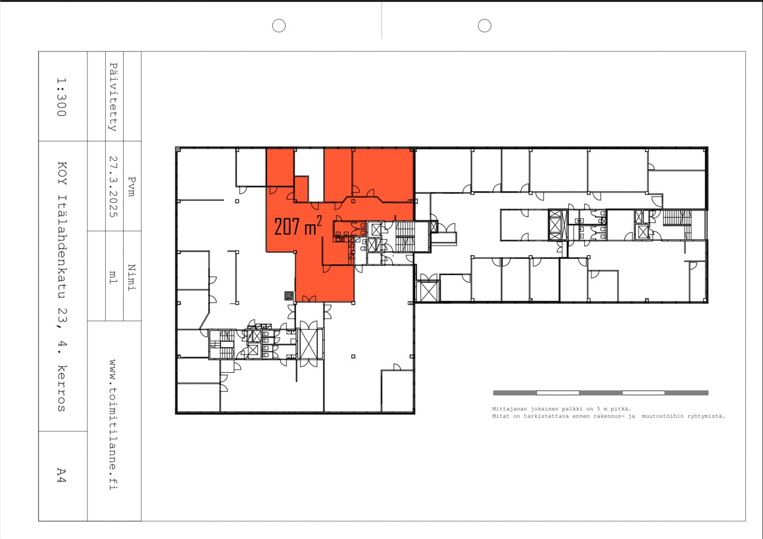
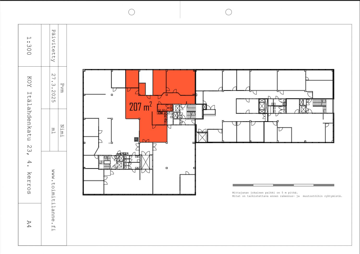
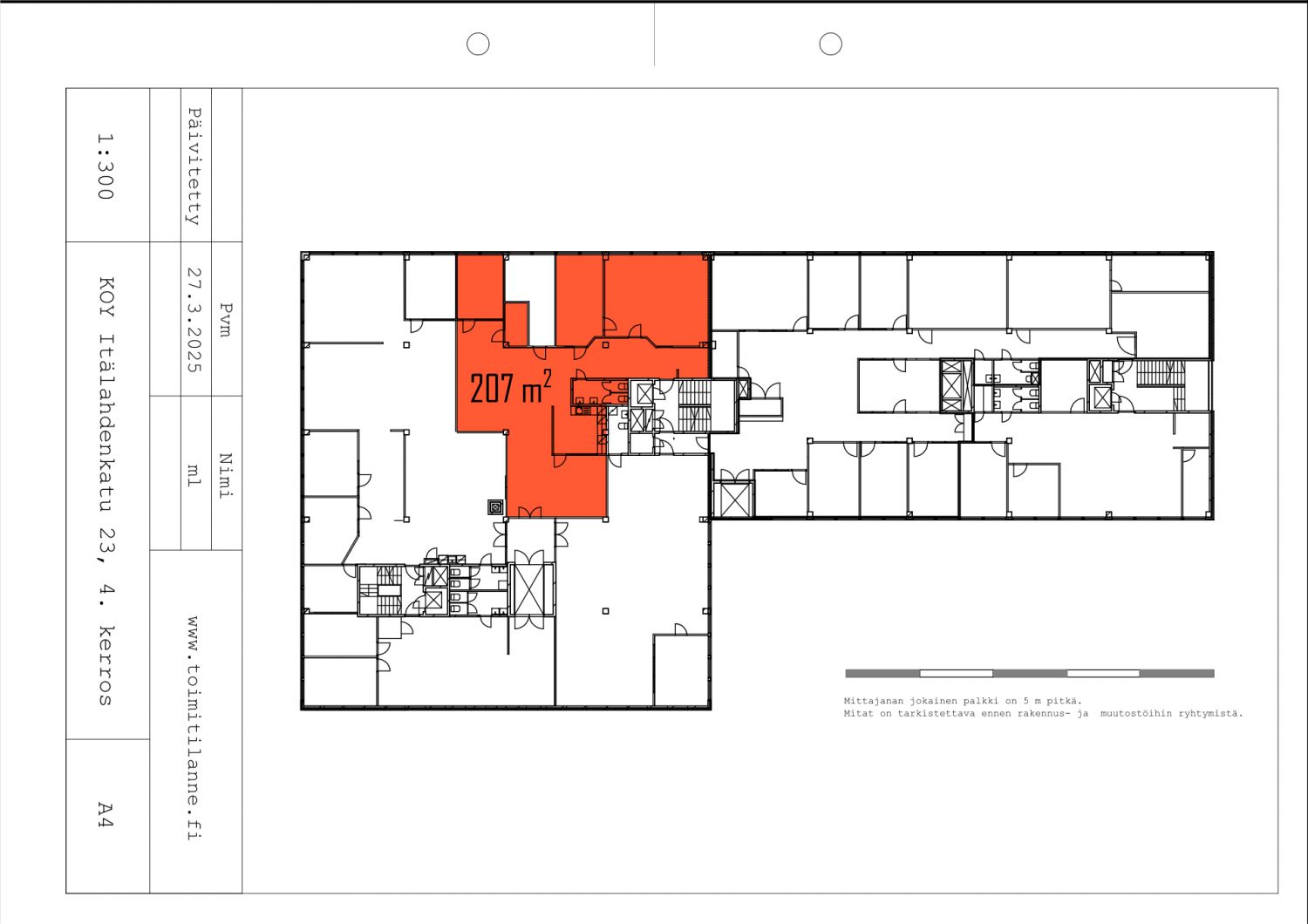
Monipuolisessa vuokrattavassa toimistotilassa toimistohuoneita, näyttely- ja varastotilaa. Tarvittaessa varastotilan osuutta voidaan pienentää. Wc ja keittiö. Käytössä henkilö- ja tavarahissi.
Helsingin Lauttasaaressa sijaitseva toimistorakennus on valmistunut 1970. Kiinteistöllä on omia parkkipaikkoja ja lastauslaituri. Henkilöhissit kulkevat kaikkiin kerroksiin ja tavarahissit 4. kerrokseen asti.
Lisätietoa 020 7290 710 ja lisää kohteita premises.fi.
Kohteella ei ole lain edellyttämää energiatodistusta tai energialuokka ei tiedossa.Kerros: 4
Osoite
Itälahdenkatu 23, 00210 Helsinki
Tilatyyppi
Toimistotilaa
207 m2
Ota yhteyttä
CRE PREMISES
Puh. Näytä puhelinnumero 020 7290 710
Vantaankoskentie 14
01670 VANTAA
Pyydä lisätietoa
