Vuokrataan tuotantotilat, varastotilat - Helsinki
Valokaari 10, Suutarila, 00750 Helsinki #10822364
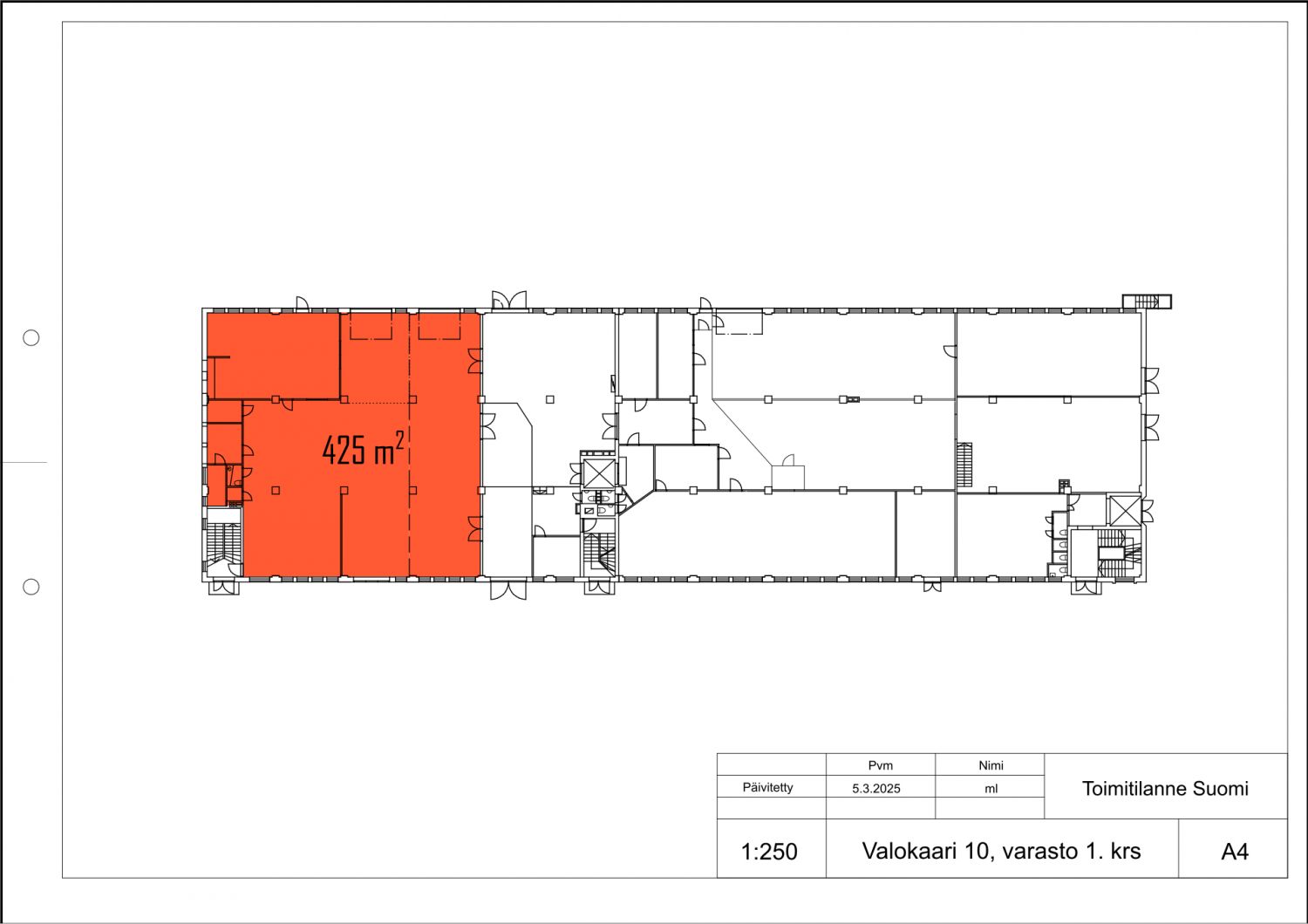
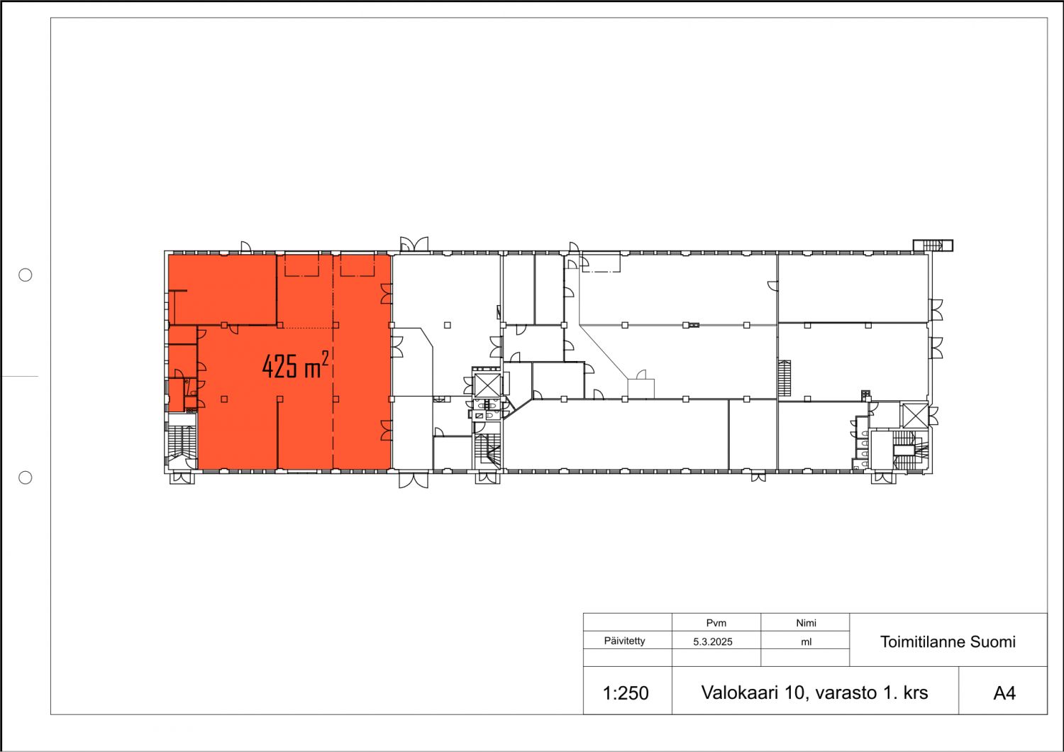
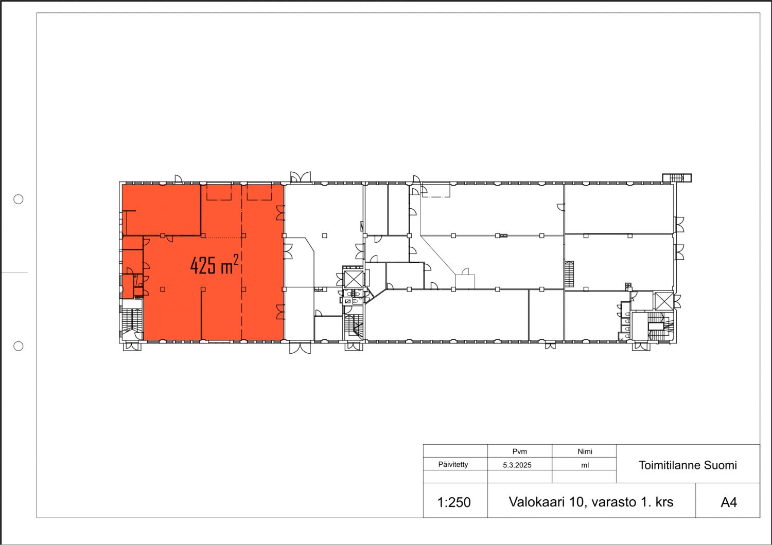
Vuokrataan perinteikkäästä teollisuusmiljööstä läpiajettava katutason tuotanto- tai varastotila 425 m2. Tiloissa on toiminut pitkään autopalvelualan yritys, mutta tila ei sovellu autopesulaksi. Tilan korkeus on noin 3 m ja sinne johtaa pihalta kaksi omaa nosto-ovea ja taitto-ovi. Tilakokonaisuuteen kuuluu myös pieni toimisto, mainio keittiö ja WC-tilat. Aulassa hauska ruutulattia, sopii esim. asiakkaiden vastaanottamiseen. Pohjapiirrokseen katkoviivalla merkitty kevyt väliseinä voidaan purkaa tarvittaessa.
Kiinteistö sijaitsee alle 10 km päässä Helsinki-Vantaan lentoasemalta.
Lisätiedot ja kohde-esittelyt 020 7290 710, lisää kohteita premises.fi.
Kohteella ei ole lain edellyttämää energiatodistusta tai energialuokka ei tiedossa.Kerros: 1
CRE PREMISES
Puh. Näytä puhelinnumero 020 7290 710
Vantaankoskentie 14
01670 VANTAA
