Vuokrataan toimistotilat, muut tilat - Kuopio
Vuorikatu 34, 70110 Kuopio #10822295
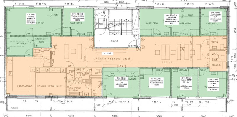
Vuorikatu 34, 2 kerroksessa on, toimistila josta voi vuokrata erikokoisia työhuoneita. Pienimmät huoneet on 10m2, myös 11m2, 12,5 ja 15m2 sekä 23m2 tila löytyy. Yhteisalueeseen sisältyy keittiö, neuvottelutila, wc-tilat, suihkut/pukuhuonetilat. Keittiö ja neuvottelutila kalustetaan. Ilmoituksessa muu alue on jyvityksen pinta-ala tieto.
Työhuoneet on ollut aiemmin vastaanottotiloina ja ne on äänieristettyjä tiloja. Huoneet voisi sopia esim. kauneushoitolaksi tai vastaavalle toimijalle, mm. käsienpesualtaat saa laitettua moneen huoneeseen. Yhtiössä on tehty ikkunaremontti viime vuonna. Iso parveke joka on koko huoneiston levyinen ja sinne kulku on keittiöstä ja viereisestä työtilasta.. Tilasta ei makseta alvia. Soita ja kysy lisää ja käydään katsomassa toimistotiloja.
Hissi

Fine LKV
Olafin Koponen
Toimitilavuokraus, LKV
Näytä puhelinnumero
044 901 3173
olafin@finelkv.fi
Leväsentie 2, 70700 Kuopio
Yliopistonkatu 28, 40100 Jyväskylä
Toimin Fine LKV:lla toimitilavälittäjänä, otathan yhteyttä jos mietit mahdollisia muutostöitä tai esillä olevista toimitiloista ei löydy sitä mitä etsit. Selvitetään muut tila mahdollisuudet. Asiakaslähtöisyys on minulle tärkeää sekä asioiden sujuvuus. Ota yhteyttä, niin autan sinua mielelläni löytämään uusia tiloja.