Vuokrataan tuotantotilat, varastotilat - Järvenpää
Satukukanpolku 5, 04430 Järvenpää #10822154
Moderni 160 m² monitoimitila (varasto) Järvenpäässä Pohjoisväylän varrella
Osoite
Satukukanpolku 5, 04430 Järvenpää
Tilatyyppi
Tuotantotilaa
160 m2
Varastotilaa
160 m2
Yhteensä
160 m2
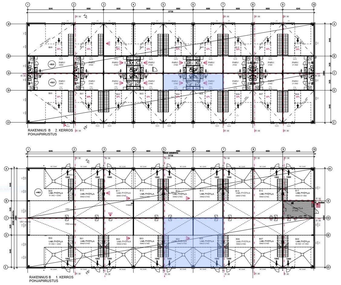
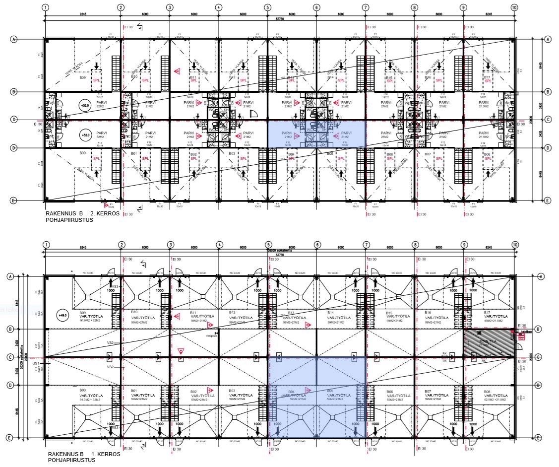
Pohjapiirros
Kiinteistö
160 m² tila koostuu 118 m² varasto-/tuotantotilasta sekä 42 m² parvitilasta, jossa omat sosiaalitilat.
Jokaisen yksikön perusvarusteluihin kuuluu erillinen toimisto- ja taukotila, valaistus, sähköt 16A 3-vaihepistorasialla ja valovirtapistokkeilla, vesipiste, wc-tila suihkuvarauksella, lattiakaivo hiekan- ja öljynerottimella, sähkökäyttöinen nosto-ovi, koneellinen ilmanvaihto lämmöntalteenotolla, lattioissa kestävä Mastertop-pinnoite ja pysäköintipaikat tontilla.
Kiinteistö sijaitsee Järvenpäässä, näkyvällä paikalla aivan Tuusulanväylän tuntumassa.
Tilojen korkeatasoinen varustelu mahdollistaa tilojen sopivuuden monille eri toimialoille ja toimijoille.Kiinteistön tilat on suunniteltu joustaviksi niin, että yksiköitä on helppo muunnella, jakaa ja yhdistellä. Niiden pohja- ja LVI-ratkaisut mahdollistavat muokattavuuden eri toimialojen käyttäjien tarpeisiin, esimerkiksi tilat voivat toimia tuotanto-, varasto- ja näyttelytiloina.
Jokaisen yksikön perusvarusteluihin kuuluu erillinen toimisto- ja taukotila, valaistus, sähköt 16A 3-vaihepistorasialla ja valovirtapistokkeilla, vesipiste, wc-tila suihkuvarauksella, lattiakaivo hiekan- ja öljynerottimella, sähkökäyttöinen nosto-ovi, koneellinen ilmanvaihto lämmöntalteenotolla, lattioissa kestävä Mastertop-pinnoite ja pysäköintipaikat tontilla.
Kiinteistö sijaitsee Järvenpäässä, näkyvällä paikalla aivan Tuusulanväylän tuntumassa.
Tilojen korkeatasoinen varustelu mahdollistaa tilojen sopivuuden monille eri toimialoille ja toimijoille.Kiinteistön tilat on suunniteltu joustaviksi niin, että yksiköitä on helppo muunnella, jakaa ja yhdistellä. Niiden pohja- ja LVI-ratkaisut mahdollistavat muokattavuuden eri toimialojen käyttäjien tarpeisiin, esimerkiksi tilat voivat toimia tuotanto-, varasto- ja näyttelytiloina.
Vapautuu
Heti
Kerros
1
Energiatehokkuusluokka
Ei lain edellyttämää energiatodistusta
Katutasossa
Ota yhteyttä
ScanReal Oy LKV
Opus Business Park
Hitsaajankatu 24
00810 Helsinki
info@scanreal.fi
Puh:
Näytä puhelinnumero
020 730 8830
Sopivat toimitilat yhdellä otolla!
Kartoitamme toimitilatarpeesi ja etsimme yrityksellesi parhaiten sopivat vapaat toimitilat. Koska vuokranantajat maksavat palvelumme, on tämä yrityksellesi veloituksetonta.
OTA YHTEYTTÄ - SOVI NÄYTTÖ!
Kaikki kohteemme eivät ole netissä, kerro tilatarpeesi niin kartoitamme vaihtoehdot.
Palvelumme on tilanhakijalle ilmainen
Pyydä lisätietoa
