Vuokrataan toimistotilat - Helsinki
Köydenpunojankatu 2, Kamppi, 00100 Helsinki #10822141
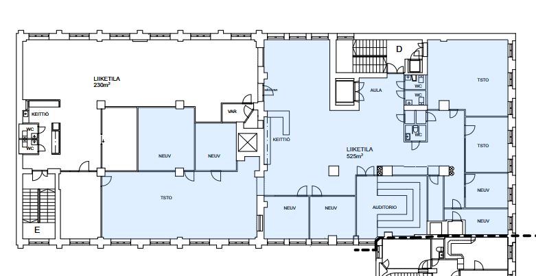
KÖYDENPUNOJANKATU 2 - toimistotila 525m2
Tähän upeaan industrial-tilaan tulvii valoa lukuisista suurista ruutuikkunoista. Hulppea huonekorkeus ja toimiva pohjaratkaisu, mikä mahdollistaa monimuotoisen työskentelyn inspiroivissa puitteissa.
HINTA-/LAATUSUHDE HUIPPULUOKKAA!!!
Kokonaisuudesta löytyy avotilaa, erikokoisia neuvottelutiloja, työhuoneita, longe näyttävällä baarikeittiöllä, amfiteatteri, 2 WC-tilaa ja inva-WC.
Tavarahissi tulee suoraan tilaan. Koneellinen ilmanvaihto. Kaksi sisäänkäyntiä. Esteetön. Mahdollisuus autopaikkoihin.
Lisätiedot ja kohdenäytöt: p. 040 7070 321 / HeikkiKerros: 2
Kampin- ja Ruoholahden Metroasemat: 1 km
CRE PREMISES
Puh. Näytä puhelinnumero 020 7290 710
Vantaankoskentie 14
01670 VANTAA
