Vuokrataan tuotantotilat, varastotilat - Lahti
Lakkilantie 4, 15150 Lahti #10822129
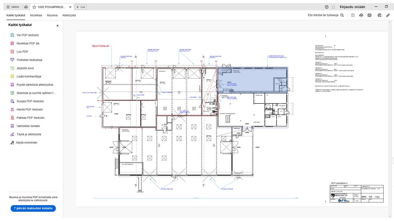
Juuuri vapautunut rrittäin valoisa, siisti nosto-ovellinen näkyvällä paikalla oleva 145 m2 tuotanto/varastotila . Soveltuu hyvin pientuotantoon/varastointiin tai näyttelytilaksi. Tilassa on toimistohuone, keittiö, pieni varasto, lattiakaivo.
Ohessa olevassa koko kiinteistön pohjakuvassa tämän tilan sijainti on merkitty sinisellä täyttövärillä.
Tiedustelut ja esittelyt kohteesta 0400891057/0207290710
Lisää kohteita www.premises.fi
Osoite
Lakkilantie 4, 15150 Lahti
Tilatyyppi
Tuotantotilaa
145 m2
Varastotilaa
145 m2
Yhteensä
145 m2
Ota yhteyttä
CRE PREMISES
Puh. Näytä puhelinnumero 020 7290 710
Vantaankoskentie 14
01670 VANTAA
Pyydä lisätietoa
