Vuokrataan - Helsinki
Valokaari 10, Suutarila, 00750 Helsinki #10822092
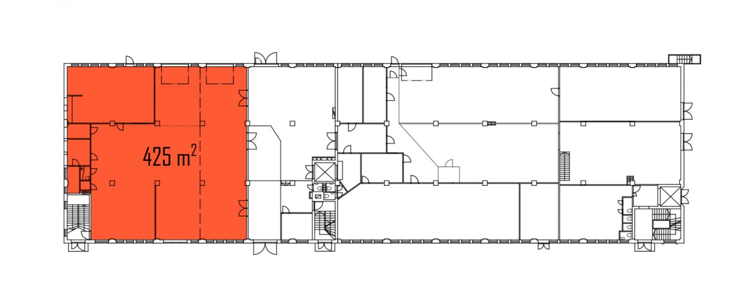
Vuokrataan perinteikkäästä teollisuusmiljööstä läpiajettava katutason tuotanto- tai varastotila 425 m². Tiloissa on toiminut pitkään autopalvelualan yritys, mutta tila ei sovellu autopesulaksi. Tilan korkeus on noin 3 m ja sinne johtaa pihalta kaksi omaa nosto-ovea ja taitto-ovi. Mainio keittiö. Aulassa hauska ruutulattia, sopii esim. asiakkaiden vastaanottamiseen. Pohjapiirrokseen katkoviivalla merkitty kevyt väliseinä voidaan purkaa tarvittaessa.
Sijainti on tunnettu ja hyvä. Pääkaupunkiseudun selkärangalle, Kehä 3:lle, on alle kilometri, Helsinki-Vantaan lentoasemalle alle 10 kilometriä ja Vuosaaren satamaan vain hieman reilu 10 km.
Kysy lisää: jouko.raitanen@rhg.fi/0504695444
RHG Real Estate
Hämeenkatu 2 B20, 20500 Turku
Näytä puhelinnumero
020 734 4020
Jouko Raitanen
Näytä puhelinnumero
050 469 5444
