Vuokrataan toimistotilat - Espoo
Keilalahdentie 2-4, Keilaniemi, 02150 Espoo #10822048
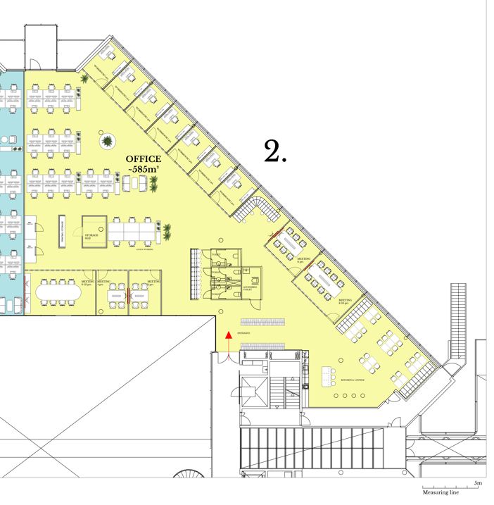
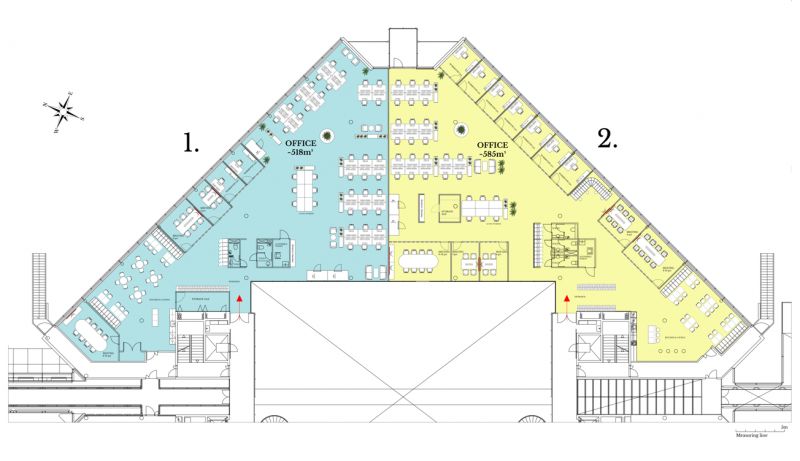
Vuokrattavana 2. kerroksen täysin uudistettua, modernia, valoisaa toimistotilaa.
Osoite
Keilalahdentie 2-4, 02150 Espoo
Tilatyyppi
Toimistotilaa
693 m2
Kiinteistö
Vuokrattavana 2. kerroksen täysin uudistettua, modernia, valoisaa toimistotilaa. Tilassa on avotila, neuvotteluhuoneet, oma keittiö ja sosiaalitilat. Tilat on mahdollista vuokrata myös täysin kalustettuna.
Sijainti
Keilaniemi, Espoo
Pysäköinti
Autoilijoille on runsaasti pysäköintitilaa oma parkkitalossa.
Palvelut
-Aulapalvelut
-Lounasravintola
-Auditorio ja kokouspalvelut
-Kuntosali
-Saunaosasto
-Lounasravintola
-Auditorio ja kokouspalvelut
-Kuntosali
-Saunaosasto
Kulkuyhteydet
-Metro
-Raitiovaunu
-Bussi
-Oma auto
-Raitiovaunu
-Bussi
-Oma auto
Vapautuu
Heti
Kerros
2
Energiatehokkuusluokka
Ei lain edellyttämää energiatodistusta
Näkyvällä paikalla
Hissi
Ota yhteyttä
REALIUM OY LKV
Tammasaarenkatu 1, 00180 Helsinki
Vaihde:
Näytä puhelinnumero
010 326 346
Tuomo Mäkelä
tuomo.makela@realium.fi
p.
Näytä puhelinnumero
044 050 1158
Joel Keto
joel.keto@realium.fi
p.
Näytä puhelinnumero
045 317 0330
KAIKKI TILAVAIHTOEHDOT KERRALLA!
SOITA - MEILAA JA TILAA NÄYTTÖ!
Ilmainen palvelu tilanhakijoille.
Kartoitamme parhaat tilavaihtoehdot.
Kaikki kohteet eivät ole netissä.
Pyydä lisätietoa
