Vuokrataan toimistotilat - Helsinki
Sörnäistenkatu 1, Kalasatama, 00580 Helsinki #10822026
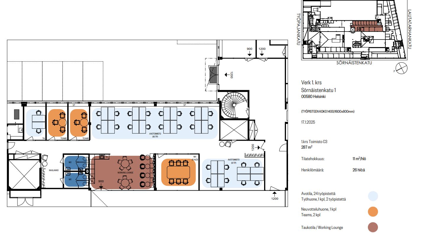
Vuokrattavana 287 m2 kokoinen tyylikäs tila, joka on remontoitu New York henkisesti valmiiksi korkean laatutason mukaan. Tilan ratkaisut on pyritty tekemään vastuullisesti ja vastaamaan tämänpäivän työelämän tarpeita.
Osoite
Sörnäistenkatu 1, 00580 Helsinki
Tilatyyppi
Toimistotilaa
287 m2
Pohjapiirros
Kiinteistö
Vuokralaisella on käytettävissään tyylikäs Lounge- ja keittiöalue, johon on oma sisäänkäynti kohteen atriumtyylisistä yleisistätiloista. Lisäksi käytössä on myös toinen sisäänkäynti. Tilaratkaisut toteutetaan neuvotteluhuoneen, sekä 3 toimisto/vetäytymistilan yhdistelmänä. Käytössä on myös avotoimistotilaa yhteensä 24 henkilölle. Tilan näkymät avautuvat kohteen atriumpihalle sekä sisäpihan puolelle.
Mikäli tila meinaa loppua kesken pystyy tätä ratkaisua laajentamaan kätevästi vuokrattavien neuvottelutilojen, yhteisenaularatkaisun ja pool pientoimistojen avulla isompiinkin tarpeisiin pitäen samalla kustannukset ja neliöt kurissa.
Mikäli tila meinaa loppua kesken pystyy tätä ratkaisua laajentamaan kätevästi vuokrattavien neuvottelutilojen, yhteisenaularatkaisun ja pool pientoimistojen avulla isompiinkin tarpeisiin pitäen samalla kustannukset ja neliöt kurissa.
Palvelut
Kiinteistön läheisyydestä löytyy kattavat Teurastamon- ja Kalasatamanalueen palvelut mukaanlukien. Kauppakeskus Redin palvelut erikoisliikkeineen ja päivittäistavarakauppoineen.
Kulkuyhteydet
Kohteeseen on helppo saapua julkisilla liikennevälineillä bussipysäkki sijaitsee 200 metrin päässä kohteesta. Metro- ja Raitiovaunupysäkit ovat myös vain 400 metrin kävelymatkan päässä kohteesta. Omalla autolla saapuville kohde on helposti saavutettavissa useasta eri suunnasta. Auton pysäköi myös sujuvasti kohteen parkkihalliin työpäivän ajaksi. Polkupyöräilijöille on käytettävissä alueen sujuvat pyöräilyreitit ja lisäksi pyörät säilyvät kätevästi kohteen pyöräparkissa työpäivän ajan.
Vapautuu
Heti
Kerros
1
Ota yhteyttä
MAP Tilat Oy
Mika Hermaala
mika.hermaala@maptilat.fi
Näytä puhelinnumero
040 192 1313
Energiakuja 3, 00180 Helsinki
Maarit Helander
maarit.helander@maptilat.fi
Näytä puhelinnumero
044 593 8661
Pyydä lisätietoa
