Vuokrataan toimistotilat - Helsinki
Yrjönkatu 23 B, Kamppi, 00100 Helsinki #10821920
Upea toimisto, jossa oma saunaosasto ja kattoterassi.
Osoite
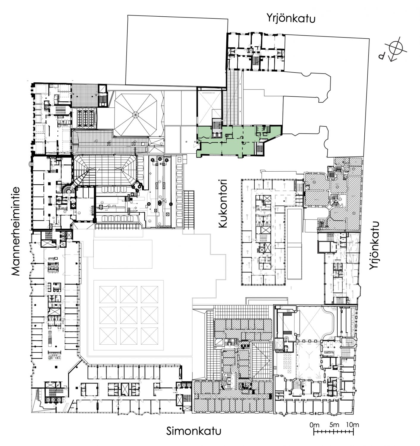
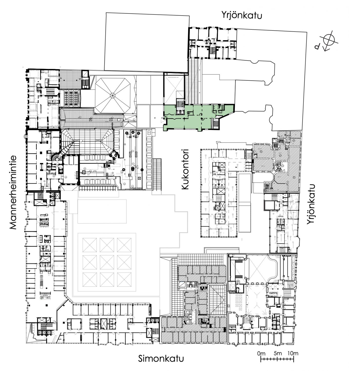
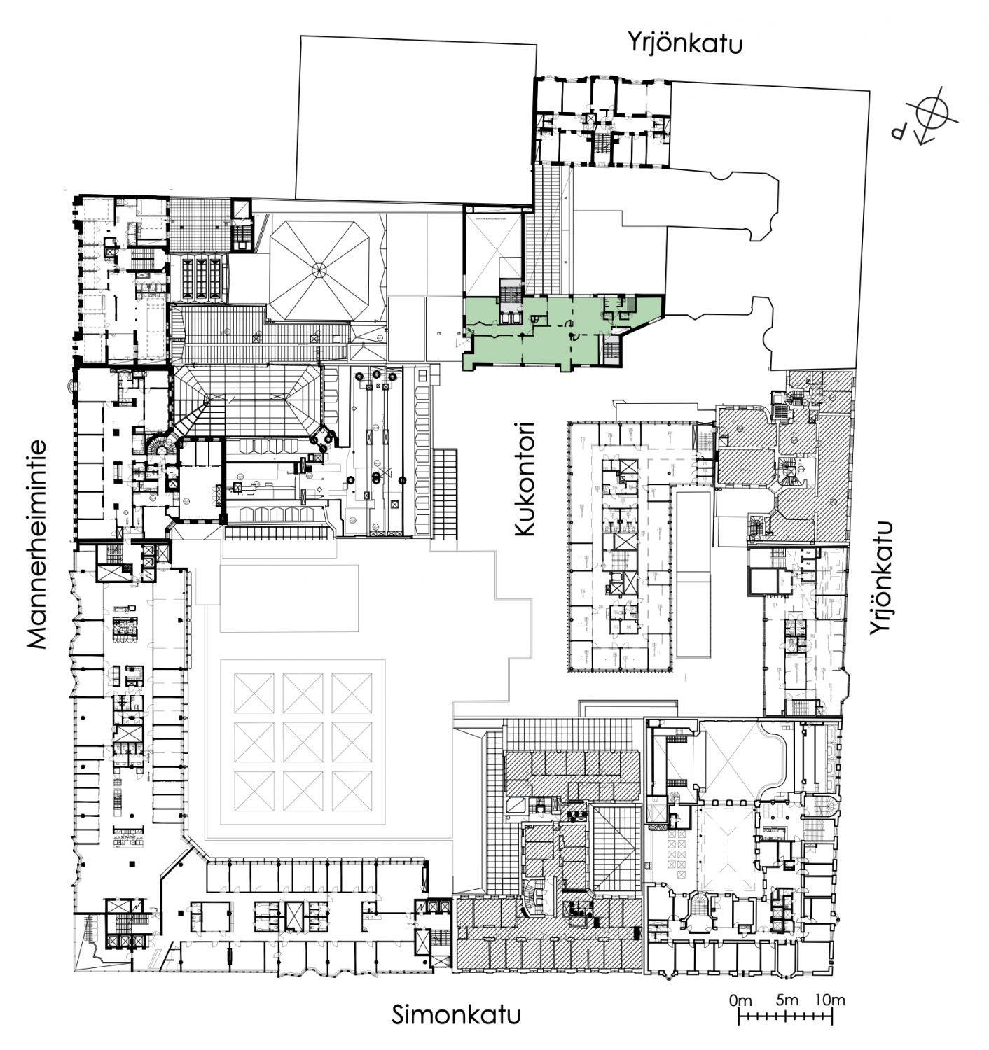
Yrjönkatu 23 B, 00100 Helsinki
Tilatyyppi
Toimistotilaa
295 m2
Pohjapiirros
Kiinteistö
Helsingin keskeisimmällä paikalla Forum Kukontorilla sijaitsee moderni toimistokiinteistö.
Forum-korttelin ainutlaatuinen kokonaisuus muodostuu kuudesta kiinteistöstä. Helsingin keskeisimmällä paikalla sijaitsevissa rakennuksissa on persoonallisia yksityiskohtia ja pitkän kulttuuriperinteen tuomaa arvokkuutta.
Kaikille Forum-korttelin kiinteistöille on myönnetty BREEAM In-Use Excellent -tason ympäristösertifikaatti. BREEAM (Building Research Establishment Environmental Assessment Method) on kansainvälinen rakennusten ympäristöluokitusjärjestelmä, joka tähtää rakennuksen käytön ympäristövaikutusten vähentämiseen sekä terveellisempien työympäristöjen kehittämiseen.
Forum-kortteli on myös täysin hiilineutraali käytön aikaisen energiankulutuksen osalta.
Forum-korttelin ainutlaatuinen kokonaisuus muodostuu kuudesta kiinteistöstä. Helsingin keskeisimmällä paikalla sijaitsevissa rakennuksissa on persoonallisia yksityiskohtia ja pitkän kulttuuriperinteen tuomaa arvokkuutta.
Kaikille Forum-korttelin kiinteistöille on myönnetty BREEAM In-Use Excellent -tason ympäristösertifikaatti. BREEAM (Building Research Establishment Environmental Assessment Method) on kansainvälinen rakennusten ympäristöluokitusjärjestelmä, joka tähtää rakennuksen käytön ympäristövaikutusten vähentämiseen sekä terveellisempien työympäristöjen kehittämiseen.
Forum-kortteli on myös täysin hiilineutraali käytön aikaisen energiankulutuksen osalta.
Sijainti
Kiinteistö sijaitsee aivan Helsingin ydinkeskustassa. Bussit, raitiovaunut, junat ja metro ovat välittömässä läheisyydessä tai muutaman minuutin kävelymatkan päässä. Forum-kortteli on Helsingin vilkkaimpia läpikulkupaikkoja. Sieltä on kulkutunneliyhteys muualle keskustaan, kuten päärautatieasemalle ja Kampin liikenneterminaaliin.
Pysäköinti
Forum-P
Palvelut
Korttelissa on kattava valikoima kaupanalan toimijoita sekä palveluita terveyden- ja kauneudenhoidosta kahviloihin ja ravintoloihin. Kaikki Kauppakeskus Forumin ja ydinkeskustan palvelut ovat lähellä.
Kulkuyhteydet
Lähimmälle bussipysäkille 250 m
Lähimmälle juna-asemalle 500 m
Lähimmälle metroasemalle 400 m
Lähimmälle raitiovaunupysäkille 150 m
Lentokentälle 35 min
Lähimmälle juna-asemalle 500 m
Lähimmälle metroasemalle 400 m
Lähimmälle raitiovaunupysäkille 150 m
Lentokentälle 35 min
Vapautuu
Kysy
Rakennusvuosi
1980
Kerros
6
Energiatehokkuusluokka
B2018 (liiketilat) C2018 (toimistot)
Ympäristöluokitus
BREEAM In-Use Excellent,GRESB Global Sector Leader 2025
Ota yhteyttä
Sponda Oy
Yrjönkatu 29C, 00100 Helsinki
Näytä puhelinnumero
020 43131
Harri Autio
Director, Leasing
Näytä puhelinnumero
+358 40 846 6560
Heidi Svartsjö
Leasing Manager, Retail
Näytä puhelinnumero
+35850 012 1183
Sponda Oy
https://www.sponda.fiPyydä lisätietoa
