Vuokrataan toimistotilat - Helsinki
Herttoniemen Tiili, Insinöörinkatu 12, Herttoniemi, 00880 Helsinki #10821896
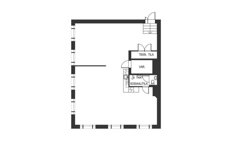
Siisti modernisoitu 121 m² toimisto Herttoniemessä
Osoite
Insinöörinkatu 12, 00880 Helsinki
Tilatyyppi
Toimistotilaa
121 m2
Pohjapiirros
Kiinteistö
Herttoniemenen kehittyvän uudisasuntokorttelin keskiössä 1940- luvulla rakennettu ja julkisivuiltaan suojeltu entinen tehdasrakennus, joka toimii muistona alueen teollisuushistoriasta.
2,5 kerroksen uusi, mutta talon historiaa henkivä monipuolinen toimistohuoneisto keittiöineen ja sosiaalitiloineen.
Kyseessä on 1947 valmistunut suojeltu entinen tehdasrakennus. Rakennuksessa on kolme kerrosta + ullakko. Varsinaisten kerrosten pinatala on n. 900 m² / kerros. Kiinteistöön on tehty peruskorjaus, jonka yhteydessä on uusittu kiinteistön talotekniikka täydellisesti.
2,5 kerroksen uusi, mutta talon historiaa henkivä monipuolinen toimistohuoneisto keittiöineen ja sosiaalitiloineen.
Kyseessä on 1947 valmistunut suojeltu entinen tehdasrakennus. Rakennuksessa on kolme kerrosta + ullakko. Varsinaisten kerrosten pinatala on n. 900 m² / kerros. Kiinteistöön on tehty peruskorjaus, jonka yhteydessä on uusittu kiinteistön talotekniikka täydellisesti.
Vapautuu
Heti
Rakennusvuosi
1947
Saneerausvuosi
2024
Kerros
2,5 / 3
Energiatehokkuusluokka
Ei lain edellyttämää energiatodistusta
Hissi
Ota yhteyttä
ScanReal Oy LKV
Opus Business Park
Hitsaajankatu 24
00810 Helsinki
info@scanreal.fi
Puh:
Näytä puhelinnumero
020 730 8830
Sopivat toimitilat yhdellä otolla!
Kartoitamme toimitilatarpeesi ja etsimme yrityksellesi parhaiten sopivat vapaat toimitilat. Koska vuokranantajat maksavat palvelumme, on tämä yrityksellesi veloituksetonta.
OTA YHTEYTTÄ - SOVI NÄYTTÖ!
Kaikki kohteemme eivät ole netissä, kerro tilatarpeesi niin kartoitamme vaihtoehdot.
Palvelumme on tilanhakijalle ilmainen
Pyydä lisätietoa
