Myydään liiketilat, näyttelytilat, tuotantotilat, varastotilat - Pirkkala
Jasperintie 270 A, Vesala, 33960 Pirkkala #10821843
Myydään toimitilaa keväällä 2018 valmistununeesta monitoimikohteesta. Kiinteistö koostuu n. 95 m2 moduleista (75 m2 + parvi 20 m2). Parvella wc ja suihku.
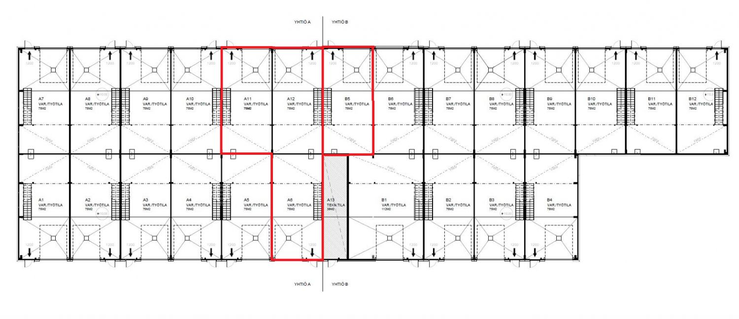
Myynnissä tällä hetkellä A-rakennuksesta moduulit A6, A11 ja A12, jotka yhdistetty yhdeksi 285 m2 tilaksi.
Tiloissa kiinnitetty lisäksi huomiota energiatehokkuuteen. Kiinteistön pohja- ja LVI-ratkaisut mahdollistavat tilojen muunneltavuuden joustavasti käyttäjän tarpeiden mukaan tuotanto-, varasto-, toimisto- ja näyttelytiloiksi. Sijainnin ansiosta helppoa logistiikkaa.
Tilojen perusvarustukseen kuuluu 8 valovirta pistettä, 16A voimavirta, lattiakaivo (hiekan- ja öljynerotin), vesipiste, iso nosto-ovi, wc- ja suihkutilat parvella sekä koneellinen ilmanvaihto. Lisäksi tiloihin on mahdollista saada jäähdytys, nosto-oven kaukosäädin, voimavirta 32A/64A sekä kohdepoistot.
Kaikissa tiloissa koneellinen ilmanvaihto lämmöntalteenotolla ja maalämpö.
Lisätietoa: 045 261 6555/Mika tai 020 7290710. Lisää tiloja: www.premises.fi
Kohteella ei ole lain edellyttämää energiatodistusta tai energialuokka ei tiedossa.Kerros: katu
CRE PREMISES
Puh. Näytä puhelinnumero 020 7290 710
Vantaankoskentie 14
01670 VANTAA
