Myydään liiketilat - Helsinki
Soidintie 8, Malmi, 00700 Helsinki #10821753
Vuokrattu liiketila Ala-Malmilla - sijoituskohde!
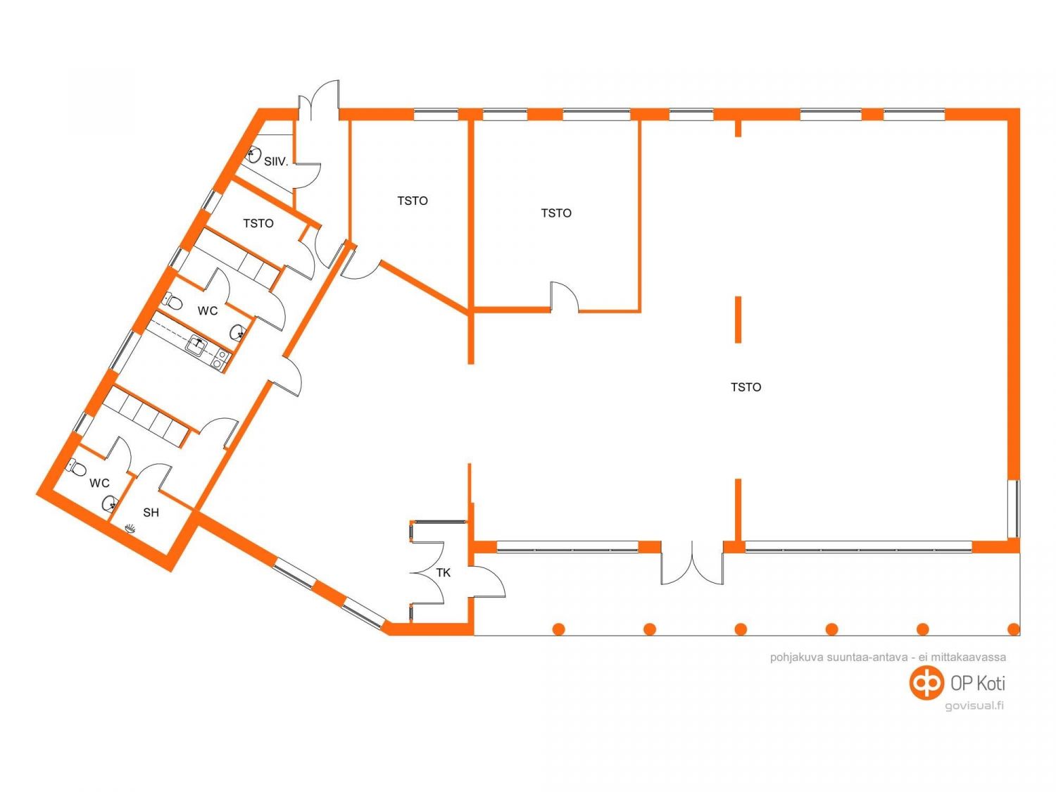
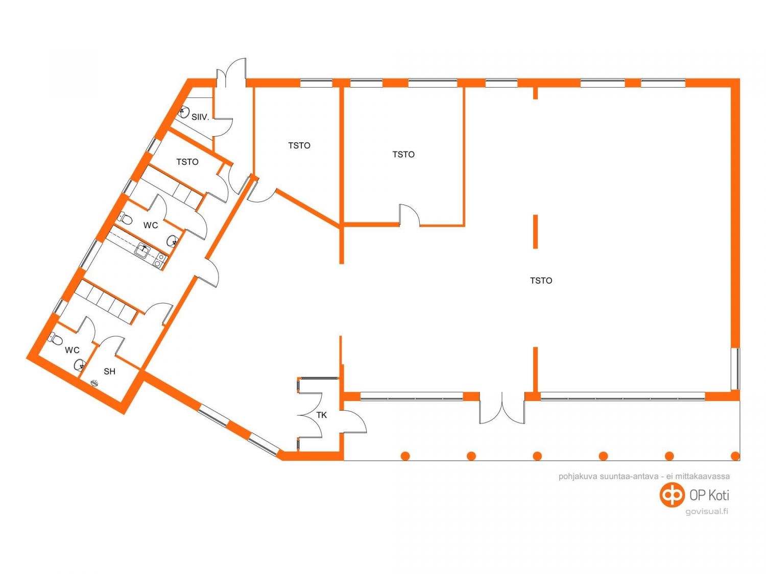
Tarjolla katutason liikehuoneisto erinomaisella sijainnilla Ala-Malmilla, vain kivenheiton päässä Malmin juna-asemasta ja Malmin Nova -kauppakeskuksesta.
Tämä avara ja valoisa liiketila tarjoaa suuret näyteikkunat kadulle, sekä kaksi sisäänkäyntiä.
Liiketila myydään vuokrattuna, joten se tarjoaa heti valmista tuottoa sijoittajalle.
Liiketilojan vastikekerroin: 1
Taloyhtiö valmistunut 1986, ja siinä on tehty merkittäviä remontteja,
kuten parvekkeet, salaojat, vesikatto ja kylpyhuoneet.
Kauppahinnan lisäksi ostaja vastaa huoneistokohtaisista lainaosuuksista taloyhtiössä tehdyistä remonteista.
Esitä rohkeasti tarjous!
Lisätietoja ja esittelyt:
Mika Nyman
0400347758
mika.nyman@op.fi
Osakeryhmätunnus: OHPQGFXDL7S9KH29
Osoite: Soidintie 8 A 31
Osakkeet: 10001-10986 / 986 kpl.
Pinta-ala 257 m².
Huoneisto myydään vuokrattuna. Vuokra 2.587,48 €/kk.
Hoitovastike 1788,72 €/kk (6,96 €/m²). Vastikekerroin 1,2.
Vesimaksu 38 €/kk (liiketilasta laskutetaan 2 x vesimaksu).
Pääomavastikkeet yht. 1.377,52 €/kk.
Huoneistokohtaiset velkaosuudet yht. 49.087,67 € / 28.2.2025.
POV 1, parveke. Vo 3.318,32 €, josta pääomavastike 244,15 € /kk (0,95€ /m²)
POV 2, kph. Vo 9.512,93 €, josta pääomavastike € /kk 179,90 € /kk (0,70€ /m²)
POV 3, salaoja Vo 4.035,89 €, josta pääomavastike 385,50 €/kk (1,50 € /m²)
POV 4. vesikatto Vo 17.997,26 €, josta pääomavastike 359,80 € /kk (1,40 € /m²)
POV 5, parveke 2024. Vo 18.293,67 €, josta pääomavastike 208,17 € /kk (0,81 € /m²)
Viemärisukitus 2025, kustannusarvio tälle huoneistolle, velkaosuuden kertasuoritus 15.171,64 € (0,664 € /m²) tai lyhennys pääomavastikeella 170,68 € /kk.
Asunto Oy Ormusmetsän-Salpa
Valmistumisvuosi 1986.
Kerrosala 3073 m².
Porraskäytäviä 5 kpl.
Asuntoja 30 kpl, pinta-ala 2084 m². Osakelukumäärä 10.000 kpl.
Liikehuoneistot 2 kpl. pinta-ala 287,5 m². Osakelukumäärä 1136 kpl.
Rakennusmateriaali betoni.
Kaukolämpö.
Kaapeli-TV, Telia taloyhtiönetti 100 M.
Vuokratontti 4095 m². Vuokranantaja Helsingin kaupunki. Vuokra 24.995,22 € /vuosi (2024).
Vuokra-aika 2045 asti.
Yhtiöllä rakennusluvan ehtona rakentaa 6 kpl. autopaikkoja. Lykkäystä myönnetty 20.6.2027 saakka.
Yhtiöllä tililimiitti 70.000 €, käytetty 52.589,03 € / 10.3.2025.
Yhtiön osakeluettelo on siirretty sähköiseen osakehuoneistojärjestelmään.
Yhtiössä ei ole tehty asbestikartoitusta.
Osakas vastaa mahd. ilmalämpöpumpusta huoneistossa/liiketilassa.
Poikkeavasta kunnossapitovastuusta yhtiöjärjestyksen 7§
2021 Vesikaton uusiminen
2020 Parkkipaikan valaistuksen uusiminen. Ilmanvaihdon nuohous ja säätö
2018 Viemärien huuhtelu
2017 Parvekkeiden C15, D21 ja D23 uusiminen
2016 Jätekatoksen lattian uusiminen. Salaojien ja sadevesiviemärien uusiminen, piharemontti.
E-rapun puuportaan uusiminen.
2015 Pekanraitin puoleisten ikkunoiden huoltomaalaus. Huoneistojen 1, 2 ja 3 ikkunoiden uusiminen, Väestösuojan painekoe ja välineiden uusiminen. Tonttiviemärin uusiminen. Parkkipaikan asfaltointi ja autopaikkojen sähköistys. Julkisivuelementtien saumaus
2014 Julkisivun kuntotutkimus. Tontteviemärin kuvaus. Salaojien kuntotutkimus.
2012 Pelastussuunnitelma. Kiinteistön kuntoarvio. Lämmönvaihtimen uusiminen.
2011 Kattoterassin kokonaisvaltainen korjaus.
2010 Ilmanvaihtojärjestelmän korjauksia.
2009 KPH-korjauksia 28 kpl.
2006 Parvekkeiden ja julkisivujen korjauksia.
2005 Raja-aidan uusiminen.
YK päätös 29.4.24 sukittaa hajuhaittoja vuotavat viemärit.
Viemäreiden sukitus tulossa 2025
Hallituksen kunnossapitotarveselvityksen mukaan toimenpide 2024-2029:
2024 Parkkipaikan aidan uusiminen
2025 Sähköautojen latauspisteiden hankkiminen. Jätevesiviemärien saneeraus. Väestösuojan painekoe ja laitteiden huolto/uusiminen.
2026 Elementtisaumojen uusiminen
2027 Ikkunoiden uusiminen. ulko-ovien uusiminen.
2029 Aurinkosähköjärjestelmän hankkiminen
Jaettavissa
OP Koti Uusimaa Oy LKV
Toimitilapalvelut
Arkadiankatu 23
00100 HELSINKI
Mika Nyman
Toimitilavälittäjä, Kiinteistöarvioija, LKV, YKV, AKA/KHK
Näytä puhelinnumero
0400 347 758
