Vuokrataan toimistotilat - Helsinki
Salomonkatu 17, Helsinki, Suomi, Kamppi, 00100 Helsinki #10821698
Perinteikäs Autotalo tarjoaa hyväkuntoista ja nykyaikaista toimitilaa sekä ravintolaliiketilaa. Kiinteistössä on 2015 valmistunut mittava perusparannushanke.
Helsingin Autotalo on saanut Breeam In-Use -ympäristösertifikaatin tasolla Very Good
Osoite
Salomonkatu 17, Helsinki, Suomi, 00100 Helsinki
Tilatyyppi
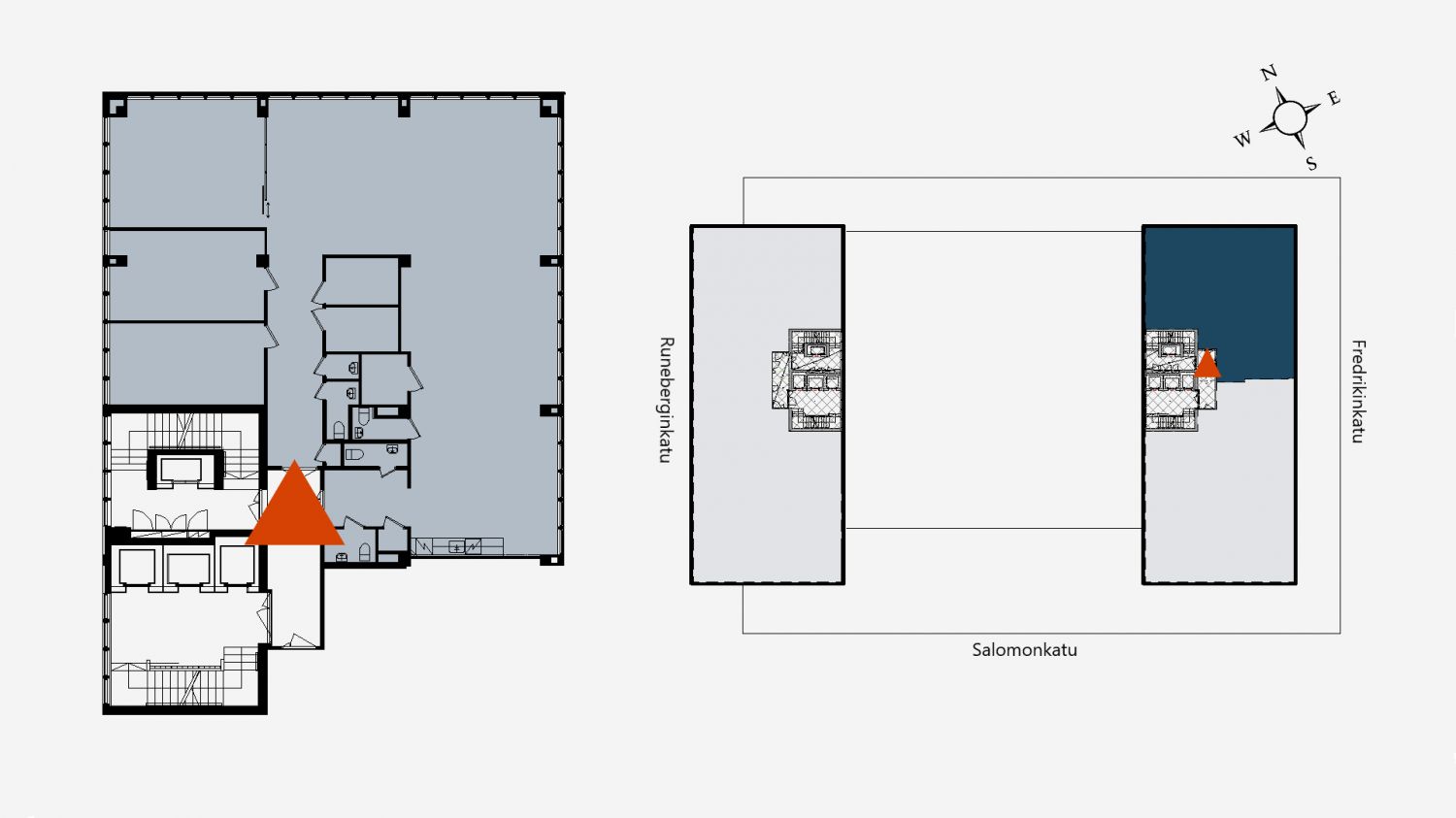
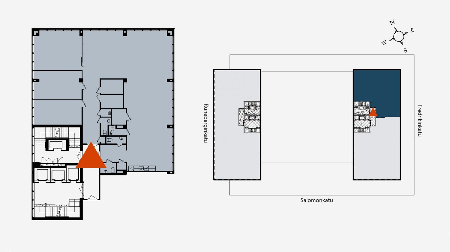
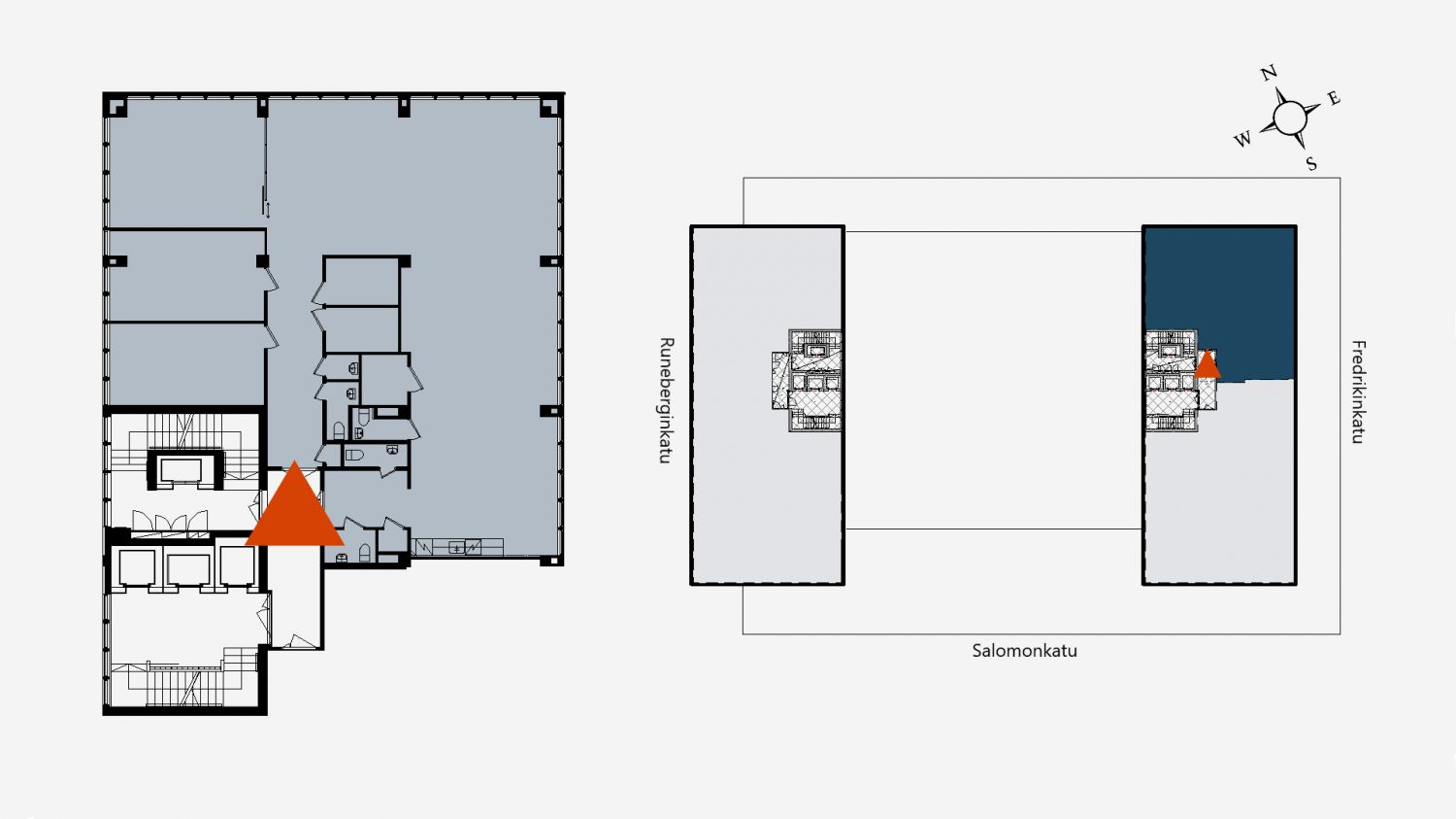
Toimistotilaa
232 m2
Kiinteistö
Helsingin Autotalo - Salomonkatu 17
Ympäristö
Metroasema: 100 m, Raitiovaunupysäkki: 200 m, Juna-asema: 800 m, Bussipysäkki: alle 100 m, Lentoasema: 19,4 km
Pysäköinti
Saatavilla
Kulkuyhteydet
Valokuitu
Muuta
Upea monitoimitila 9. kerroksessa mahtavilla näkymillä, sopimuksen mukaisesti, muuttovalmis.
Tila on yhdistettävissä viereiseen tilaan jolloin yhtenäinen tilakoko on noin 540m2.
Perinteikäs Autotalo tarjoaa hyväkuntoista ja nykyaikaista toimitilaa sekä ravintolaliiketilaa. Kiinteistössä on 2015 valmistunut mittava perusparannushanke.
Helsingin Autotalo on saanut Breeam In-Use -ympäristösertifikaatin tasolla Very Good
Tila on yhdistettävissä viereiseen tilaan jolloin yhtenäinen tilakoko on noin 540m2.
Perinteikäs Autotalo tarjoaa hyväkuntoista ja nykyaikaista toimitilaa sekä ravintolaliiketilaa. Kiinteistössä on 2015 valmistunut mittava perusparannushanke.
Helsingin Autotalo on saanut Breeam In-Use -ympäristösertifikaatin tasolla Very Good
Vapautuu
Kysy
Rakennusvuosi
1958
Saneerausvuosi
2015
Kerros
9
Energiatehokkuusluokka
E2013
Ota yhteyttä
LähiTapiola Kiinteistövarainhoito Oy
Heli Jalonen
Vuokrauspäällikkö
Näytä puhelinnumero
040 823 3490
Pyydä lisätietoa
