Vuokrataan liiketilat - Espoo
Espoonlahdenkatu 8, Espoonlahti, 02320 Espoo #10821693
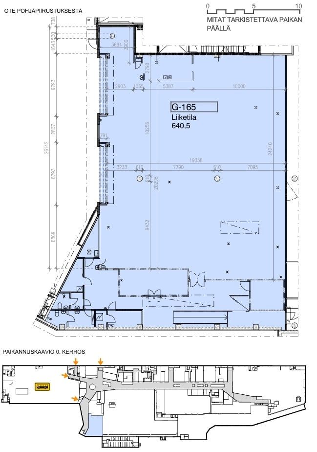
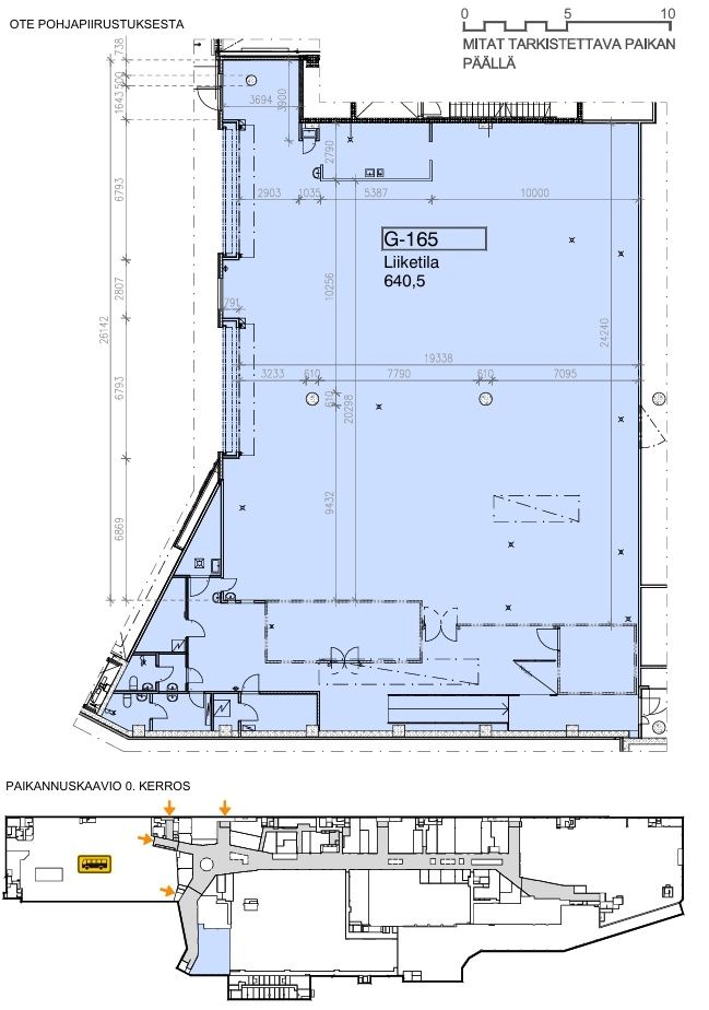
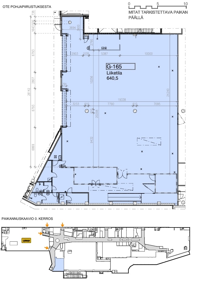
Nyt vuokrattavissa liiketilaa uudesta Lippulaivasta! Siistit ja hyväkuntoiset tilat koostuvat pääosin avotilasta, johon on liitetty keittiö, kylmähuone sekä suora yhteys lastauslaituriin. Tila on aiemmin toiminut ruokakauppana, mutta se on helposti muokattavissa myös muihin käyttötarkoituksiin.
Uusi ja urbaani Lippulaiva on Suur-Espoonlahden alueen vahva lähipalveluiden keskus. Lippulaiva on todellinen liikenteen solmukohta: kauppakeskukseen pääsee suoraan metrolla ja linja-autolla. Kauppakeskus sijaitsee vauraalla ja nopeasti kasvavalla Espoonlahden alueella, jossa asukasmäärän kasvu ja tihentyminen on vauhdikkainta koko pääkaupunkiseudulla. Vaikutusalueella asuu suuri määrä ihmisiä: 20 minuutin kävelyetäisyydellä n. 18 000 ihmistä ja 10 minuutin ajomatkan päässä yli 105 000 ihmistä.
Me Croisettella autamme teitä löytämään teille parhaat tilat! Olemme puolueettomia asiantuntijoita ja tunnemme toimitilamarkkinat, talot sekä tilat vankalla kokemuksella. Meillä on välityksessä kaikki toimitilat ja tiedämme niiden alustavat vuokratasot.
Tehtävämme on tehdä toimitilahaustanne onnistunut ja helppo. Saamme palkkiomme kiinteistönomistajalta, joten sinulle palvelumme on täysin maksuton.
Hissi
Croisette Real Estate Partner
Erottajankatu 5 A 6, 00130 Helsinki
Näytä puhelinnumero
+358 400 585 857
Croisette Vuokraus
Näytä puhelinnumero
+358400585857
