Myydään toimistotilat, liiketilat, työtilat - Porvoo
Lundinkatu 10, 06100 Porvoo #10821679
Hieno liiketila Porvoon keskustassa myynnissä! Velaton myyntihinta 299'800 €
Osoite
Lundinkatu 10, 06100 Porvoo
Tilatyyppi
Toimistotilaa
237 m2
Liiketilaa
237 m2
Työtilaa
237 m2
Yhteensä
237 m2
Pohjapiirros
Virtuaaliesittely
Myyntihinta
299'800 € (velaton)
Muuta
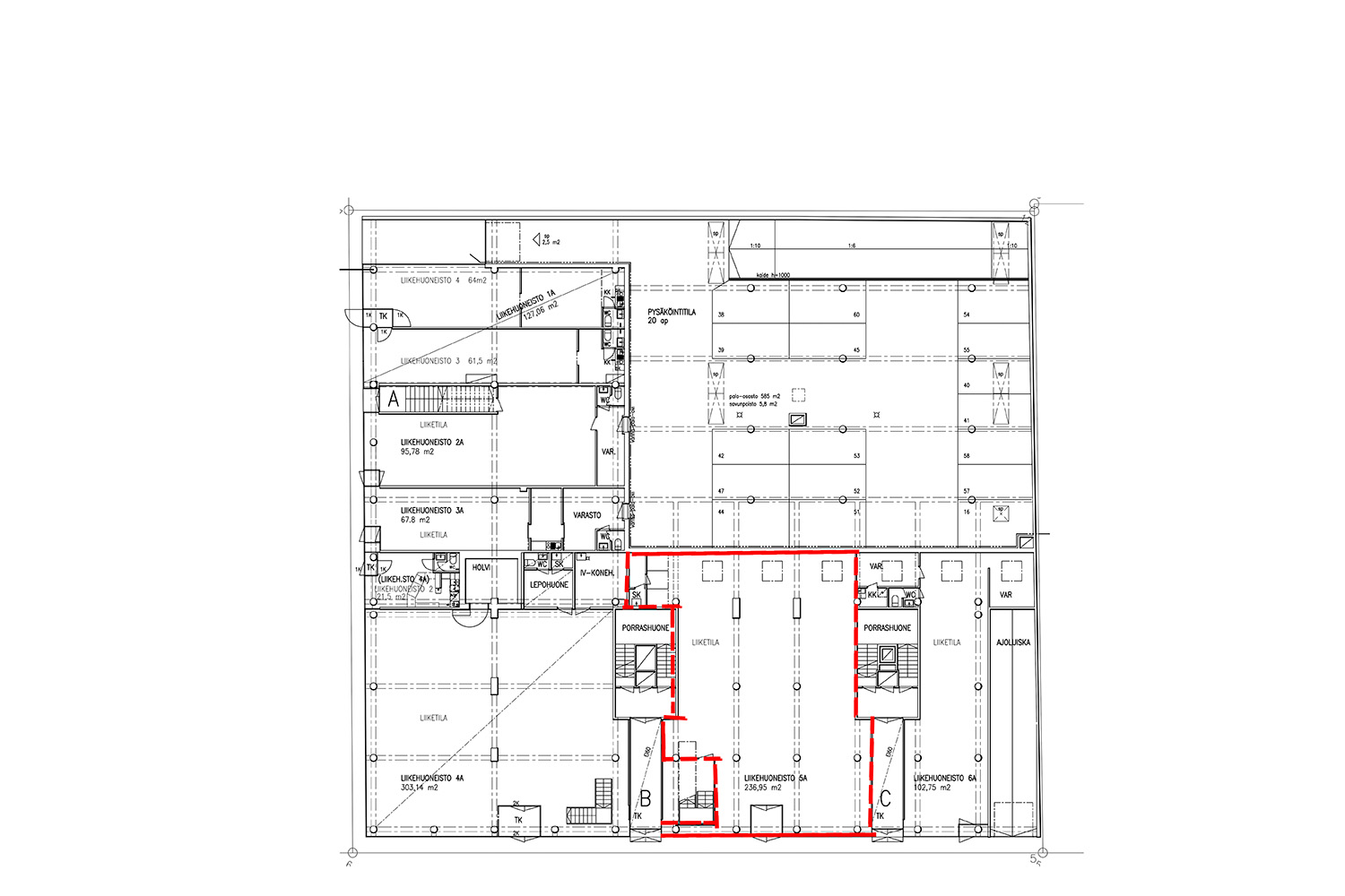
Myydään hyväkuntoinen 236,95 m² liiketila Porvoon torin kupeesta. Tilassa on isot näyteikkunat suoraan Porvoon torille, taatusti hyvä näkyvyys!
Liiketila on jaettuna kahdelle käyttäjälle ja molemmat tilat ovat vuokrattuja. Toinen tiloista on on T- mallinen tila ja sen takaosassa on siisti wc ja siivouskomero. Isommassa tilassa on pääosin avonaista tilaa ja takaosassa keittiö-/taukotila sekä wc. Molemmissa on toistaiseksi voimassa oleva sopimus ja ne vapautuvat sopimuksen mukaan.
Huoneisto toimii hyvin esim. toimistona, asiakasvastaanottotilana, erikoistavarakauppana, myymälänä tai vaateliikkeenä. Tila ei kuitenkaan sovellu ravintolaksi tai kahvilaksi.
Huoneistoon on yksi sisäänkäynti (tuulikaappi), joka on jaettu niin, että molemmille puolille huoneistoa on oma sisäänkäynti tuulikaapista.
Lähellä myös muita tilavaihtoehtoja myynnissä – kysy tästä lisää!
Asiakkaille ja henkilökunnalle paikoitustilaa (maksullinen) löytyy hyvin Piispankadun ja Lundinkadun varresta sekä lähellä on vuokrattavia parkkihallipaikkoja.
Hyväkuntoinen liiketila hyvällä sijainnilla Porvoon keskustassa!
Kohdetiedot
Sijainti
Katuosoite: Lundinkatu 10 (liiketila 5 A), 06100 Porvoo
Kaupunginosa: Keskusta
Ympäristö: Porvoon torialue
Rakennus/huoneisto
Pinta-ala: 236,95 m²
Rakennustyyppi: Kerrostalo
Rakennusvuosi: 1966
Energiatodistus: C2018
Huoneistoselitelmä: Liiketila
Kunto, varusteet ja palvelut: Hyväkuntoinen tila. Minikeittiö, wc ja siivouskomero. Porvoon kaikki palvelut lähellä.
Pysäköinti: Kadulla ja lähellä vuokrattavia parkkihallipaikkoja
Vapautuminen: Myydään vuokrattuna
Myyntihinta ja kulut
Myyntihinta: 133’578,26 €
Velkaosuus: 166’221,74 €
Velaton myyntihinta: 299’800 €
Vastikevelka: 28’333,08 €
Hoitovastike: 1’289,30 €/kk
Alv-vastike: 61,03 €/kk
Rahoitusvastike: 1447,14 €/kk
Sähkömaksu: Oma sähkösopimus
Lämmitys: Sisältyy vastikkeeseen
Huoneisto on otettu taloyhtiön hallintaan. Huoneiston uudella omistajalla on mahdollisuus saada hallintaan ottopäätös puretuksi, mikäli ostaja suorittaa huoneistoon kohdistuvat maksamattomat vastikkeet ja hallintaan otosta aiheutuneet kulut (eli saldo).
Liiketila on jaettuna kahdelle käyttäjälle ja molemmat tilat ovat vuokrattuja. Toinen tiloista on on T- mallinen tila ja sen takaosassa on siisti wc ja siivouskomero. Isommassa tilassa on pääosin avonaista tilaa ja takaosassa keittiö-/taukotila sekä wc. Molemmissa on toistaiseksi voimassa oleva sopimus ja ne vapautuvat sopimuksen mukaan.
Huoneisto toimii hyvin esim. toimistona, asiakasvastaanottotilana, erikoistavarakauppana, myymälänä tai vaateliikkeenä. Tila ei kuitenkaan sovellu ravintolaksi tai kahvilaksi.
Huoneistoon on yksi sisäänkäynti (tuulikaappi), joka on jaettu niin, että molemmille puolille huoneistoa on oma sisäänkäynti tuulikaapista.
Lähellä myös muita tilavaihtoehtoja myynnissä – kysy tästä lisää!
Asiakkaille ja henkilökunnalle paikoitustilaa (maksullinen) löytyy hyvin Piispankadun ja Lundinkadun varresta sekä lähellä on vuokrattavia parkkihallipaikkoja.
Hyväkuntoinen liiketila hyvällä sijainnilla Porvoon keskustassa!
Kohdetiedot
Sijainti
Katuosoite: Lundinkatu 10 (liiketila 5 A), 06100 Porvoo
Kaupunginosa: Keskusta
Ympäristö: Porvoon torialue
Rakennus/huoneisto
Pinta-ala: 236,95 m²
Rakennustyyppi: Kerrostalo
Rakennusvuosi: 1966
Energiatodistus: C2018
Huoneistoselitelmä: Liiketila
Kunto, varusteet ja palvelut: Hyväkuntoinen tila. Minikeittiö, wc ja siivouskomero. Porvoon kaikki palvelut lähellä.
Pysäköinti: Kadulla ja lähellä vuokrattavia parkkihallipaikkoja
Vapautuminen: Myydään vuokrattuna
Myyntihinta ja kulut
Myyntihinta: 133’578,26 €
Velkaosuus: 166’221,74 €
Velaton myyntihinta: 299’800 €
Vastikevelka: 28’333,08 €
Hoitovastike: 1’289,30 €/kk
Alv-vastike: 61,03 €/kk
Rahoitusvastike: 1447,14 €/kk
Sähkömaksu: Oma sähkösopimus
Lämmitys: Sisältyy vastikkeeseen
Huoneisto on otettu taloyhtiön hallintaan. Huoneiston uudella omistajalla on mahdollisuus saada hallintaan ottopäätös puretuksi, mikäli ostaja suorittaa huoneistoon kohdistuvat maksamattomat vastikkeet ja hallintaan otosta aiheutuneet kulut (eli saldo).
Vapautuu
Heti
Rakennusvuosi
1966
Kerros
1 / 4
Energiatehokkuusluokka
C2018
Katutasossa
Näkyvällä paikalla
Ota yhteyttä
Tilat.fi
KTM, LKV Antti Soivio
Näytä puhelinnumero
0400 446 553
OTM, LKV Riikka Tuominen
Näytä puhelinnumero
0400 551 790
KTM, LKV Maria-Sofia Puhakka
Näytä puhelinnumero
0400-150330
MBA Susanne Wallenius
Näytä puhelinnumero
0400-128877
Yrityksen virallinen nimi: LKV Tilat.fi Oy.
Toimitilojen välitykseen erikoistunut yritys.
Pyydä lisätietoa
