Vuokrataan toimistotilat - Helsinki
Kaarlenkatu 9-11, Kallio, 00530 Helsinki #10821655
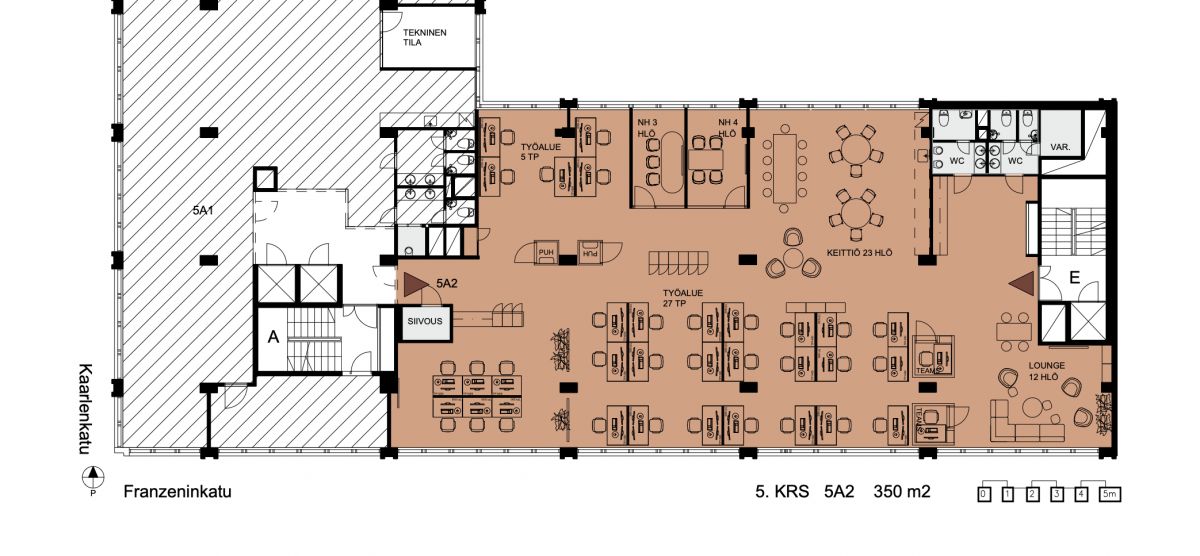
Vuokrataan viihtyisä 5. kerroksen toimistotila Kalliosta. Avarassa ja valoissa tilassa on avotilaa ja työhuoneita. Tila voidaan remontoida seuraavan käyttäjän toiveiden ja tarpeiden mukaan.
Kaarlenkatu 9 kiinteistö tarjoaa elämyksellisiä toimitiloja ja vaivattoman palvelukokonaisuuden. Sen sijainti Kaarlenkadulla keskellä Kallion kaupunginosaa tarjoaa näppärät yhteydet julkisilla kulkuneuvoilla – tai vaikka kävellen.
Kiinteistöstä löytyy täyden palvelun toimisto- ja työtilojen lisäksi aulapalvelu, tapahtumatila, suihkutilat ja viihtyisä saunamaailma, sekä monipuolinen kuntosali. Tyylikäs lounasravintola ja suojaisella sisäpihalla sijaitseva terassipatio luovat ainutlaatuista tunnelmaa ja elämää.
Lisätietoja soita 020 730 4530 tai info@repoint.fi. Palvelumme on tilanhakijalle ilmainen.
Repoint Toimitilat Oy
Itälahdenkatu 22 B, 00210 Helsinki
Näytä puhelinnumero
020 730 4530
Lisätietoja soita Näytä puhelinnumero 020 730 4530 tai info@repoint.fi
https://repoint.fi/