Vuokrataan varastotilat - Helsinki
Kraputie 6, Östersundom, 00890 Helsinki #10821324
Varastotilaa loistopaikalla Östersundomissa
Osoite
Kraputie 6, 00890 Helsinki
Tilatyyppi
Varastotilaa
347 m2
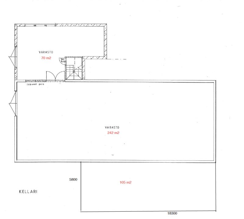
Pohjapiirros
Vuokra
2602,50 € / kk + alv
Kiinteistö
Loistopaikalla Östersundomissa Uuden Porvoontie varrella sijaitsevasta tuotanto-/varastorakennuksesta vuokrataan pohjakerroksen 347 m² varasto joka koostuu kahdesta tilasta (242 m² + 105 m²).
Korkeus n. 2,60 m.
Tilaan on maantason nosto-ovi (korkeus 2,20 m)
Sähkölämmitys (2 kpl puhaltimia).
Oma sähkömittari.
Korkeus n. 2,60 m.
Tilaan on maantason nosto-ovi (korkeus 2,20 m)
Sähkölämmitys (2 kpl puhaltimia).
Oma sähkömittari.
Lisätietoa saneerauksista
Kattoremontti tehty 2020
Vapautuu
Heti
Rakennusvuosi
1983
Kerros
1
Energiatehokkuusluokka
Ei lain edellyttämää energiatodistusta
Katutasossa
Näkyvällä paikalla
Ota yhteyttä
ScanReal Oy LKV
Opus Business Park
Hitsaajankatu 24
00810 Helsinki
info@scanreal.fi
Puh:
Näytä puhelinnumero
020 730 8830
Sopivat toimitilat yhdellä otolla!
Kartoitamme toimitilatarpeesi ja etsimme yrityksellesi parhaiten sopivat vapaat toimitilat. Koska vuokranantajat maksavat palvelumme, on tämä yrityksellesi veloituksetonta.
OTA YHTEYTTÄ - SOVI NÄYTTÖ!
Kaikki kohteemme eivät ole netissä, kerro tilatarpeesi niin kartoitamme vaihtoehdot.
Palvelumme on tilanhakijalle ilmainen
Pyydä lisätietoa
