Vuokrataan liiketilat - Helsinki
Simonkatu 6, Keskusta, 00100 Helsinki #10821257
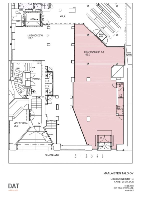
Siisti 165 m² liiketila loistavalta paikalta Forum-korttelista.
Osoite
Simonkatu 6, 00100 Helsinki
Tilatyyppi
Liiketilaa
165 m2
Kiinteistö
Siisti katutason 165 m² liiketila Maalaisten talosta, loistavalta kauppapaikalta Fortum-korttelista. Tilassa on tällä hetkellä vaatealan toimija.
Maalaisten talo on Helsingin Kampissa osoitteessa Simonkatu 6 sijaitseva seitsenkerroksinen liike- ja toimistorakennus, joka valmistui vuonna 1921. Rakennusta on peruskorjattu noin 20 vuoden välein. Mittavin remontti tehtiin vuosina 1998–1999.
Maalaisten talo on Helsingin Kampissa osoitteessa Simonkatu 6 sijaitseva seitsenkerroksinen liike- ja toimistorakennus, joka valmistui vuonna 1921. Rakennusta on peruskorjattu noin 20 vuoden välein. Mittavin remontti tehtiin vuosina 1998–1999.
Vapautuu
Heti
Kerros
1
Energiatehokkuusluokka
Ei lain edellyttämää energiatodistusta
Katutasossa
Hissi
Ota yhteyttä
ScanReal Oy LKV
Opus Business Park
Hitsaajankatu 24
00810 Helsinki
info@scanreal.fi
Puh:
Näytä puhelinnumero
020 730 8830
Sopivat toimitilat yhdellä otolla!
Kartoitamme toimitilatarpeesi ja etsimme yrityksellesi parhaiten sopivat vapaat toimitilat. Koska vuokranantajat maksavat palvelumme, on tämä yrityksellesi veloituksetonta.
OTA YHTEYTTÄ - SOVI NÄYTTÖ!
Kaikki kohteemme eivät ole netissä, kerro tilatarpeesi niin kartoitamme vaihtoehdot.
Palvelumme on tilanhakijalle ilmainen
Pyydä lisätietoa
